经典园林平面图
南方苏杭经典园林平面图
以下整理了南方苏杭以及北方经典园林平面,一起来感受与体验园林的内涵、园林规划的设计手法。






















北方经典园林平面图
1-故宫平面图


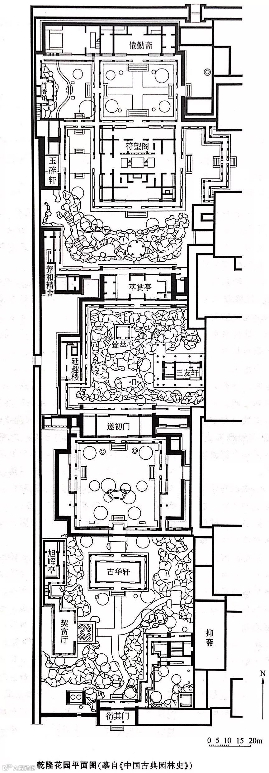
【2 乾隆花园平面图】

1-清代北京西北郊园林分布图

2-颐和园平面图

3-颐和园万寿山前山平面图
4-万寿山后山平面图

5-谐趣园平面图

1-圆明园


2-圆明园四十景图——正大光明、碧桐书院、茹古涵今



1-北海平面图

2-琼华岛平面图

3-濠濮间平面图

4-画舫斋平面图

5-静心斋平面图


1-承德避暑山庄及外八庙平面图

2-避暑山庄水系

3-正宫平面图

4-如意洲平面图

5-月色江声平面图

6-青风绿屿平面图

7-山近轩平面图

8-碧静堂平面图

9-玉岑精舍平面图

10-秀起堂平面图

11-烟雨楼平面图

12-小金山平面图

13-文津阁平面图

14-普陀宗乘之庙


1-紫竹院公园平面图

2-筠石园平面图

3-友贤山馆平面图

1-陶然亭公园改造方案平面图

2-华夏名亭园平面图

3-兰亭及周边环境

1-玉渊潭山水关系图

2-樱花园平面图

3-留春园平面图


1-平安大街节点效果图

2-皇城根遗址公园南入口节点平面


1-植物分区规划图

2-道路系统现状图

3-牡丹芍药园平面图

4-月季园平面图

1-奥林匹克公园平面图

2-奥林匹克森林公园平面图

3-奥林匹克森林公园地形设计图

4-奥林匹克公园中心区文化综合区

推荐阅读:
《80后教授辞职回乡爆改破民房,宛若仙境,从此看丫头长大陪父母变老》
想看到更多精致庭院?
扫码关注微信公众号:庭院造景
想要这要的庭院?
咨询请加微信:15380834510
热线:15380834510
联系人:孙先生

