
碧桂园SSGF新建造技术成套工法
建议在WIFI环境下观看(时长约7分钟)
碧桂园SSGF新建造技术以快著称,快的内力源于碧桂园的建筑模块化,预制内墙板即是基于预先精细设计,实现内墙板工厂化预制,现场直接安装,兼具节约资源,安装简便,品质优良等多重优势。

预制墙板由水泥、陶粒、砂、水、外加剂等原料组成,内置冷拔低碳钢筋,经抽芯、高温蒸养等工序制成,具有强度高、耐火隔声等性能特点。它有多种规格和板型,设计、运输、施工方便,可适用各类型建筑内外墙使用(住宅、写字楼、酒店、厂房等)。

预制内墙板经过预先精密设计,经工厂预制完成后,可直接运抵施工现场安装,辅以干拌砂浆、抗震胶垫、木楔、耐碱网格布等辅材,即可实现便捷安装,一次成型。


建筑外墙上及外墙以外所有传统设计中采用的砌体构件,如:剪力墙结构洞口的填充墙、窗台墙、阳台隔墙、阳台栏板、外立面线条或造型等,全部采用钢筋混凝土构件,与主体结构实现一次现浇。

通过铝模及结构拉缝技术实现全混凝土现浇外墙体系,对建筑外门窗洞口、防水企口、滴水线、空调板、阳台反坎、外立面线条等进行优化,主体结构一次浇筑成型,免除外墙二次结构和内外抹灰,实现结构自防水,减少外墙、窗边渗漏等质量隐患。

装配式混凝土结构,是相对于常见现浇混凝土结构而言,就是在工厂预制好混凝土构件,包括梁、板、柱、墙等,然后运输至现场进行吊装拼接,最终完成建筑物的现代建造产品。按照产品功能划分,类型包括:预制承台模、预制地梁模、PC保温屋面板、PC路面铺贴、PC生活部品、飘窗、叠合楼板等。

轻质承台模PC
装配式PC构件将传统混凝土现场浇筑转移到工厂预制,实现建筑构件模块化,工厂化生产,在提升产品质量与规格标准的同时,极大减轻现场作业难度和资源浪费,节省大量人工和材料,实现建筑安全性、功能性、等全方位转型升级。

若将填充墙与结构受力墙柱全部刚性连接时,地震一但发生,由于墙体的约束导致梁、柱的变形不能随地震波一起变形,将导致墙体开裂,情况严重将直接危害建筑物的安全,上述在非承重墙与承重梁、柱及墙之间做出来的缝称为结构拉缝。

结构拉缝是由PVC材质制作而成,分水平缝及竖向缝,二种材料的形状各有不同,长度厂家根据施工图工厂切割。安装前要仔细核对施工图,不能漏放,且水平拉缝方向不能放反,且一定要在合模前对结构拉缝材料安装质量进行验收
铝模施工工艺
铝模板,又名铝合金模板,是铝合金制作的建筑模板,较之传统木模施工技术,铝模解决了以往传统模板存在的缺陷,大大提高了施工效率。铝模板设计研发及施工应用,是建筑技术一项重大进步。

铝模工艺优点
铝模板体系组成部分需要根据楼层特点进行配套设计,对设计技术人员的能力要求较高。铝模板各模块可以在多个项目中循环利用,其突出技术优点有:
(1)施工周期短。流水作业快拆快建,大大提高施工进度,节约管理成本。
(2)重复使用次数多,平均使用成本低。铝模板规范施工可翻转使用百次以上。
(3)施工方便、效率高。铝模板系统组装简单、方便,可以完全由人工搬运和拼装。
(4)稳定性好、承载力高。多数铝模板体系承载力可达到每平方米60KN,足够满足多数住宅楼群的支模承载力要求。
(5)拼缝少,精度高,拆模后混凝土表面效果好。铝建筑模板拆模后,混凝土表面质量平整光洁,实现免抹灰,可节省批荡费用。
(6)标准、通用性强,回收价值高。铝模板规格多,可根据项目采用不同规格板材拼装,且最终回收价值高。
(7)节能环保。铝模板系统所有材料均为可再生材料,大量减少传统木料等资源浪费,节能、环保、低碳。

智能爬架又称附着升降脚手架,是指搭设一定高度并附着于工程结构上,依靠自身的升降设备和装置,可随工程结构逐层爬升或下降,具有防倾覆、防坠落装置的外脚手架;附着升降脚手架主要由附着升降脚手架架体结构、附着支座、防倾装置、防坠落装置、升降机构及控制装置等构成。

(1)传统钢管爬架
传统钢管爬架在构造上同钢管双排架完全相同,即在4层半高度的双排架上安装提升系统,使其能够实现上升下降功能。传统钢管爬架成本相对较低。

(2)半钢式爬架
半钢式爬架在传统钢管爬架的基础上,采用特制连接件,将钢网片连接于外侧竖向钢管或者横向大横杆上,替换原安全网其他构造不变。架体高度为楼层4层半高度。由于钢网片较安全网重许多,成本高于传统钢管爬架,低于全钢式爬架。

(3)全钢式爬架
全钢式爬架在半钢的基础上,淘汰内部钢管,架体全部使用型钢、钢板等钢材组合加工而成。架体高度为楼层4层半高度。全钢爬架成本与其他两种爬架相比较高,但使用较多。

智能爬架——显著优势
(1)替代传统落地式脚手架,一次搭设完成,随主体进度提升,封顶后空中解体拆除;
(2)比脚手架安全隐患少,结构施工面更安全,封闭环境施工,杜绝高空坠落;
(3)易于可视化和标准化管理,工地平面规划更合理;
(4)有效解决穿插成品保护问题;
(5)室外、外墙、室内装修均可提前插入施工,节省工期。

智能爬架安装应重点关注以下关键要素:
(1)确定楼架体从第几层开始组装智能爬架,防护至目标楼层;
(2)确定架体内部走道板层数及步距以及预留防护高度;
(3)外墙楼板面准备浇筑底板梁混凝土时,必须预留爬架附着孔,注意方位与尺寸;
(4)升降平台的各层翻板密封设计,根据施工需要合理选择全密封与半密封楼层;
(5)架体与结构的附着,根据主体结构与结构尺寸,选择最优附着方式;
(6)吊点布置与卸料平台设置与安装,卸料平台一般位于架体最下步走道板位置,开始使用位置一般较架体使用位置高上一层。
(7)塔吊及其附臂位置,架体过塔吊附臂时,采用翻板式脚手板。待架体过附臂时,拆掉防护网,拧掉固定螺栓,翻起脚手板。过附臂后放下脚手板,固定好脚手板,安装防护网。每提升一层,重复以上过程。
(8)施工电梯、楼梯铺设,应考虑电梯方位、轿厢数量安装,合理设置楼梯步数。
智能爬架——工作流程

智能爬架——注意事项
提升前需按“智能爬架提升、下降作业前检查验收表”的要求检查确认,并经总包、监理单位相关负责人签字盖章后方可升降;
当有5级以上大风、大雾和下雨等天气时,不得进行折叠式升降脚手架的升降工作;
当遭遇台风等极端恶劣天气时,需要另外采取措施(拉结、下降、拆除网片)。
智能爬架——拆除说明
(1)清除折叠式升降脚手架上杂物及地面障碍物。
(2)将折叠式升降脚手架内的所有提升装置拆除,并吊至地面分名别类的码放整齐。
(3)将塔吊吊住的架体单元与临边架体的水平桁架之间连接拆除。
(4)将塔吊吊住的架体单元与临边架体的走道板边夹板的螺栓拆除,拆除时操作人员必须严格按照施工安全要求系好安全带。
(5)拆除横跨吊装架体与非吊装架体之间的防护网。
(6)清理架体上所有拆下的连接固件及建筑垃圾,避免吊装时高空坠物。
(7)重复以上步骤,依次将折叠式升降脚手架的单元拆除、吊离和拆散。
智能爬架是实现SSGF全穿插施工的关键工具,必须充分考量爬架与铝模施工的配合,爬架覆盖楼层前后工序的铺排,充分运用爬架的快捷便利,才能最终实现节省工期的目的。SSGF新建造体系就是实施项目系统施工的全流程整合平台,唯有科学布局合理利用,方能发挥最大价值。
发泡陶瓷隔墙板主要利用陶瓷产区所产生的废渣和多种矿山开采的尾矿等固体废弃物做原料,经无害化处理后,按创新配方比例混合调配,再经球磨、混合浆料、高温烧制等过程制成。其内部气孔独立,无渗透性,对水蒸气和液体具有良好阻隔作用,并具有轻质、耐火、防潮 、抗压等特点。

发泡陶瓷墙板具有体薄超轻、防水保温、隔热节能等多重功效、且可塑性强,安装简便,只需前期认真学习相关工艺,熟悉设计和安装流程即可轻松安装,极大节约人工和时间成本。

传统墙面贴砖技术存在诸多如空鼓、开裂、脱落等现象。而SSGF新建造技术采用铝合金模板,浇筑精度高,一般墙砖铺贴难度较大。而高压水枪拉毛通过高压水在光滑墙面上拉出粗糙面,既减去传统抹灰找平节省物料人工,同时冲刷掉灰尘颗粒,创造永固贴砖作业面。

高压水枪拉毛工艺优点
拉毛的优势:高效,节能,环保,节省人力。,其突出技术优点有:
(1)拉毛使用高压水能有效破除表面水泥浆层,能使水泥膏、瓷砖胶更好的渗入墙体,达到永固;并且因有水,能起到养护墙体及清洗轻体表层的作用。
(2)免去二次补漏,不在出现空鼓,开裂,脱落等问题。
(3)拉毛或凿毛处理后,表面既干净又有粗糙度,防水涂料粘接强度更加有保障。
(4)实验证明,拉毛后使用瓷砖胶贴砖,拉拔断裂层都出现在瓷砖内部或瓷砖与瓷砖胶之间,对墙体没有影响。
(5)高压水枪拉毛机器仅需两人操作,完成效率是人工的几倍,完全能满足穿插施工的要求,节约高效。

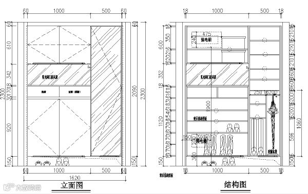
水电精确定位工艺
新建造体系条件下,现场大量采用铝模施工,预制墙板。如何在模块施工作业中,为水电安装预留充足空间和路径,必须提前精确测量和设计。水电走向与铺设,直接关系到后期装修施工以及生活功能,只有精准定位水电,才能最大程度满足用户需求,体现产品的精品优质,同时也是新建造技术价值的体现。



自愈合通用防水工艺
自愈合防水技术就是通过在混凝土结构复合上自愈合防水材料,使混凝土结构能借助水的作用转化为密不透水的躯体,能促使混凝土内部生长岀具有生长能力、永不溶于水的晶体,在干燥环境下会处于休眠状态,一旦遇水就会被激活,进而继续生长。这意味着防治渗漏与主体结构同寿,终身免维修、免维护。该项技术是公认最为主动防水的被动技术。

实施自愈合防水需要具备的条件:遇水区域的主体结构施工质量应符合设计文件及相关规范规程要求:不允许出现蜂窝、异物、露筋(钢筋保护层不足),以及贯穿性裂缝的缺陷;遇水区域的主体结构如果存在蜂窝、露筋、孔洞、异物等异常,应采用相配套专用材料和特种工艺技术做出置换或固封,不得以传统方法处理。

1、明确主体结构施工质量,必须符合设计文件和规范、规程相关要求;
2、建设单位应授权明确防水单位,对建筑遇水区域主 体结构质量做出品控管理;各项目主体结构缺陷的状况,以及处理结果应向业主上级汇报;
3、明确防水单位有权拒绝接收存在缺陷隐患的工作基面。甲方项目部有权直接委托防水单位整治主体结构施工质量缺陷;
4、未按要求将防水区域移交给防水单位排查隐患的渗漏责任,由未移交方负责承担。
金刚砂地坪是国内对耐磨硬化地坪的俗称,金刚砂地面硬化剂其实就是特种水泥,由一定颗粒级配的矿物合金骨料,与其它掺合料和外加剂组成。将其均匀地撒布在即将初凝阶段的混凝土表面、经专门手段加工。从而使其与混凝土地面形成一个整体,具有高致密性和耐磨抗压,减少灰尘,表面坚硬,容易清洁,经济耐用等优点。

1、新浇筑混凝土地坪;
2、地下车库消防、防水、预埋线管等隐蔽工程、门窗、井沟角钢锚固通风等设备及其他交叉工程完工;
3、墙柱油漆预留地脚高度50cm以上,避免污染,已经施工完毕采取覆盖保护;
4、地面厚度保证5cm以上,不足的需凿掉,即垫层混凝土应在地坪标高5cm下;
5、保证水电供应。


为确保金刚砂整体地坪施工工艺质量,应重点关注以下关键要点:
1.严格执行节点验收、材料验收工作。
2.金刚砂、固化剂撒料要均匀,避免色差。
3.节点验收出现问题的要及时修复。
4.做好成品、半成品保护工作。执行专人看护,金刚砂地面施工完成后封闭施工面,避免踩踏、落物、做好防水。
5.做好养护工作,金刚砂地面完工后48小时内及时切缝,避免开裂,切缝后立即浇水覆膜养护,避免龟裂。
整体卫浴是相比传统砌装卫浴房间而言的,是采用工厂预制,直接拼装或现场吊装的现代建筑产品。整体卫浴间的底盘、墙板、天花板、浴缸、洗面台等大都采用复合材料制成,卫生环保;整体卫浴间中的卫浴设施均无死角结构而便于清洁。具有省事省时、结构合理、材质优良等优点。

整体卫浴采用模块化设计,工厂预制化生产,共分为八大模块,组装高效。整体卫浴为工厂产业化全预制生产,施工现场采取整体吊装或现场拼装的方式,安装效率大大提升。



即深压纹墙纸、树脂墙纸,是一种木浆纤维纸、无纺纤维纸以为基材,表面涂上高级树脂浆料,使用专业的深压纹生产设备,根据不同的图案采用不同的印刷轮,在墙纸表面印上所需要的墙纸图案。在墙纸软化后,经压纹辊压迫墙纸表面,使其产生相应的纹路效果。其间还包含干燥、高温、冷却等多道工艺,保证墙纸的立体观感及环保性能。


(1)条板墙面选用壁纸颜色不能过浅,厚度不能太薄;不选光面壁纸,带纹理壁纸效果较好;
(2)壁纸墙面基层可采用大白,腻子产品,因为壁纸是粘贴在面层上的,所以基层(面层)一定要保证强度。
确保SSGF12大新建造技术落地的重要前提之一,即是前期设计必须精确到位,基于新体系的设计要点在于:
1.层数≥22层;
2.建筑外墙做涂料;
3.建筑尽量避免横向线条;
4.新体系包括两种内墙,一种为墙板,一种为高精度砌块;
5.墙板的门垛最小可以做到50mm;
6.做墙板的项目内保温材料用XPX保温板,做高精度切块用YT无机保温砂浆;
7、防火栓尺寸;
8、强弱电井尺寸;
9、电梯资料。

1、改变传统先出样板房再出货量图的模式,直接按标准出货量图,对出图时间与图纸质量要求更高。
2、要求室内装修水电精确定位;交标柜体深化图前置倒推水电定位;强弱电线管楼板预埋,给水管天花内穿梁敷设;室内预埋孔洞精确定位。
3、户内房间门须设置门头至梁底。
4、瓷砖铺贴踢脚线如不能暗藏,应选用薄板砖铺贴,注意墙地砖铺贴高度尺寸。

新体系设计经验总结

(来源:地产精英讲堂)

