1、劲性柱与梁板样板:(体现钢柱、柱模、梁筋)
按1350*1350柱,高1500。柱箍刷黄色漆

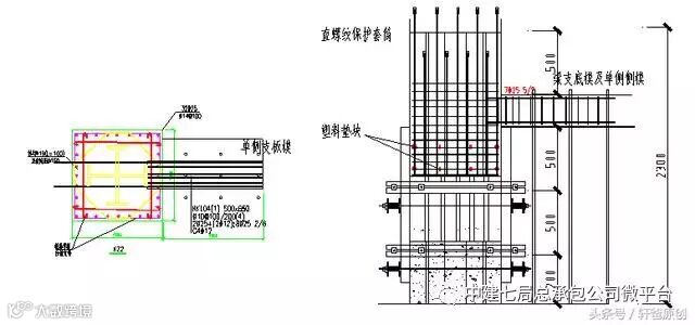
2、 独立柱支模样板(700*700柱模板、1800高)
柱箍刷黄色漆
![]()
![]()

3、 主体结构样板
![]()


![]()

![]()

4、 框支柱模板样板(支模、洞口加固、线盒留设)
柱箍刷黄色漆

![]()

5、 砌筑样板
基本要求:植筋,每400高一道;墙接筋通长设置;每1200高设一道20mm高配筋水泥砂浆带(2根6.5钢筋);在墙高3m处设一道200*200钢筋混凝土构造梁,配筋4C12,箍筋φ6.5@200.
门窗过梁:预制,每边入墙250mm。
门、窗两侧用190*190*190单孔砼小型空心砌块内填细石砼。
构造柱尺寸:200*200,配筋4C12,箍筋φ6.5@200

![]()
窗台压顶:窗台梁高100,宽同墙,配筋为2φ8+φ4@300,预制,伸入墙内200.内高外低,向外5%坡。
顶砖样板:斜砌。采用C20混凝土预制预制三解形顶砖

![]()
预制过梁:过梁两端各伸入墙体250mm
![]()



配电箱槽:钢筋砖过梁,预制,高500,配筋2φ6

6、 抹灰样板(挂网、喷浆、抹灰、滴水线)
挂网:梁板柱与砌体交界处两边各宽100;砌体上线管开槽位置表面
![]()
![]()


![]()
![]()
抹灰:阴阳角顺直、阳用做水泥砂浆护角,表面刷色
![]()

![]()
7、 楼梯初装修样板
![]()

![]()

8、 屋面工程样板(正置法)

9、 卫生间样板卫生间反沿(300高)、管道样板

注:本文来源于今日头天/轩爸原创

整理编辑:冯梦迟
小编那么拼,点个赞再走呗!


长按二维码,关注中国建筑总公司官方微信
超越自我 筑梦未来

长按识别二维码,加关注

