来源:一代宗工

第一章 编制说明及其原则
一、为了减少建筑物渗漏水质量问题,规范防水施工做法,减少由此引起的交楼风险,参照设计和相关规范要求,编制“防渗施工工艺标准”技术文件。
二、防水工程的设计及施工应遵循“防、排、截、堵相结合,刚柔相济、因地制宜,综合治理的原则”,做到先排后防。
首先不能有积水,要将积水在短时间内顺畅地排出;
其次必须强化结构自防水功能,每一处节点均要对结构本身的防水功能给予充分的重视。
因此,防水工程应综合治理,着重抓好三关:
第一是结构自防水,包括混凝土墙、柱、板、墙体材料及砌筑、抹灰层、塞缝等,这是整个防水体系的基础。基础工作不过关,防水体系就无法保证;
第二是在各饰面层、防水层施工前后的淋水和蓄水试验,是对前面工序防水能力的真实检验。只有通过淋(蓄)水试验的防水才是有保障的;
第三是防水材料(聚氨酯、卷材等)的应用,这是防水工程的最后一道关口。
三、建筑物渗漏水问题集中体现在:结构缺陷,如结构板高差不足、楼板通缝开裂等;隐蔽验收流于形式,如没有按照规范及图纸要求对给排水管道进行通水通球、试压检测,没有做好蓄水、淋水检查工作等;防水细部施工质量差,如穿墙管道防水收口、后浇带和伸缩缝等结构预留缝防水处理等。根据以上发现的问题,只有在施工的全过程推行一套完善的防渗施工工艺标准,才能有效地确保建筑物防水施工质量,降低渗漏水隐患。
四、因防水工程做法多样,节点各异,请地区公司参照本指引根据实际情况,进行细化与优化,用以指导施工。
第二章 卫生间防渗漏施工指引
一卫生间防水施工工序(以非地面热辐射采暖卫生间为例)

二质量控制要点
1、必须严格按卫生间防水施工大样图施工,保证防水构造满足设计及规范要求。
2、穿过地面及楼面的立管、套管安装完成,并须固定牢固。立管穿楼板处用微膨胀混凝土分两次堵洞,洞孔须封堵严密。
3、基层清理须到位,尤其是管根、墙根等部位要仔细清理,基层凹陷处要用水泥补平。管根部位要抹成半径为100mm平整光滑的小圆角,凡是靠墙的管根处宜抹出5%坡度,以避免此处留下积水隐患。墙面按设计要求有防水的部位,墙面基层抹灰要压光,须平整,无空鼓、裂缝、起砂等缺陷。地面向地漏方向找坡,门口附近坡度较小,地漏处较大。
4、细部附加层涂料施工要分两次涂刷,每次涂刷厚度宜为0.6mm,不得漏涂。第二道涂膜防水涂料实干后(24小时)才可进行大面积涂膜防水层施工,方向与第一次相垂直,先墙面后地面,从内向外顺序进行。
5、卫生间沉箱底板用防水砂浆向侧排地漏找坡(坡度不小于2%)。沉箱预埋排水管道应在隐蔽前做好蓄水检查工作。
6、防水涂膜材料为合成高分子防水涂料,厚度为1.5mm,施工时须分三遍进行涂膜施工,墙面四周防水涂料沿装修完成面上翻高度不小于150mm,遇门口时水平扫出门口200mm;有淋浴的墙面应做水泥基防水层高度为1800mm。
7、蓄水试验(最高处)蓄水深度不小于30mm,蓄水时间不少于24h,蓄水试验结果须填写蓄水检查记录。
8、地漏在防水施工前,应采取保护措施,确保排水畅通。蓄水合格后应将地漏清理干净。
9、涂膜防水层每层施工完毕后,要严格加以保护,在卫生间门口要设醒目的禁入标志,在保护层施工之前,任何人不得进入,也不得在上面堆放杂物,以免损坏防水层。防水保护层施工时,不得在防水层上拌砂浆,铺砂浆时铁锹不得触及防水层,要精工细做,不得损坏防水层。
10、卫生间地面砖及门槛石必须采用湿贴法,严禁干铺,门槛石结合层采用防水砂浆。
11、回填1:8陶粒混凝土时,应在侧排地漏周边200 范围内填鹅卵石(粒径15-20mm),以保证地漏口通畅。
三卫生间防水施工节点大样图(以集团标准图集为例,施工时以施工图为准)
(一)非地面热辐射采暖的做法

(二)地面热辐射采暖的做法

(三)沉箱内侧排地漏安装示意图

第三章 外窗防渗漏施工指引
一外窗防水施工工序(以水泥砂浆塞缝为例)

二质量控制要点
1、必须严格按外窗防水施工节点大样图施工,保证细部防水构造满足设计及规范要求。
2、第一次收口须确保外窗框与洞口之间的间隙为25mm±5mm。
3、铝合金外窗塞缝应采用防水密封材料填塞密实,防止窗边渗漏水;北方地区应采用柔性低热导防水材料进行封堵,防止冷桥和温差变形开裂现象。
4、二次塞缝前应先对洞口基底进行清理并洒水湿润。
5、窗框凹槽塞缝完成后应在24小时内安装外窗框并立即进行第二次塞缝工序施工。
6、外窗框与墙体接缝处密闭材料为中性硅酮密封胶,密封胶应饱满、匀称。
7、应确保外窗窗台、滴水完成面的坡度≥20%。严格控制室内、外窗台高差,确保室内窗台高于室外窗台20-40mm,防止造成渗水。
8、窗口侧壁保温应用反包网固定牢固。
三外窗防水施工节点大样图(以集团标准图集为例,施工时以施工图为准)

第四章 阳台防渗漏施工指引
一阳台防水施工工序

二质量控制要点
1、必须严格按阳台防水施工大样图满做防水,保证防水构造满足设计及规范要求。
2、结构施工时按设计要求降板。
3、确保阳台地漏标高及地面排水坡度满足设计要求。
4、穿过地面及楼面的套管、立管安装完成,排水立管及排水地漏穿楼板处用微膨胀混凝土分两次堵洞。
5、基层清理须到位,尤其是铝合金底框处、管根、地漏等部位要仔细清理,基层凹陷处要用水泥补平,管根部位要抹成平整光滑的小圆角,工程师验收合格后才能进行塞缝施工。
6、阳台铝合金推拉门底框与洞口之间缝隙用防水砂浆(1:2水泥砂浆掺3%防水粉)填塞密实,不允许使用发泡剂及其它材料。
7、防水层每层施工后,要严格加以保护,在阳台门口要设醒目的禁入标志,在保护层施工之前,任何人不得进入,也不得在上面堆放杂物,以免损坏防水层。
8、阳台做完防水后,须做蓄水试验,由工程师逐一验收,合格后方可移交工作面。蓄水试验作为工作面移交的必须步骤。
9、阳台地砖必须采用湿贴法,严禁干铺。
三阳台防水施工节点大样图(以集团标准图集为例,施工时以施工图为准)
(一)阳台刚性防水做法


(二)阳台柔性防水做法


第五章 外墙防渗漏施工指引
一外墙施工工序

二质量控制要点
1、保持墙面平整,凸起处铲平;凹进处、孔洞应用水泥砂浆分层修补、镶嵌密实。
2、钢筋混凝土外墙对拉螺栓孔洞应先用冲击钻在外墙面将孔内50mm范围内pvc套管清除,然后用聚乙烯发泡剂满孔封堵。灌注发泡剂时,应将抢嘴伸至墙内壁处才开始打发泡剂,边打边退灌注至外墙孔洞,保证发泡剂灌注饱满密实。
3、抹灰前应对基层表面进行处理,刷一道界面剂,并做拉毛处理。
4、外抹灰应四周吊线,打灰饼控制抹灰层厚度。底层拉毛不宜太厚,做到厚度均匀、表面平整。
5、抹灰砂浆应有适当的稠度和良好的保水性。
6、水平线条的上表面向外做找坡,下口做鹰嘴式滴水线。
7、按设计和规范要求镶贴面砖,严控水泥砂浆和勾缝施工质量。
8、空调排水管应明装在外墙外,不得覆盖隐蔽。空调冷凝水支管管口标高比空调室外板面标高低20mm。
9、外墙空调板(尤其是飘窗上方的空调外机位底板)用防水砂浆向外找坡(采用铁艺栏杆,向地漏方向排水),安装铝合金格栅时应注意在底部留有排水的空隙,防止飘板积水。
10、外墙施工完成后应组织进行淋水试验,对检查出来的渗漏水部位应进行返工处理,整改后应对该部位再次进行淋水试验,确保达到防水要求。
第六章 屋面防渗漏施工指引
一施工工艺

二质量控制要点
1、屋面工程施工前,施工单位应进行图纸会审,并应编制屋面工程施工方案或技术措施。
2、屋面的保温层和防水层严禁在雨天、雪天和五级风及其以上时施工。屋面防水层施工工法和适用区域要求如下表:

3、 基层突出屋面结构(女儿墙、山墙、天窗壁、变形缝、烟囱等)的交接处和基层的转角处,找平层均应做成圆弧,圆弧半径应符合表的要求。内部排水的水落口周围,找平层应做成略低的凹坑,做附加层。
转角处圆弧半径

4、找平层宜设分格缝,井嵌填密封材料。分格缝应留设在板端缝处,其纵横缝的最大间距:水泥砂浆或细石混凝土找平层,不宜大于6m;沥青砂浆找平层,不宜大于4m。
5、卷材防水层长边及短边的搭接缝宽度均不得小于100㎜。为确保搭接缝的宽度,可先在找平层上弹出墨线,进行卷材试铺,无问题后方可进行正式铺贴。卷材铺贴用压辊向两侧、向前滚压排气粘牢。
6、屋面四周要设置排水明沟。
7、天沟、檐沟、檐口、泛水和立面卷材收头的端部应裁齐,塞人预留凹槽内,用金属压条钉压固定,最大钉距不应大于900mn,并用密封材料嵌填封严。
8、24小时渗水试验或2小时淋水试验不渗、不漏。
9、及时做好保护层防止二次破坏。
三屋面防水大样图
(一)女儿墙不做保温地区的做法
1、屋面防水做法一(非倒置式,Ⅱ级,适用:设一道柔性防水多层建筑平屋面)

2、屋面防水做法二(优先选用倒置式,Ι级两道柔性防水,适用:高层建筑平屋面)

3、屋面防水做法三(非倒置式,Ⅱ级,适用:设一道柔性防水多层建筑平屋面)

4、屋面防水做法四(优先选用倒置式,Ι级两道柔性防水,适用:高层建筑平屋面)

(二)女儿墙外墙保温地区的做法
1、屋面防水做法一(非倒置式,Ⅱ级,适用:设一道柔性防水层的多层建筑平屋面)

2、屋面防水做法二(优先选用倒置式,Ι级两道柔性防水,适用:高层建筑平屋面)

3、屋面防水做法三(非倒置式,Ⅱ级,适用:设一道柔性防水多层建筑平屋面)

4、屋面防水做法四(优先选用倒置式,Ⅰ级两道柔性防水;适用:高层建筑平屋面,在北方温差较大地区及冬季5度以下施工时使用)

5、屋面防水做法五(非倒置式,Ⅱ级,适用:设一道柔性防水多层建筑平屋面)

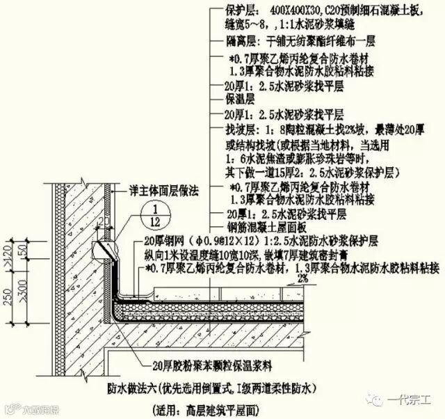
6、屋面防水做法六(优先选用倒置式,Ⅰ级两道柔性防水,适用:高层建筑平屋面)

第七章 地下室防渗漏施工指引
一地下室防水施工工序

二质量控制要点
1、 地下防水工程的施工,应建立各道工序的自检、交接检和专职人员检查的“三检”制度,并有完整的检查记录。未通过上道工序验收,不得进行下道工序的施工。
2、 地下防水工程施工期间,明挖法的基坑以及暗挖法的竖井、洞口,必须保持地下水位稳定在基底0.5m以下,必要时应采取降水措施。
3、 地下防水工程的防水层,严禁在雨天、雪天和五级风及其以上时施工。
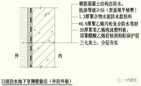
4、 地下室外墙必须采用钢筋混凝土结构,混凝土的抗渗等级不小于P6;地下室外墙施工缝应采用钢板止水条进行连接;
5、 防水混凝土结构表面的裂缝宽度不应大于0.2mm,并不得贯通。
6、 地下室外墙面要做卷材防水层,且必须与底板防水卷材有效搭接,并做好防水保护层。
地下室结构后浇带应在两侧混凝土龄期达到42天后进行浇筑,采用微膨胀混凝土,标号不低于两侧混凝土;浇筑前应对两侧混凝土接口凿毛并清理干净,浇筑完成后养护时间不少于28天。
三地下室防水节点大样图
(一)地下室防水做法一(选用高分子或自粘聚合物改性沥青防水卷材)



(二)地下室防水做法二(在北方地区温差较大及冬季5度以下施工时使用)



(三)地下室防水做法三(选用聚乙烯丙纶复合防水卷材)



第八章 管网防渗漏指引
一室内管网
(一)室内管网施工工序(以地暖管盘管为例)

(二)质量控制要点
1、 室内管道必须严格按照设计图纸、规范及国家标准图集相关要求进行施工。
2、 管道与管道之间、管道与配件、器具或设备之间的连接应牢固、严密,防止管道移动导致接口松动、渗漏。
3、 穿过沉箱或楼板的立管(干管)、套管安装完成,并须固定牢固;穿沉箱或楼板处用微膨胀混凝土分两次封堵,洞孔须封堵严密。
4、 地暖盘管铺设时一个环路一根管材,施工过程中管材有损坏的应整根更换,严禁拼接使用,埋地部分严禁有接头,铺设完成后严禁人员踩踏盘管。
5、 隐蔽或埋地的排水管道在隐蔽前必须做灌水试验,其灌水高度应不低于底层卫生器具的上边缘或底层地面高度。
6、 压力管道安装后必须进行压力试验,非严寒地区,优先考虑采用水压试验,北方严寒地区优先考虑采用气压试压。
地暖管施工完成后,须带压移交,在进行地面铺装时须带压施工。
二室外管网
(一)室外管网施工工序

(二)质量控制要点
1、 室外管网必须严格按照设计图纸、规范及国家标准图集相关要求进行施工。
2、 室外管网材料应符合国家技术标准或设计要求,须做好进场验收与检测,验收合格后方可使用。
3、 室外管网管道在埋地敷设时,穿越道路部位管顶覆土埋深不得小于700mm;寒冷及严寒地区,生活给水管、室外消防管等压力管管顶最小覆土深度不得小于当地土壤冰冻线以下0.15m;生活污水接户管、雨水接户管等重力排水管道埋设深度不得高于当地土壤冰冻线以上0.15m,且覆土深度不宜小于0.30m。否则,应采取可靠的保温防潮措施。
4、 管沟的沟底应是原土层或夯实的回填土,要求沟底平整、坚实,不得有尖硬的物体、块石,避免不均匀沉陷、管壁损坏等。
5、 管道之间连接应牢固、严密;管道与检查井连接时,采用柔性连接,用水泥砂浆分二次填塞严密、抹平,不得渗漏;管道接口法兰、卡扣、卡箍等应安装在检查井或地沟内,不应埋在土壤中。
6、 给水、供热管道安装完毕后须进行水压试验,排水管道安装完毕后须做灌水试验和通水试验。
7、 试验合格及隐蔽验收合格后方可进行回填。管沟回填土,管顶上部200mm以内应用砂子或无块石及冻土块的土,并不得用机械回填;管顶上部500mm以内不得回填直径大于100mm的块石和冻土块;500mm 以上部分回填土中的块石或冻土块不得集中。上部用机械回填时,机械不得在管沟上行走。
管道安装后应及时做好成品保护,防止因其他工序施工或人为因素等造成破坏。

注:本文来自工程智库

整理编辑:冯梦迟
小编那么拼,点个赞再走呗!

超越自我 筑梦未来

长按识别二维码,加关注
中建七局微信平台


