1、钢筋的选用
在钢筋正式制作前的重要工作之一就是进行钢筋原材料的选用,根据工程设计图纸的相关要求,应选用符合设计要求的钢筋,包括钢筋的规格大小、钢筋级别; 在钢筋规格及级别确定后,应进行钢筋外观质量的最终确认,对钢筋表面不洁净,有粘着油污、泥土、浮锈等质量缺陷的钢筋应进行分隔,并不得使用;必须使用 时,钢筋表面必须清理干净,针对浮锈可采用铁刷或结合冷拉工艺进行除锈处理。

2、钢筋的配料
框架柱纵向钢筋配料时下料长度主要考虑钢筋接头设置的位置,依据05系列江苏省工程建设标准设计图集《建筑结构常用节点图集》苏G01—2003的要 求和《混凝土结构施工图平面整体表示方法制图规则和构造详图》03G101-1的要求进行确定。
框架柱底层纵向钢筋接头以下下料长度
L≥Lae+Hn/3 公式①
框架柱底层纵向钢筋接头以下下料长度
L≥Lae+Hn/3+l 公式②
楼层框架柱纵向钢筋接头以上下料长度
L≥H 公式③
Lae:为基础内锚固长度;
Hn:为基础顶面至上层框架梁底部的净高度;
l:为钢筋连接接头应相互错开的距离;
H:为上部各楼层的层高。
PS:不同接头形式错开高度有不同的要求,应相应接头形式进行取值计算,具体详第三项简述;同一框架柱底层纵向钢筋接头以下下料长度计算时,纵向钢筋数量的一半按公式①进行计算,另一半按公式②进行计算。
1、箍筋加工
根据《混凝土结构工程施工质量验收规范》GB50204—2002的要求,除焊接封闭式箍筋外,箍筋的末端应作弯钩,弯钩形式应符合设计要求;当设计 无具体要求时,应符合下列规定:
(1)箍筋弯钩的弯折角度:对一般结构,不应小于90°;对有抗震等要求的结构,应为135°;
(2)箍筋弯钩的弯弧内直径除应满足不小于钢筋直径的4倍,同时不小于受力钢筋直径的要求;
(3)箍筋弯后平直部分长度:对一般结构,不宜小于箍筋直径的5倍;对有抗震等要求的结构,不应小于箍筋直径的10倍。

2、箍筋下料长度
箍筋下料长度=箍筋内周长+箍筋调整值+弯钩增加长度
3、框架柱箍筋形式
应根据框架柱纵向钢筋的具体数量确定所采用的箍筋形式,常用的矩形复合箍筋的基本复合方式如下:
(1)沿复合箍周边,箍筋局部重叠不宜多于两层。以复合箍筋最外围的封闭箍筋为基准,柱内的横向箍筋紧挨其设置在下(或在上),柱内纵向箍筋紧挨其 设置在上(或在下)。
(2)柱内复合箍可全部采用拉筋,拉筋须同时钩住纵向钢筋和外围封闭箍筋。
(3)为使箍筋外围局部重叠不多于两层,当拉筋设在旁边时,可沿竖向将相邻两道箍筋按其各自平面位置交错放置。

4、箍筋设置
框架柱箍筋设置基础要求是根据设计图纸进行设置,根据《混凝土结构施工图平面整体表示方法制图规则和构造详图》03G101-1的要求,同时应该满足 如下要求:
(1)所有外围转角处的框架柱箍筋应全高进行加密设置;
(2)底层框架柱下部箍筋加密区高度应不小于基础顶面至上层框架梁底部净高度的三分之一;
(3)底层框架柱上部箍筋加密区高度及其他各楼层框架柱顶部和底部的加密区长度应该取三分之一框架柱净高度、大于等于500㎜、大于等于柱长边尺寸 的三者最大值;
(4)各楼层框架柱纵向钢筋采用绑扎连接方式进行接长的,在连接区段范围内,箍筋应进行加密设置。
1、框架柱纵向钢筋的连接形式
根据施工工艺的不同,常分为如下三种形式:
(1)绑扎连接;
(2)机械连接;根据不同形式,又可分为套筒连接、锥螺纹连接等。
(3)焊接连接;根据不同形式,又可分为电渣压力焊连接、闪光对焊连接、搭接焊连接、绑条焊连接等,但电渣压力焊仅适用于垂直构件的纵向钢筋连接。

在上述三种连接方式中,工程中均有采用,尤其以绑扎连接、机械连接中的套筒连接和电渣压力焊焊接连接为主,在此三种连接方式中,中小直径钢筋以绑扎连 接应用最广泛,中大直径钢筋以电渣压力焊连接应用最广泛,不同的连接形式均有相应的质量要求。
根据《混凝土结构工程施工质量验收规范》GB50204—2002的要求,绑扎连接时,框架柱纵向钢筋的搭接长度应不小于锚固长度的1.2—1.6 倍,具体取值应根据搭接钢筋的百分率进行确定,当受力钢筋搭接百分率为50%时,取值为1.4,同时绑扎搭接的钢筋在搭接位置的两端及中间应分别进行绑扎 牢固。
根据中华人民共和国行业标准《钢筋焊接及验收规程》JGJ18-2003的要求,电渣压力焊焊接接头的外观质量应满足如下要求:
(1)四周焊包凸出钢筋表面的高度不得小于4mm;
(2)钢筋与电极接触处,应无烧伤缺陷;
(3)接头处的弯折角不得大于3°;
(4)接头处的轴线偏移不得大于钢筋直径的0.1倍,且不得大于2mm。
框架柱纵向钢筋在选用接头连接形式时应各施工单位的施工机械、施工人员业务水平、施工作业环境等因素进行综合考虑后进行确定,选择质量可靠、经济实 惠、操作方便、技术成熟的钢筋接头连接形式。
2、框架柱纵向钢筋的连接要求
根据《混凝土结构设计规范》GB50010-2002和《混凝土结构施工图平面整体表示方法制图规则和构造详图》03G101-1的要求,框架柱纵向 钢筋的连接要求如下:
(1)对底层框架柱,接头设置位置应在距基础顶面至上层框架梁底部三分之一净高度以上;
(2)对二层以上的各楼层框架柱纵向钢筋接头位置在距楼面的距离取:应设置大于等于三分之一净高度、大于等于500㎜、大于等于柱长边尺寸的三者最 大值;
(3)框架柱纵向钢筋接头设置时应同时考虑相连纵向钢筋连接接头应相互错开,在同一截面内钢筋接头面积百分率不应大于50%。
1、框架柱在基础中的位置
工程施工的基本依据是设计图纸,在基础定位放线施工时,应根据设计图纸对框架柱的位置进行准确定位,并用色线或油漆进行显目标注,同时标注出相应位置 框架柱的几何截面尺寸和配筋的规格、数量以及箍筋规格和数量,确定框架柱的正确方向和几何截面尺寸,在符合设计图纸要求的前提下进行框架柱钢筋的施工。
2、框架柱钢筋在基础中固定
框架柱钢筋在基础中施工时应采取可靠的措施进行钢筋的固定,柱脚固定可采用焊接方式进行,同时在基础混凝土中应根据要求设置2道或3道箍筋,确保框架 柱纵向钢筋的成型和直立,以保证框架柱纵向钢筋的正确位置,不发生偏位现象,垂直度能够满足要求。
根据05系列江苏省工程建设标准设计图集《建筑结构常用节点图集》苏G01—2003的要求,基础中框架柱箍筋的数量设置按下图进行设置。

1、核心区框架柱箍筋的设置
框架结构体系中框架梁柱节点是该体系中受力的重点部位,剪力、弯矩和抗震性能等均在此部位有很高的要求,因而该部位钢筋的正确施工显得尤其重要。根据 《砼结构施工图平面整体表示方法制图规则和构造详图》03G101-1的要求,在框架梁柱节点核心区部位的框架柱箍筋全部进行加密设置。
2、核心区框架柱纵向钢筋的设置
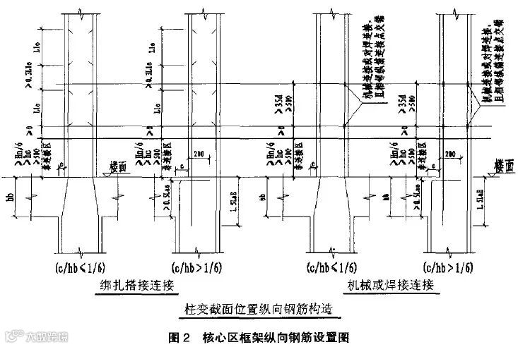
对截面尺寸没有变化的框架柱,施工时在核心区重点注意核心区框架柱箍筋的加密设置。
但对截面尺寸变化的框架柱,不仅要注意核心区框架柱箍筋的加密设置,同时还应控制好变截面框架柱纵向钢筋的构造处理,根据《混凝土结构设计规范》 GB50010-2002和《砼结构施工图平面整体表示方法制图规则和构造详图》03G101-1的要求,框架柱钢筋在梁柱核心区的布置应能满足下图所示 要求:

1、顶层框架边柱钢筋的构造
根据《混凝土结构设计规范》GB50010-2002和《混凝土结构施工图平面整体表示方法制图规则和构造详图》03G101-1的要求,框架结构体系中顶层混凝土框架柱边柱钢筋的构造应能满足下图所示构造要求:

2、顶层框架中柱钢筋的构造
根据《混凝土结构设计规范》GB50010-2002和《混凝土结构施工图平面整体表示方法制图规则和构造详图》03G101-1的要求,顶层混凝土框架柱中柱钢筋的构造应能满足下图所示构造要求:

在框架结构体系中,框架柱是承受上部全部荷载的主要构件,承受着所有垂直荷载、外部水平荷载、内部弯矩、剪力等,同时起着传递所有荷载至基础的作用, 因此框架柱在该体系的作用尤其重要,框架柱在受力过程由其内部钢筋和混凝土共同协作工作,其内部钢筋弥补了混凝土抗拉强度很小的缺点,在该体系中承受着各 种因素引起的拉力,所以通过框架柱钢筋的认真施工同时满足相应的技术要求,可有力地保证工程质量。
通过上述诸多方面的阐述,是不是对混凝土框架柱的施工过程、质量要求、构造要求等已了然于胸,从而对混凝土框架柱的施工有了初步的认识和感知?
(转自:筑龙施工)

超越自我 筑梦未来


