本文以武汉中心工程项目为例说明超高层建筑施工期间临时消防施工技术。
一、相关背景
随着经济的发展,城市人口的急剧增加,土地的供应紧张,物价的不断上扬,促使人们向高空发展,拓展生存空间,在极为有限的土地建造更大面积的建筑,而超高层建筑“展示发展成就、提升城市形象”等优越性,使得全国各地不断涌现出新高度。
随着建筑物高度的不断增加,建筑施工安全越来越受到关注,而近年来在建高层建筑屡次发生火灾,引起社会各方的关注。高层建筑的防火救灾问题成为了亟待解决的问题
1、超高层建筑消防现状
相较于建筑工程施工过程中的安全管理,国家各部门和各级政府都出台了相对完善和健全的监管制度,但是在建超高层建筑的临时消防抗火仍然存在一定的空白和盲区,尚无经验可借鉴。《中华人民共和国消防法》、《高层民用建筑设计防火规范》在超高层、高层民用建筑防火方面的规定,仅只对已经完成的工程、拟建工程设计方面及投入使用的建筑在防火方面的要求进行阐述。
而《建筑工程施工现场消防安全技术规范》中对于在建工程临时消防设施的布置,也仅明确建筑高度超过30m或体积大于30000m³的建筑需设置临时室内消防给水系统,对于现今超过200、300m的超高层建筑针对性不强,不具备典型性。
2、项目介绍
本方案以武汉中心项目为依托,武汉中心位于武汉王家墩CBD中轴线南部的起始端,是集办公、酒店、商业、会议等功能为一体的武汉CBD首个地标性国际5A级商务综合体。工程占地面积28100㎡,地下4层,地下建筑面积82315㎡,地上裙楼4层,塔楼88层,总建筑高度438米,地上建筑面积271770㎡,总建筑面积35380㎡。同时,武汉中心是以中建三局名义自行承建的第一座400米以上的超高层建筑,也是公司首次涉足高端超高层施工领域。
本方案的实施一方面能够确保武汉中心工程的消防安全,另一方面为在建超高层建筑的临时消防管理提供可靠的依据,有利于探讨在建超高层建筑临时消防的难点与系统概况、在建超高层建筑临时消防系统的配置与管理、在建超高层建筑临时消防系统的组织管理与应急保障,将为后续类似超高层工程施工消防抗火管理提供宝贵技术支持和管理经验。
二、重点和难点
1、在建超高层建筑临时消防重难点
(1)由于超高层建筑的特殊性,消防供水无法实现“一泵到顶”,故在施工过程中需考虑如何设置中转加压措施,确保消防供水到达施工所有楼层;
(2)在顶升平台逐步提升的时候,如何保证系统的正常运行。
(3)目前大部分工程的临时用水及消防均是在建筑结构封顶后或者结构施工接近尾声时才进行临时消防用水及消防系统的安装。这样根本达不到建筑施工过程中的灭火要求,这对现场施工来说是一个极大的隐患。而且超高层建筑由于建筑高度高,系统工作压力大,对系统进行优化设计也是一大难点。
2、在建超高层建筑临时消防系统的配置与管理
(1)由于楼层较高、层数较多,若施工用水与消防用水分开设置,设备材料投入较大;若合二为一,必将对水泵及稳压设备提出更高要求,且一大发生火灾,需关闭用水阀门,增加了管理难度;
(2)超高层施工,核芯筒往往采用整体提升模架技术高于外框筒结构施工5~10层,两个不同施工层面消防管理问题如何解决;
(3)随着结构主体不断向上施工,机电安装及装饰装修也已提前分阶段插入,正式消防系统与临时供水系统如何逐步拆除并转换为正式系统;
(4)如何将超高层临时消防系统经济化、标准化,以便成功推广应用。
3、在建超高层建筑临时消防系统的组织管理与应急保障。
三、系统介绍
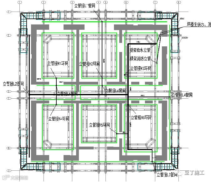
1、现场临时消防及生产生活用水总体规划
本工程拟现场平面、裙楼及地下室临时生产用水与室外消火栓用水共用管道。塔楼、裙楼及地下室、室外消火栓及生活用水分别单独进行用水设计,三个系统独立使用。
共设置两级供水系统,一级供水系统沿项目用地红线一周敷设,每隔90m设置一个消火栓;二级供水系统为裙楼及地下室消火栓系统、塔楼消火栓系统和临时给水系统。

2、各区域消防系统设置
1)室外给水及消防设置
室外消防与给水系统合用,采用DN100的给水用HDPE管。

2)裙楼及地下室给水及消防设置
裙楼及地下室生产生活系统采用市政给水直接供水,供水主管管径DN50,在裙楼和地下室每层布置2个用水点。
地下室仅在B1F层设置消火栓系统,系统采用市政水直接供水。

3)塔楼给水及消防设置
(1)供水方式:采用水泵加压,水箱中转,重力补给的方式供水
在塔楼上部水箱层尚未施工完毕时,塔楼各层均采用水泵直接供水的方式进行。

在塔楼每个设备层设置一个临时水箱,各临时水箱用水泵自下而上接力提升,待上层水箱安装完成后,拆除变频控制柜,给水变频泵改为给水提升泵,水泵采用高低液位浮球阀控制,保证各水箱始终有水,稳压泵随设备层水箱的安装施工提升。



3、系统转换
临时消防系统与正式消防系统之间的转化
根据建筑高度及施工部署,临时消防系统与正式消防系统转化分六个阶段。
第一、二阶段:塔楼1-30F临时消防与供水系统安装,在B4及18F安装临时消防水箱;
第三阶段:31F临时水箱安装完毕,18F正式水箱安装就位,27F以下的正式消防立管安装完毕,完成第一次的临时系统和正式系统的转换;
第四阶段:塔楼核心筒外的水平结构施工到48F以上,将31F的正式水箱安装就位,41F以下的正式消防立管安装完毕,完成第二次的临时系统和正式系统的转换;
第五阶段:塔楼核心筒外的水平结构施工到64F以上,将48F的正式水箱安装就位,57F以下的正式消防立管安装完毕,完成第三次的临时系统和正式系统的转换;
第六阶段:塔楼核心筒外的水平结构施工到84F以上,将63F的正式水箱安装就位,57F以下的正式消防立管安装完毕,完成第四次的临时系统和正式系统的转换:
待核心筒外水平结构封顶后,立即进行83F水箱安装,此时,将全部的正式消防系统安装就位,整个塔楼全部使用正式的消防管道,并至工程竣工。
4、应急保障
在建超高层建筑临时消防系统的组织管理与应急保障。
武汉中心拟采取以下措施,确保消防系统的安全有效运行。
(1) 建立并明确消防管理体系,同时按照现场情况,划分消防管理责任区域,明确责任人员和其消防管理职责;
(2)制定各项消防安全管理制度;
(3)定期组织进行检查,对施工现场所有区域全覆盖进行检查,对检查出的问题要明确措施、时间和责任人进行整改,并对整改情况组织人员复查;
(4)制定消防应急预案,定期组织培训交底并针对消防应急预案进行演习。
5、重点措施
1)与顶模的连接
武汉中心选用少支点低位顶升钢平台模架体系(顶模)作为施工模架,是一个自主创新的模架体系。在塔楼结构施工时,顶模上主要涉及到结构施工用水、混凝土养护用水及模架上消防用水。将临时用水及消防系统布置在一个运动的模架上也是一个难点。
(1)主桁架下沿所布置环管及立管均固定在桁架上,依据桁架空隙灵活布置管道,确保水管位置不影响正常施工。管道材质为热镀锌钢管;主立管的管径为DN80,与下层的主供水立管通过法兰形式连接;为了避免与结构连梁的冲突,在模架的顶层和底层分别设置两层管道,上层为主供水管,下层为混凝土养护喷雾管。
(2)平台需要提升时,关闭主立管阀门,断开主立管与下层立管的连接,环管系统随平台一起提升,待平台提升完毕后,增设一层立管,主立管与上层顶升模架给水环网采用法兰形式重新连接。



2)塔楼竖向与水平结构施工不同步时的注意事项
武汉中心塔楼结构施工时,因先进行剪力墙的施工,导致剪力墙施工楼层比塔楼楼板结构施工楼层相差在十层以上,例如核心筒已施工至19F时,此时塔楼水平结构才施工至7层,预先的系统在18F设置水箱中转的方式无法进行。那么就必须采取相关的措施,此时塔楼筒外钢结构已施工至15F,可以在钢结构钢梁上放置一个中转水箱,水箱容积10m3。
待塔楼18F水平结构施工完成后,将18m3的临时水箱安装完毕,按照设计方案进行管道安装。

3)水泵间安装
在消火栓泵出水管上安装一个稳压罐和电接点压力表,通过电接点压力表的信号来自动启停消防泵。
当现场发生火灾时应在第一时间关闭给水管道上的阀门,如图示的阀门1。
电接点压力表设置启停的范围为给水泵扬程至下0.1MPa。
消防泵与给水泵应能自动互锁,当消防泵启动的时候自动关闭给水泵。

四、设计与施工要点
1、设计时的要点
(1)系统设计应考虑给水与消防共用系统,但给水主管与消防主管应分开,给水主管上应安装阀门,即发生火灾时,可以关闭所有生产生活用水。
(2)塔楼立管位置的选择应避免占用管井、风井及电梯井等井道,一面影响后期的正式管道施工,立管可以尽量与甭管等安装在一起。水平管道也不宜布置在后期正式管道较为密集的区域。
(3)室外消火栓的位置离道路的距离不应超过2m。
(4)消防立管必须采用两根立管。
(5)消防立管及水箱提升管不允许使用塑料管。
(6)尽量考虑临时系统与正式系统的转换,做到绿色环保。
(7)尽量实现无人值守,做到自动控制。
(8)保证消防安全,消防泵的电源必须保证两路供电。根据现场情况,选取临电和备用柴发两路供电。
(9)外漏管道应考虑保温。
2、施工时的要点
(1)塔楼施工时,应及时了解土建的结构施工进度,编制确实可行的施工进度计划,确保临时消防系统能够满足塔楼的生产消防需要。并应制定健全的消防系统管理制度。
(2)应提前将正式的消防水箱、消防水泵及消火栓在内的消防器材提前进场,使水箱、水泵、消火栓等能够按照既定的时间安装就位。
(3)在进行正式系统转换前,应完成转换楼层及管井的深化设计,完成综合管线及管井的排布,确保管道安装完毕后不对后续的施工产生影响。
(4)保持和土建施工部的良好沟通,确保在模架提升时相关的管道拆装已经完毕。
(5)每处设置消火栓的位置均应有醒目标识,采用在剪力墙上用红漆书写消防器材的方式。
五、现场照片




(转自:筑龙施工)

