
G20后,且看中建二局一公司BIM大潮来袭
广仔:厦妞,你有没有发现这两天G20峰会刷爆“朋友圈了?
厦妞:嗯,“最忆是杭州,郡亭枕上看潮头”
广仔:吊书袋啊!我也有:“中秋月已近,BIM大潮卷来风”!
厦妞:BIM大潮?
广仔:中建二局一公司深业上城机电总承包项目BIM大潮强势来袭……



成立于1981年,拥有强大的科技团队,能够熟练运用BIM等先进科技手段进行总承包施工管理。公司从2010年引入BIM技术,2011年组建BIM团队,2015年成立王琦BIM创新工作室,先后在深业上城、汉国城市商业中心、西双版纳秀场、双玺花园等项目成功运用BIM技术,并取得突出成绩。

深业上城机电总承包项目
北区为已竣工高档住宅:24万平米
南区一期商业及LOFT: 50万平米
南区二期T2: 19万平米
南区三期T1: 27万平米
开工日期:2014年11月25日
竣工日期:2018年01月30日
——BIM概况
建设方2人,顾问方8人,设计方6人,监理方1人,机电总承包方45人,共计:62人
深化设计(共计出图1万余张)、施工管理(指导设备采购及施工)、预制拼装
——使用BIM技术原因

——BIM团队:领导小组

——BIM团队:工程师团队
——BIM应用软件配置


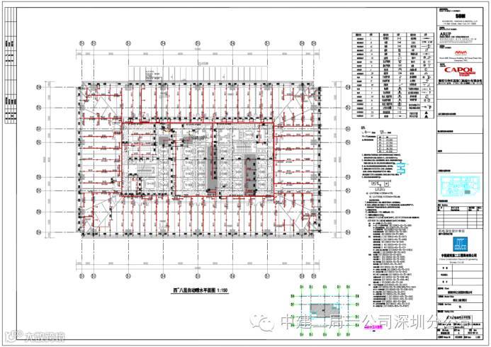
——深化设计

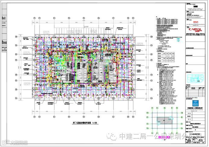
——机电管线综合
原设计图纸审核——BIM模型创建——碰撞检查——机电管线综合——深化设计协调——深化设计出图


——施工模拟
土建砌筑 →土建刮白 →重力排水管支架安装 →重力排水管安装 →冷冻水管支架安装 →冷冻水管安装 →风管吊架安装 →桥架支架及喷淋支架安装 →桥架及喷淋管道安装 →完成

——深化设计(机电深化原理)

——深化设计(建模)







结构留洞图 :结构留洞图在BIM模型优化完毕后出图,替换原有的设计蓝图,更正了原设计图纸中的少留、漏留、错留现象,大大提高留洞的精确度,避免后期安装过程中的结构开洞现象,节约了工程成本,提高了工程质量。

砌体墙留洞图 :砌体墙留洞图在BIM模型优化完毕后出图,出图后下发施工班组,墙体砌筑和墙体留洞一次成型,减少后期安装过程中的砌体墙开洞现象,节约了工程成本,提高了工程质量。

管线综合图 :管线综合平面图在BIM模型优化完毕后出图,出图后下发机电施工班组,作为现场的施工依据,综合图中反应了机电全专业的信息,图纸中对每条管线及设备均有详细的水平定位信息和标高信息,现场只需严格按图施工即可,不会出现专业间的管线打架碰撞问题。使现场各专业平行施工得以实现。

单专业平面图 :单专业平面图在管线综合平面图审核通过后出图,出图后报业主、顾问、设计审批,作为最终的商务结算依据。

剖面图 : 剖面图在管线综合平面图审核通过后出图,对于管线复杂区域,起到辅助现场施工的作用。

机房图 : 将机房布置根据设备的实际尺寸参数重新进行优化布置,提升设备房安装质量。

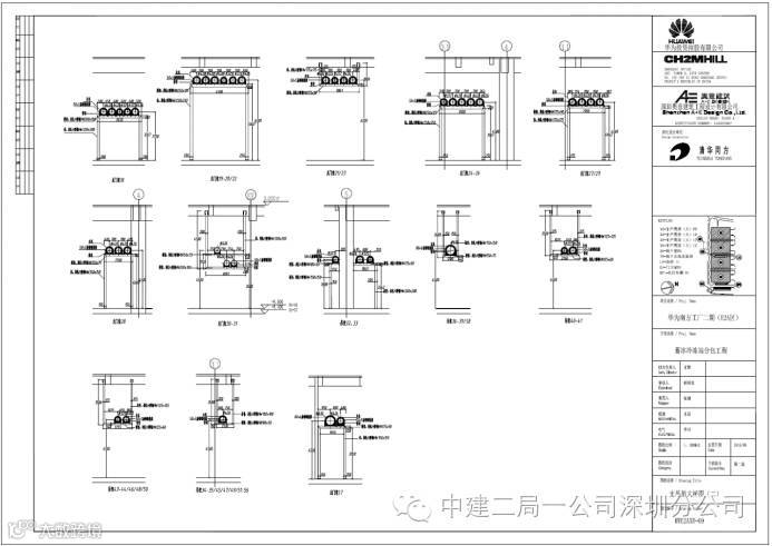
支吊架大样图 : 支吊架大样图主要对综合支吊架和大型支吊架进行出图,图纸中包含支吊架的具体做法大样及支吊架的承重信息,为管道系统安全运行提供保障。

净高图 : 对业主所提供的净空图作反馈,让业主清晰的了解每个功能区域所能达到的具体净空高度,为业主招商及运维决策提供依据。

——BIM管理模式优化传统管理模式

——BIM5D应用
Revit模型导入BIM5D进行施工模拟、现场质量管理、安全管理,通过手机现场拍照上传问题,PC端协调解决,IE端领导审批,大大提高了沟通的效率,直观、快速的解决现场问题。

Revit模型导入BIM5D软件

利用BIM5D对施工现场实际进度与计划进度做对比



现场发现质量安全问题,通过手机现场拍照上传记录问题

利用BIM5D进行成本分析
——预制拼装(流程)








——提高净空

——减少拆改

——精确留洞

——优化系统

——经济效益分析

——节约能源

——采用综合支吊架节约工期

——提高现场安装质量

在中建二局一公司深圳分公司的工地上,以深业上城机电总承包项目为代表的工地,BIM技术应用已深入人心,分公司将在科技创新之路上不断前行!

