
又是一年好佳节
在这喜庆的日子里
深圳分公司民治上塘保障房项目
《预制剪力墙半灌浆套筒灌浆施工工法》
《基于拉片式铝合金模板剪力墙零螺杆洞加固施工工法》
两项工法荣获广东省省级工法


民治上塘工业区1-04地块保障性住房项目
是深圳市重点民生工程之一
深受各界人士关注
是深圳市龙华区建筑工务署和

到底什么是
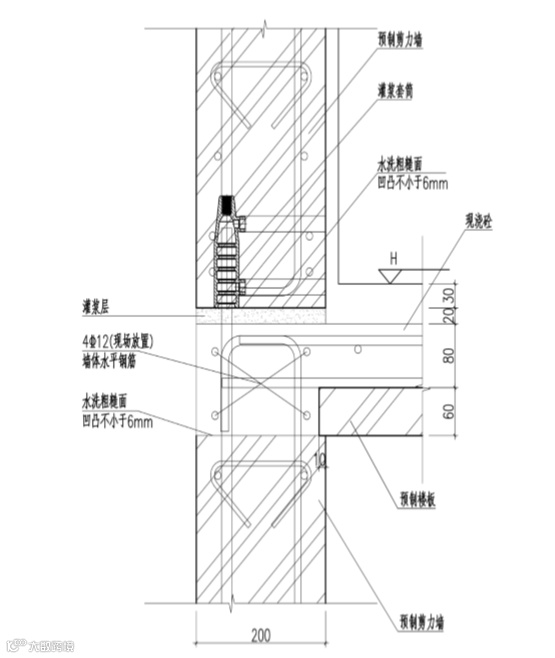
半灌浆套筒灌浆施工技术
为深圳市首次应用。
BIM模拟施工图
工法特点

如果您还想多了解
小编立马就给上图


叠合板支撑与预制楼梯滞后2层施工,为确保正常施工,设置楼梯操作平台。

电梯井口部位在铝模侧板上留槽,预埋双向钢筋网片,消除安全隐患。

以上仅是对
《预制剪力墙半灌浆套筒灌浆施工工法》的
部分图解

科技创新的背后
是科学的管理及
项目团队的付出和努力
聚焦项目管理

时任局党委书记、董事长陈建光带班检查一公司深圳分公司民治上塘保障房项目进行,代表局党政看望慰问项目职工。
(左)项目收到来自项目建设单位深圳市龙华区建筑公务局、代建单位深圳市瑞和佳源房地产开发有限公司(星河地产)发来的表扬信。
(右)项目获得深圳市“安全生产示范工地”,荣登红榜。
科技创效创优
聚焦科技创效创能
1. 省级工法2项。
2. 获得深圳市建设工程安全生产与文明施工优良工地。
3. 实用新型专利3项,发明专利2项已受理,QC3项已申报。
4. 论文已发表6篇,分别发表在(施工技术)等国家级核心期刊。
5、3项科技成果通过广东省建筑业协会科技成果鉴定,其中1项达到国内领先水平,2项达到国内先进水平。

项目成立“李明洋青年创新工作室”,研究成果服务于生产,将技术成果和管理方法转化为生产力,项目技术创新达国内先进水平,为项目团队节约成本,带来巨大效益。
团队风采展示

项目团队平均年龄在30岁左右,其中党员4名。




本期图/文:曹国意
本期素材来源:民治上塘保障房项目


