▲ 点击上方“金星宇遮阳”关注公众号
众所周知,外遮阳相比其他型式的遮阳设备和设施有更好的光热舒适性,尤其是活动式外遮阳。但,外遮阳终究在门窗玻璃之外侧,一旦处置不妥,将留下瑕疵,如:影响建筑外立面效果、使用中易产生风/雨噪,影响生活质量,且可能故障下的检修困难带来使用者的经济负担、安全隐患等等不利因素。
那么到底如何设计才能使得外遮阳与门窗洞口紧密衔接,从而能同时合理规避上述所有瑕疵,持续有效保证活动式外遮阳带来的光热舒适性呢?
总体上,是三个方面。
— 1 —
建筑门窗洞口须兼顾外遮阳
随着人民对美好生活的追求日盛和国家“双碳”政策的持续,建筑将会呈现越来越“宜居”。这个“宜居”关系到建筑室内外的方方面面。而作为建筑之“眼”——门窗,更是在体现现代建筑“宜居”的方面占据举足轻重的位置,忽视不得!
建筑的门窗洞口,传统意义上确实就是门窗的洞口。但现代的建筑,洞口不仅仅是门窗的洞口,还涉及到保温、外遮阳、幕墙等等,较传统确实繁琐了些。但只要在方案设计阶段确定了外遮阳产品型式、施工图设计阶段确定了节点,给外遮阳留下了合适的位置及尺寸(尤其是电气和智能的预留和预埋部分),就能保证建筑之“眼”——门窗有良好功能、外立面效果等;
— 2 —
外遮阳自身的型式及几何尺寸
型式上,活动式外遮阳产品本身,不管是平面外遮阳的水平活动,还是立面外遮阳的垂直活动,首先是需要一个空间来容纳其完全收起后的堆叠和收卷,来提升其美观性和耐久性等等性能指标;其次,两侧需要轨道来固定启闭方向和增加抗风性能。以立面外遮阳为例,使用最多的还是:铝制硬卷帘、铝制百叶、织物卷帘(如下图);几何尺寸上,这三款外遮阳产品完全满足标准化外窗所需要的尺寸,箱体也很纤巧,且有余量;偶有超尺寸外窗,这三款产品也能满足;



— 3 —
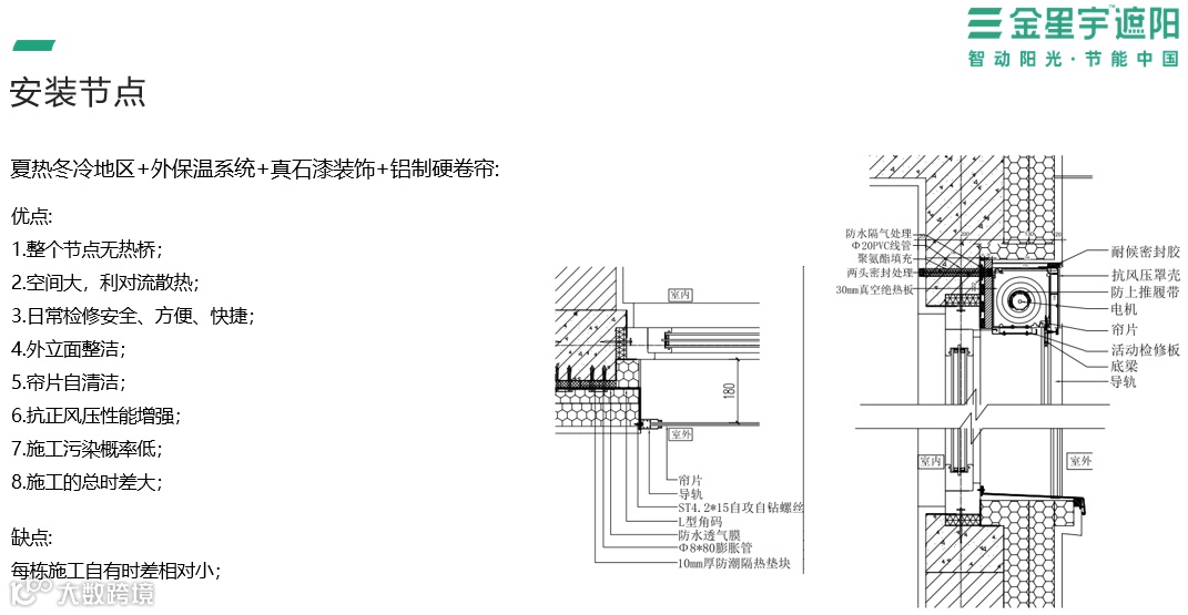
产品与建筑的衔接——节点
以夏热冬冷地区的三款外遮阳产品为例,不多说,分别如下图示意:

铝制硬卷帘安装节点

铝制百叶安装节点

织物卷帘安装节点
写在最后:
其实我们都知道,质量过硬的产品和建筑洞口对外遮阳的兼顾,是节点能做好的基础;先进的创意和认真的态度才是保证。
不知道上述观点,亲爱的小伙伴们是否认同?欢迎交流!
”


