高力国际获委任独家代理上海张江核心区独门独院工业园出售
高力国际欣获独家委任,为上海张江核心区稀缺独门独院工业园提供出售代理服务。
项目亮点
独门独院,适合区域总部
小而美,低密度
张江核心区,科创产业高地
中环内区位,交通配套俱佳
独家代理,一手直推
项目区位
项目位于上海张江科学城
- 距离地铁站约1.2公里
- 距离陆家嘴商务区10公里
- 距离浦东机场30公里
- 距离虹桥火车站37公里
物业信息
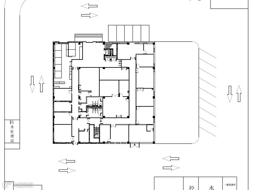
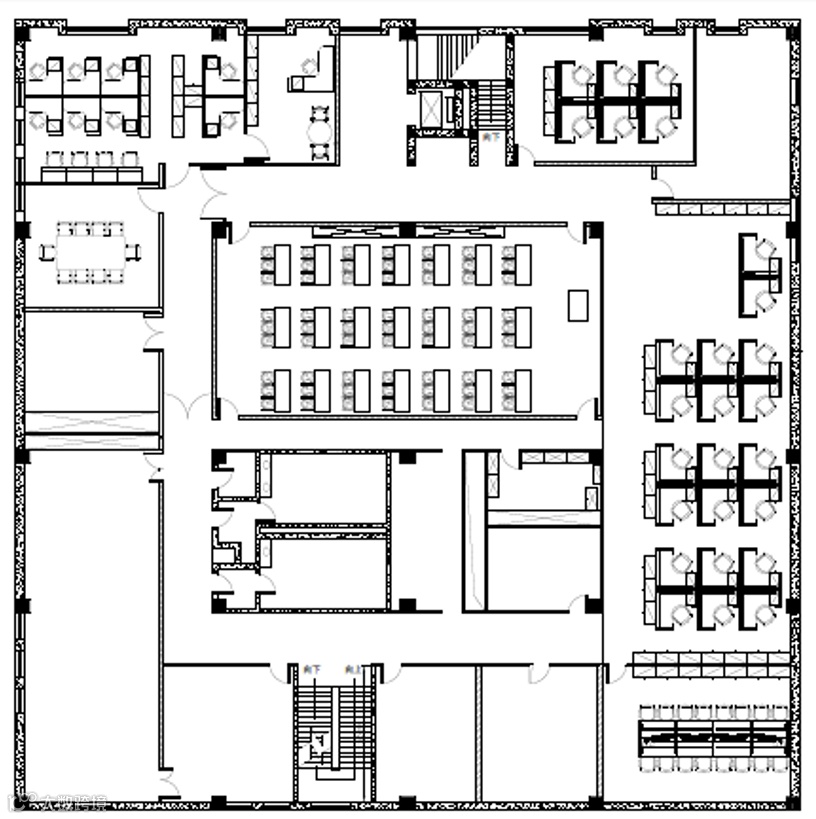
平面图
园区总平图
一楼平面图
二楼平面图
高力国际作为全球化的专业服务与投资管理公司,依托国际化资源平台及深谙本地市场的专业顾问团队,可为管理者、业主、投资者及企业用户提供覆盖咨询、选址、招商、投资等全周期的产业及工业地产服务。
公司秉持“以客户为先、突破创新”理念,通过资源整合与定制化方案,助力客户实现长期价值与业务加速成长。

