G2651 太仓高新技术产业开发区(南区),陈门泾路北.纵四路东.地块紧邻.上海市.昆山市交界处,是嘉昆太协同创新核心圈重点智造园区。
太仓高新技术产业开发区(南区)始建于2010年。区域范围东至204国道、西至昆山市界南至太蓬公路.北至新浏河.规划面积10.5平方公里。
高新区内外资企业数627家,德国企业占欧美企业总数的68%,累积总投资额超60亿美元。
2008年11月,国家商务部.德国经济部共同授予太仓中国第一个.也是唯一-个“中德企业合作基地“称号,,2012年太仓被中国工信部授予“中德(太仓)中小企业合作示范区”。
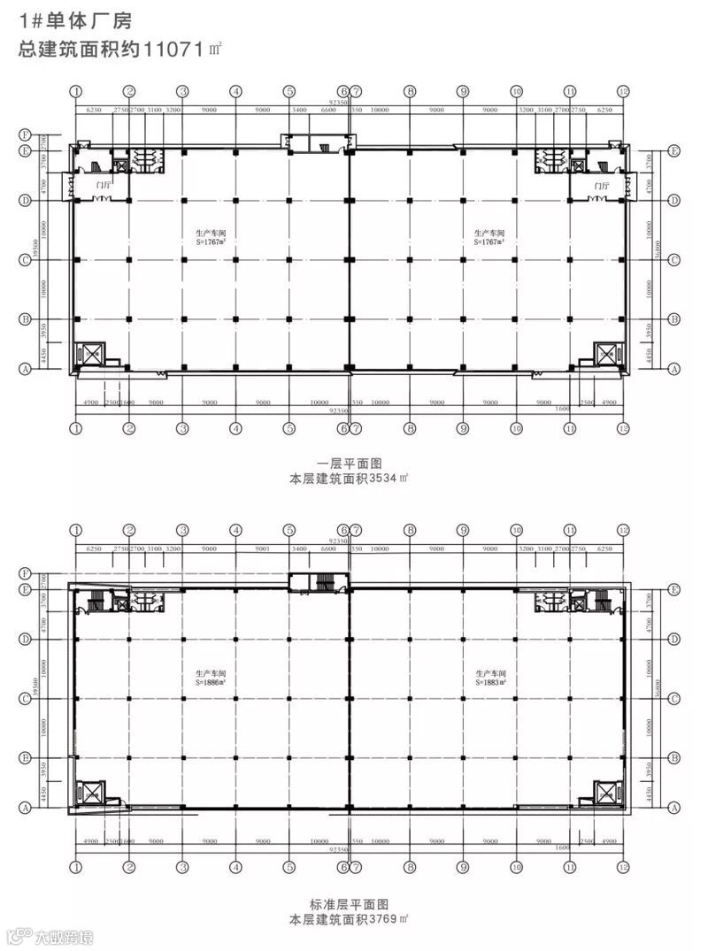
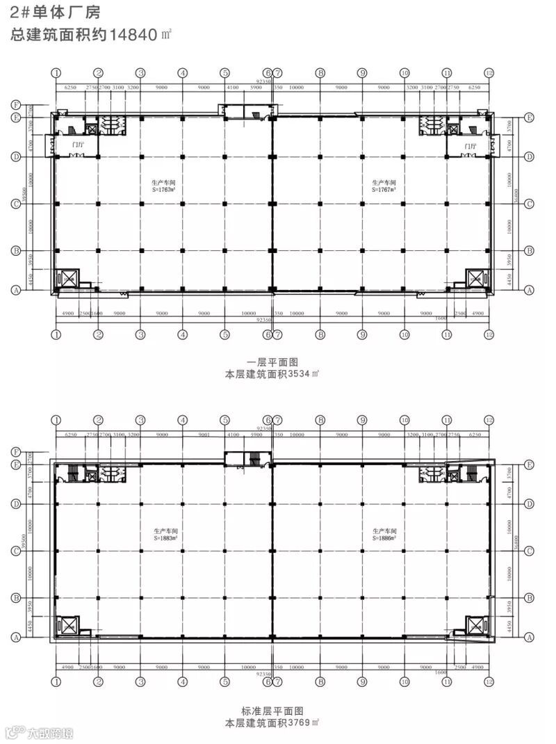
产业园位于太仓市城厢镇陈门泾路88号,项目总规划用地109.4亩,规划建设面积110000 m。一期建设面积54000 m (以高标准工业厂房为主).集新一代信息技术.智能制造.智电汽车关键零部件.新材料在内的三高型“高附加值.高成长、高产出"产业和公共研发平台.产业技术性服务平台.产业发展性服务平台.科技金融服务平台、 数据科技服务平台. 商务服务平台.园区运营性服务平台为一体打造生态型国际化智慧园区。为入驻企业提供全生命周期服务,为太仓科技产业发展赋能。
园区直接招商热线 400-0123-021 全程免佣金,欢迎预约看房 13524678515 微信同号

机场:本案距离虹桥机场50KM.浦东国际机场100KM.苏南硕放国际机场80KM.车程30-60分钟内均可到达。
港口:本案距离中国第一大港上海港50KM;距离长江第一外贸大港. 长江集装箱第- -大港太仓港40KM。
高铁:距离沪通高铁太仓南站5KM。
高速:本案东侧1KM即为204国道.往东8KM即达G15沈海高速太仓城区入口,往南10KM即达沪宁高速陆家入口,往北8KM即达沪宜高速双凤入口。
产业导向:
◎新一代信息技术
◎智能制造
◎智电汽车关键零部件
◎新材料
政府支持:
◎制造业专项扶持资金
◎科技类专项扶持资金
◎服务业专项扶持资金
◎高新技术企业奖励
◎创税奖励政策
◎人才奖励
园区直接招商热线 400-0123-021 全程免佣金,欢迎预约看房 13524678515 微信同号
大量优质资源未及时更新上线,请电话或在线咨询,说明您的详细需求,以便高效匹配资源。










资源对接:
上海厂房网 www.021cf.cn
葛经理 13391219793 , 400-0123-021
长三角地区专业有效的项目资源对接平台,欢迎提供您的资源,欢迎加我微信

