
gmp立面设计竣工 ©Hans Georg Esch
外资优质生产企业欢迎入跓,入跓咨询 13391219793 葛老师
未来的产业建筑在功能主导成本集约的大趋势下,可以拥有怎样的发展新的思路?在上海,作为临港新城的规划者gmp冯·格康,玛格及合伙人建筑师事务所,过去数年间在临港重装备工业区设计建造了多座产业建筑。
临港新城位于上海最东南角,行政归属浦东新区,规划人口45万。临港新城产业区将缓解上海都会空间扩张过程对工业空间的巨大需求。

©Hans Georg Esch
在深蓝条纹一期标准厂房和光仪电科技园“条码”标准厂房建设完工后,gmp再次于另外两块用地上进行大型生产厂房设计。gmp于本项目的设计目标是赋予用途未定的建筑以富有识别性的建筑体量以及外立面,为未来的使用者打造独一无二的“地标”建筑。

©Hans Georg Esch
弧线的建筑转角刻画了新建厂房的整体形象,同时令外部道路交通引导更加通畅。外立面采用银灰色小波纹钢板,延续了弧线的设计概念。入口通道和卸货区域从立面上突出抬起,波纹钢板随弧形造型延伸到屋顶。考虑到临港靠海的风雨天气因素,抬起的下部向外自然延伸形成雨棚,同时满足了立面统一和实际需求。

©Hans Georg Esch
北侧的华平地块设有众多的单层厂房建筑,这些建筑的基座沿中轴线对齐排列,中轴线端部是一座五层建筑,该建筑的外立面同样采用了相同的波纹钢板,水平向窗带贯穿其间,和谐融入厂房建筑群的整体形象。
南侧的地块也采用正交网格布局,地块上的单层和多层厂房呈组团式布置。流动的金属外立面和独特的圆角设计令其从周边环境中脱颖而出。

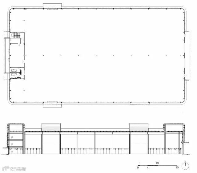
A型厂房首层平面、纵剖面

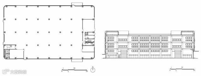
B型厂房首层平面、纵剖面

C型厂房首层平面、纵剖面
设计:曼哈德·冯·格康和尼古劳斯·格茨以及玛德琳·唯斯
项目负责人:严律己
竞赛阶段设计人员:潘梅、任培英、姚尧
实施阶段设计人员:任培英
中方合作设计单位:中国海诚工程科技股份有限公司
业主:上海临港华平经济发展有限公司,上海临远资产管理有限公司
建筑面积:158700平方米
外资优质生产企业欢迎入跓,入跓咨询 13391219793 葛老师

