苏州常熟城区 虞山高新开发区 苏州(常熟)智车城 2000-8500平独栋研发厂房出售招商 可环评 诚招:汽车/5G/半体导/科技类企业
项目名称:苏州(常熟)智车城
规划内容:独栋办公、小高层办公、研发办公、中试车间、人才公寓,七大产品类型 满足不同企业需求
【地址】:常熟市虞山高新开发区 阳光大道北(飞煌工业园对面)
【政策】:双创、两免两减半等产业政策
【产权】:50年产权
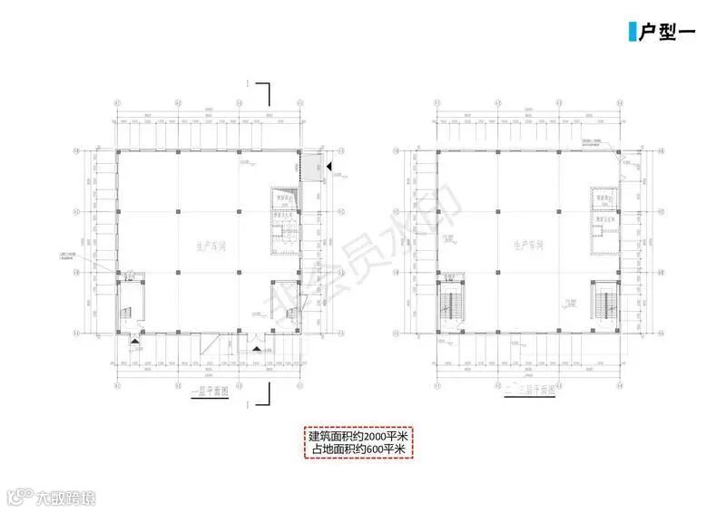
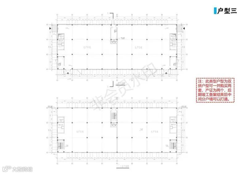
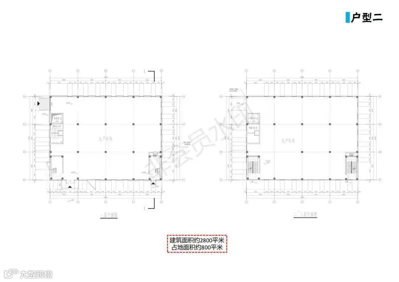
【面积】:2000~8500平方米可选
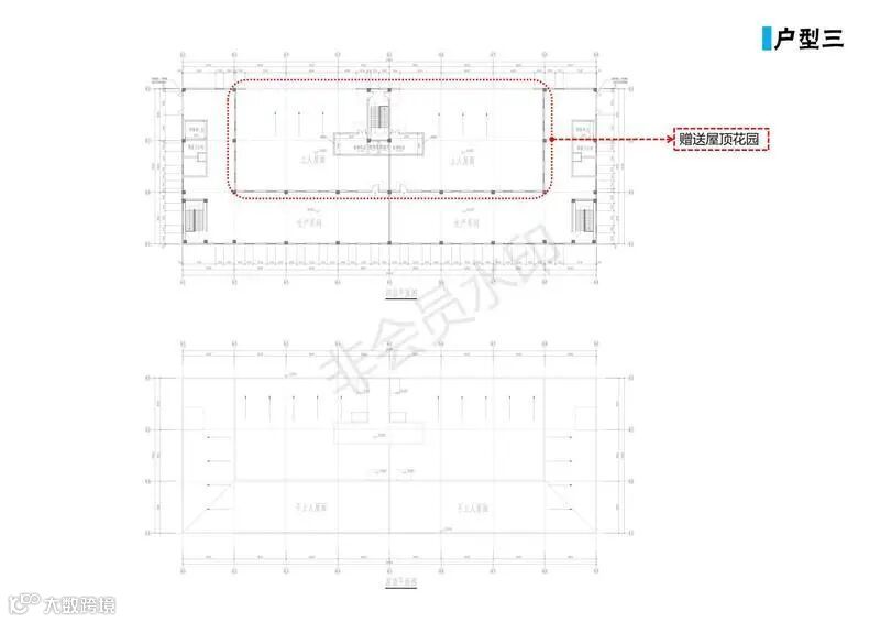
【层高】:首层8.1米、二~三层4.2米、四层3.9米。每户均赠送露天花园230平起。
【交通】:苏南硕放国际机场(35公里)、苏州高铁北站(30公里)、常熟港(20公里)
【报价】:4800元/平起 具体面谈
【入园要求】:产业最好是汽车相关,研发办公装配、智能网联汽车、5G、半导体等行业优先,入园有税收要求(2023.24.25三年),具体面谈。
项目招商 400-0123-021 或 13524678515
◆全国各园区现有工业用地接受厂房代建/定制厂房
◇中南高科园区直接招商热线 400-0123-021 或 13524678515 公司总部营销招商
★欢迎推荐客户 渠道佣金0.8%

























