中南高科:佛山三水云东海·高端电子信息港火热招商中....
【中南高科·云东海·高端电子信息港】
全国招商中心:4000123021或13391219793(微信同号)
【土地性质】:国有工业用地,50年产权,产权分割,一层一证
【项目位置】:广东省佛山市三水区云东海石湖洲大桥旁
【总规划】:133亩
【容积率】:2.99
【总建筑面积】:约16.7万㎡
【预计引入企业】:近60家
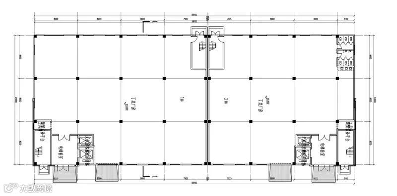
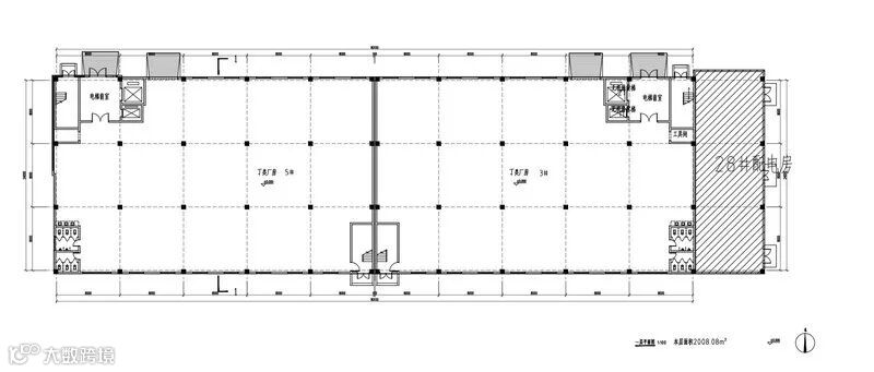
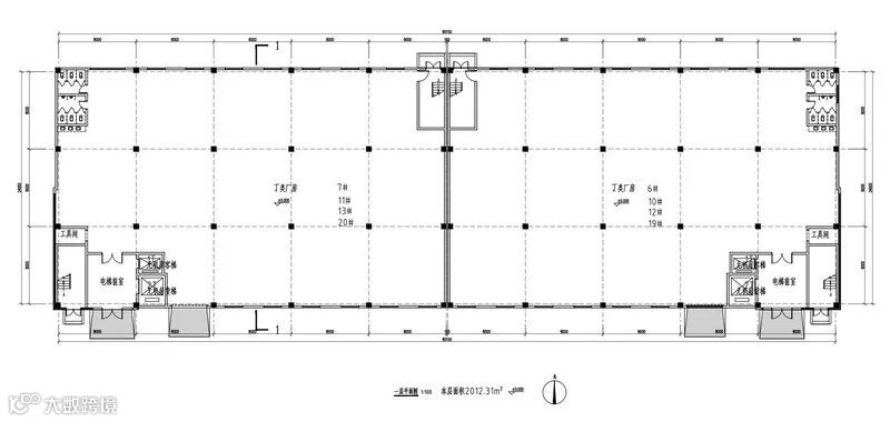
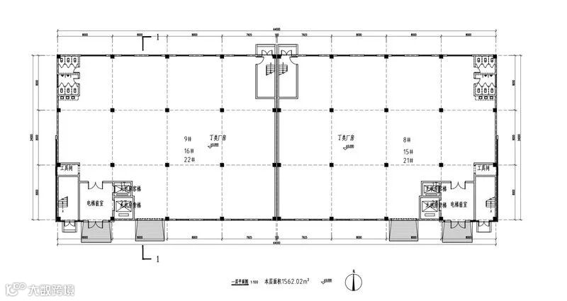
【产品】:
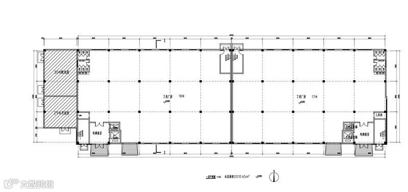
* 5层厂房:基底面积约800㎡,整栋面积约4000㎡
* 5层厂房:基底面积1000㎡,整栋面积约5000㎡
* 11层厂房:基底面积约1000㎡,整栋面积约11000㎡(湖景厂房)
* 12层厂房:基底面积约1000㎡,整栋面积约12000㎡(部分可看湖景)
【层高】:
* 5层厂房:首层6.3m,标准层4.2m,顶楼3.9m;
* 11层厂房:首层7.2m,标准层4.2m,顶层4.2m;
* 12层厂房:首层7.2m,标准层4.2m,顶层4.2m。
高层厂房部分可看湖景!
【承重】:
*5层厂房:首层楼面荷载3T/㎡,标准层楼面荷载500kg/㎡,顶层楼面荷载 350kg/㎡
*高层厂房:首层楼面荷载2T/㎡,标准层楼面荷载800kg/㎡,顶层600kg/㎡
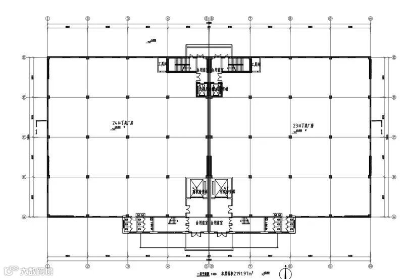
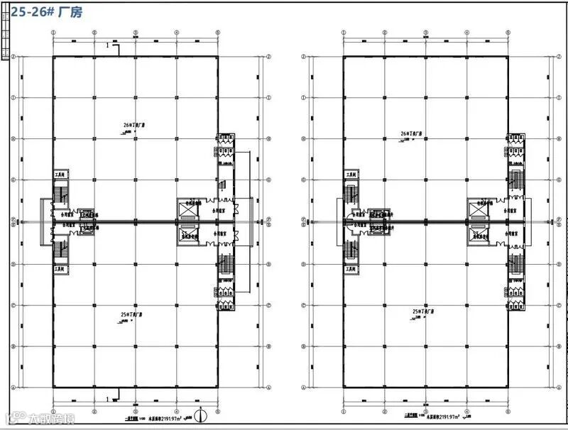
【货量】:24栋
【货梯】:5层厂房,安装一部货梯/2T,一部客梯/1T
高层厂房,安装一部货梯/5T,一部客梯/1T
【交通】:项目位于佛山市三水区云东海电子信息产业园内,位于碧云路与南丰大道交汇处,到广佛肇高速(新沙站)与二广高速收费站(唐家村站)仅需10分钟车程。10分钟可达三水市中心,40分钟可达佛山市中心,50分钟可达广州市中心;以云东海为中心,向外围辐射,到珠三角重点城市全部在1小时经济圈内,具有优越、便捷的水陆交通优势。
*航空:到佛山沙堤机场40分钟、广州白云机场50分钟、珠三角新干线机场(规划在建)45分钟
*水路:20分钟可到三水港、25分钟可到南拓码头
*陆路:珠三角拥有全中国最密集的高速路网,项目位于碧云路与南丰大道交汇处,距离广佛肇高速与二广高速收费站仅需10分钟车程,项目到三水区中心城区仅需10分钟车程,到佛山市中心仅需40分钟车程。一小时内可通达广州,两小时内可通达粤港澳大湾区其他城市。
距离三水南站高铁站仅20分钟车程,距离三水北站、云东海轻轨站仅10分钟车程。
【产业定位】:计算机、通信和其他电子设备制造业,互联网和相关服务,软件和信息技术服务业以及新一代信息技术相关的产业类型。
【配套】:
园区配套:本园区内设有综合大楼,设置一站式企业服务机构,并配有员工食堂,商业街及宿舍。
居住配套:周边10公里范围内有多个大型楼盘,如保利中央公园,美的半岛庄园,恒大悦珑台,招商誉府,保利雲上等。
商业配套:十分钟车程可达三大成熟商超:万达广场,三水广场,新动力广场。
医疗配套:周边十公里范围内多家大型医院,如三水区人民医院(三甲医院),三水中医院,三水妇幼医院,云东海社区医院。
教育配套:周边十公里范围内有三水区星驰幼儿园,石湖洲星华学校,杨梅小学,三水中学广东财经大学等。
旅游配套:周边五公里范围内有多个旅游景点,云东海国家湿地公园,三水荷花世界,三水森林公园。
【开发商】:中南高科隶属于中南集团(中南建设证券代码:000961.SZ)中南集团在全国500强排名第94位。中国民营企业500强排名第19位。旗下中南高科专业做产业开发运营服务板块。目前中南高科旗下产业园区遍及全国42个城市,64个园区落地。南海西樵创科谷项目是中南高科旗下承接粤港澳大湾区产业转移的标杆项目园区。













