中南高科·嘉兴桐乡石门镇产业园 标准厂房出售招商 嘉兴市桐乡石门镇羔羊工业园
标准厂房为3-5层标准厂房1200平起,可按企业的需求定制厂房,优先招引以下产业:电子信息,电子材料,电子元器件,电子相关配套,电子产品等计算机,电子设备制造,高端装备制造
中南高科招商中心接待考察预约电话 4000123021 或 手机微信13391219793(欢迎客户咨询,谢绝市场调查)

图:中南高科常熟虞山镇项目
一、项目区位:
1、大区位
1.桐乡市位于浙江省北部、杭嘉湖平原腹地,属于嘉兴五县市之一。东连嘉兴市秀洲区,南邻海宁市,北毗德清县、杭州市余杭区,西北接湖州市南浔区,北界江苏省吴江区。全市总面积727平方公里,辖8个镇、3个街道,2020年末常住人口103万,其中城镇人口69万,城镇化率达67%。桐乡是全国百强县、国家城乡融合发展试验区,世界互联网大会永久举办城市。
2020年桐乡全地区生产总值1003亿元,成为全省第9个GDP过千亿的县级市,实现财政总收入153亿元,其中一般公共预算收入94亿元,桐乡市位列中国百强县第29位。
桐乡地处浙北杭嘉湖平原腹地,居上海、杭州、苏州“金三角”中心,半小时内可到杭州、嘉兴、上海。沪杭高速、申嘉湖高速、练杭高速、320国道、沪杭高铁、京杭大运河贯穿桐乡。桐乡与上海、杭州已形成半小时交通圈,现在桐乡已深入融合到嘉湖一体化合作先行区和长三角一体化战略中。


2、小区位:
本项目位于嘉兴市桐乡石门镇羔羊工业园。项目距嘉兴市44公里,距桐乡市政府15公里,距桐乡市区10公里,距石门镇政府5公里,距桐乡高铁站15公里。
高速:距桐乡G60高速口约14公里,距S13练杭高速出口8公里,,距规划的苏台高速开口处5公里;临近京杭大运河、320国道、沪杭甬、申嘉湖高速和正在建设的苏台高速
高铁:桐乡高铁至杭州东站仅需17分钟,至上海虹桥站只需40分钟。
飞机:距离杭州萧山国际机场52公里,车程1小时10分钟,距离上海虹桥机场120公里,车程1小时40分钟,距离上海浦东机场150公里,车程2小时。

二、产业和生活配套:
项目地块位于桐乡石门镇羔羊工业园区先导区内,是政府有机更新的企业聚集区,此片区大型企业集聚发展,同时政府机构、市政公园、公共配套等配套齐全,未来区域企业吸引力较强。

三、产业方向:
桐乡经济发达,产业特色鲜明,是浙江省首批工业强市。桐乡是中国十大市场强县,目前已形成包括化纤、玻纤、纺织三大传统优势产业集群和高端装备制造(汽车汽配)、新材料、数字经济、时尚产业、现代服务业五大战略性新兴产业集群。目前桐乡拥有超16万个市场主体、4万家企业、10家上市公司,其中有3家进入中国民营企业500强,3家进入中国制造业企业500强,高新技术企业312家,省科技型中小企业771家。在zui新发布的全省科技进步统计监测综合评价中,桐乡排名嘉兴diyi,全省第六。
本项目产业定位为:智能制造为主导的无污染数字经济优质产业
四、项目介绍:
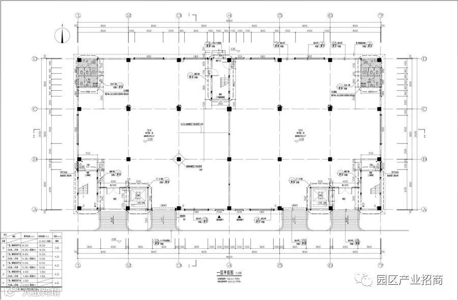
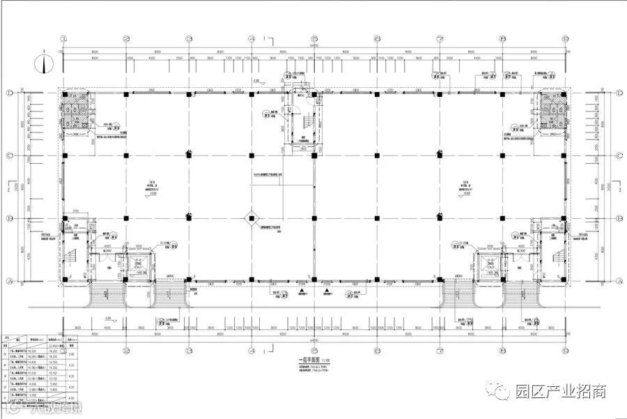
【项目总占地】:72亩,项目地块分2个地块,分别为羔羊路以西、盛园路以北、濮园路以南、锦园路以东的58.23亩地块和羔羊路以西、盛园路以南、锦园路以东的13.77亩地块
【总建筑面积】:约10万㎡【可定制】
【产品面积】1200~1600平米
【楼层】5层
【层高】首层:6米,标准层:4.2米,顶层:3.9米
【承重】一楼2吨,楼上450KG/平米
【产权】独立产权50年
【付款方式】首付2成起,可贷10年
【产业定位】电子信息,电子材料,电子元器件,电子相关配套,电子产品等计算机,电子设备制造,高端装备制造
中南高科招商中心接待考察预约电话 400-0123-021 或 手机微信13391219793(欢迎客户咨询,谢绝市场调查)
具体户型以现场洽谈和签约合同为准,本页面仅表达项目基本信息,仅供参考.


图:中南高科常熟虞山镇项目 类似产品供参考










