中南高科 南通如东洋谷智谷产业园 1200-8200平双层框架厂房出售(可定制)首层8.1米,二楼8.1米,招商中心 4000123021


中南高科如东产业园招商
单层钢构,双层框架
中南高科 南通如东洋口智谷
【总面积】:一期共80亩
【面积】:1200---3200平米左右(大面积可定制)
【产权】:独立产权50年
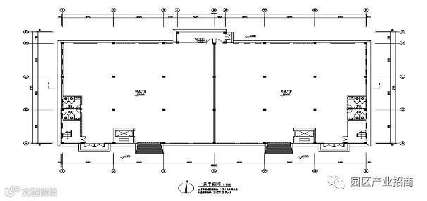
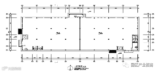
【楼层】:双层.
【配电】:60KVA/1000平米
【层高】:首层8.1米,二层3.9-8.1米
【承重】:一楼3T/㎡,二楼800kg/㎡
【付款方式】:首付3成起,可贷10年
【交付时间】:2023年12月
【项目定位】:设备制造、智能制造,汽车零部件、机器人、自动化、电子、医疗器械,新材料等高质量无污染行业

【交通】:园区紧邻G328国道距离如东东高速口15分钟车程。通过通洋、启扬高速、G328国道、S335省道等南接上海苏南、北连苏北齐鲁、西通扬泰宁马,构成便捷的高速路网

【生活配套】:项目周边配套完善紧邻园区管委会,三公里内包括人才公寓、中小学、医院、写字楼、公园等生产生活设施均已配套到位,具备有行政办公、金融商务、休闲娱乐、生活居住等功能;是一座建成现代化宜居、宜业的生态新城 。

【亮点】:长三角稀缺户型 ,享受省级开发区优惠政策返税50%
本项目位于洋口港经济开发区新城核心片区,洋口港经济开发区也属于省级经济开发区!
如东洋口港经济开发区
洋口港开发区是省级开发区,2005年开发的,主要依托丰富的港口资源同时发展产业及新城是要打造一个港口、产业、新城三为一体现代新城;开发区目前基本已经成型。项目位于开发区的新城板块内,园区紧挨着管委会附近三公里内有学校(幼儿园、小学、初中),商业街(长沙镇商业街区,管委会对面天瑞海港城)职工之家、三甲级人民医院、写字楼、公园等,目前开发区常住人口达到12万,距离如东市中心15分钟车程。能够充分满足企业员工的日常生活需求,也能满足企业的招工用人需求;
园区10公里内有洋口港开发区现代物流园
园区40公里内有电镀、酸洗表面处理厂(可除油、除锈、金属发黑、镀锌、镀金、镀银,喷粉)
园区50公里有危废,固废处理中心(年处理量4万吨)

配套可上门服务
开发区现已招引包括金光、桐昆、法国爱森、中广核、中天科技等重大产业项目,五四所在的新城片区目前三甲级医院、学校、商业街、住宅已全部成型。
后期南通新机场建成以及新出海口通航,如东洋口经济开发区将成为江苏乃至华东地区最大的国际化物流贸易集聚地,发展潜力及其可观。
交通优势
园区紧邻G328国道距离如东东高速口15分钟车程。通过通洋、扬启高速、G328国道等南接上海苏南、北连苏北齐鲁、西通扬泰宁马,构成便捷的高速路网;
距离海洋铁路15分钟车程,距离苏嘉甬高铁(建设中)20分钟车程,通过贯穿开发区的海洋铁路和洋吕铁路,接入全国货运铁路网;通过通苏嘉甬如东延伸段和如通苏湖城际铁路连接全国客运铁路网。
洋口港目前已建成15万吨级航道及7万吨级航道,规划建设20-30万吨级航道,依托东太阳沙建设码头及仓储区,满足矿石、原油等大宗货物运输需求。通过洋口运河和疏港三级航道连接长江,实现洋口港港口与长江黄金水道密切相连,进入全国内河航道网。同时洋口港是目前上海洋山港以北最近的10万吨级以上的深水码头,也是亚洲最大的集装箱港口。
距南通兴东机场50分钟车程,距南通新机场30分钟车程,通过南通兴东国际机场和规划中的南通新机场实现客货运全球高效通达。

项目产品参数
双层框架结构厂房层高8.1+8.1米,面积段:1200、1800、2400、3200、3600-10000。


产品优势:
两层框架厂房,满足企业生产办公一体的使用需要,8米超大柱距,空间灵活,可分割使用,采光通风良好,每个厂房单元有各自相对独立的疏散出口,道路以直线为主,路路相通,满足企业物流使用;
8.1+8.1双层挑高可定制三层四层多元化产品,单价2650.元起


扫一扫,加入【产业地产学习交流群】

点击下图查看全国在售厂房项目


