
房德科创·常州溧阳智能制造产业园 单层双层厂房出售招商 800平起
800-12000㎡智造厂房。
准现房招商,今年买今年用!
首付最低20%

【项目位置】:常州溧阳市360省道与腾飞路交汇处。
【面积】:占地233亩,建筑面积17.8万平米,容积率1.08。
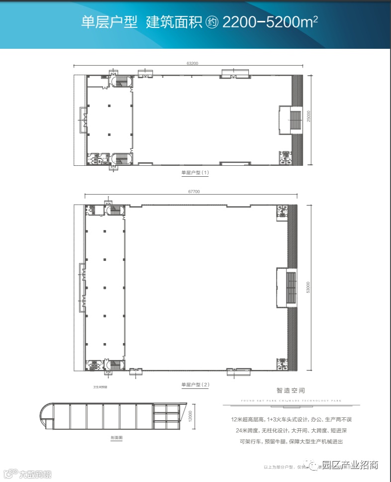
【户型】:单层钢构厂房、双层、三层、五层框架厂房。研发类、办公类厂房。
【产权】:国有五十年产权。
【消防等级】:丙类
【配电】:70KVA
【层高】:单层钢结构层高12米;双层厂房首层9米,二层层高4.5米;三层厂房首 层层高7.9米,二层层高4.5米,三层层高3.9米;五层厂房首层层高7.2米,二、三、 四层层高4.5米,五层层高3.9米。
【产品形式】单层钢结构2200-10000㎡;双层1200-8000㎡;三层1150-4800㎡。
【产业方向】:智能环保设备、机械制造、机械加工、
【开发商】:上海房德科创集团








相关项目欢迎与我们对接,专人为您服务
扫一扫,加入【产业地产学习交流群】

点击下图查看全国在售厂房项目


