岁金智谷·新智造产业园 晋江经济开发区 新塘街道新塘园 厂房出售
岁金智谷·新智造产业园由岁金集团联合361°共同打造的岁金智谷系列首个园区,列为泉州市政府重点项目之一。

【项目介绍】
岁金智谷·晋江新智造产业园位于泉州晋江经济开发区新塘街道新塘园,总规划用地约90亩,总建筑面积约11.5万平米。以高效、智能、生态原则,提供集生产、研发、商务、商业、仓储服务等多业态的产业一体化综合服务,推动晋江传统产业向智能化集群发展。



【交通优势】
项目盘踞泉州与石狮中轴链接之地,依托城市主干道、高铁、轻轨、机场、快速路等厦漳泉核心都会交通大动脉,形成了快速辐射区域,便捷通达全国,有效对接世界的交通优势,为今后企业国内、国际化业务拓展奠定了良好的交通基础。


【区域概况】
晋江——闽南金三角核心,全国百强县级市前十,品牌之都
作为厦漳泉重要连接处,地位日益突出,未来发展尤为瞩目,在国家城市群大调之下,厦漳泉都会圈、泉州环湾计划之上,投资潜力大,科技创新强劲,主要经济产业发达。
【区域规划】
项目所在泉州经济开发区新塘街道受厦漳经济双重辐射,发展条件得天独厚作为晋江中心城区的重要组成部分、泉州环湾发展的重要组团,又与石狮连接,区域交通崛起,利好连连。
项目距离新塘街道办事处约1公里,距晋江市政府约8公里,交通便捷,区位优势显著,周边餐饮、居住、商务、教育等配套一应俱全,并通过公交线路直达市区,为通勤带来极大便利。
【产业规划】
提供集生产、研发、商务、商业、仓储服务等多业态的产业一体综合服务,为入园企业带来固定资产载体、政策保障、服务支撑红利。
【产品展示 】
项目坚持以高标准的工业厂房建设理念为晋江带来产业变革的精工产品。




【产品优势 】
高标准独栋/双拼厂房
●50年独立产权,企业经营安全稳健
●1000-8000㎡,可分层可按揭可定制
●首层6-8.1米挑高,便于企业生产使用
●首层2吨/㎡荷载,货运无忧
●入口双门设计,货物运输便捷
●产办分区,提升企业形象, 降低互相干扰
●创新外观设计, 引领高新工业园区新标准
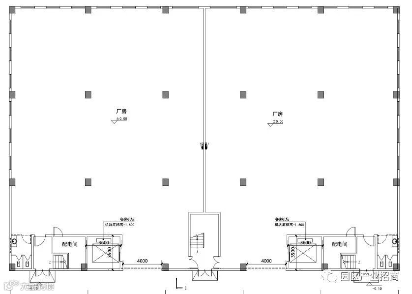
「独栋」

(一层平面图)

「双拼」
【361°岁金智谷·晋江新智造产业园】

部分建成后实景图






扫一扫,加入【产业地产学习交流群】

点击下图查看全国在售厂房项目


