中关村智酷·中化学(鄂州)人才与产业创新基地 鄂州数字科技产业园 厂房出售招商 2-3层框架厂房1200—8000平米

【项目概况】鄂州数字科技产业园位于临空经济区将军大道以北,鄂东大道以南,项目以新一代信息技术为引领,核心发展智能制造、光电子产业及数字经济,构建临空智造产业集群生态。由湖北中关村智酷科技服务有限公司负责招商运营工作。

【项目名称】:中关村智酷·中化学(鄂州)人才与产业创新基地
【项目位置】:鄂州市临空经济区将军大道以北、燕莎二路以西
【规划】:项目首开区占地约216亩,总建筑面积149500㎡,涵盖生产制造、研发试验、孵化加速、总部办公、员工餐饮住宿等全生产、生活场景功能
【交通】:
{铁路运输}:武福高铁穿境而过,拥有鄂州东站、花湖站两个铁路站点;
{航空运输}:鄂州花湖机场与相距90公里的武汉天河机场构成航空客货运输双枢 纽,将成为中部地区最重要的国际航空物流中心;
{公路运输}:策划“五横六纵”路网,五横:鄂东大道、将军大道、杨岭大道、吴 都大道、吴楚大道,六纵:文塘路、孙权路、燕沙路、燕沙东路、燕花路、走马湖东路;武黄、武鄂高速域内交汇,机场高速在建;
{港口航运}:临近长江航运中心,鄂州港、燕矶港、杨叶港在沿江分布,是武汉 新港、“青阳鄂”大循环经济示范区的重要组成部分;
{水空联运}:燕矶港紧邻鄂州机场,规划建设5000吨级泊位14个,与机场形成 水港+空港联动发展

【户型】:2-3层框架厂房1200—8000平米
【层高】:首层8.1米、二层4.2米、三层4.2米女儿墙3米
【承重】:首层地面3.0t/㎡、标准层楼面600kg/㎡。
【年限】:50年独立产权
【付款方式】:首付30%—40%
【交房时间】:预计2022年11月30日
【项目定位】:武鄂同城示范区临空制造创新港
【开发主体】:鄂州数字园区投资有限公司(央企+政府)
【项目运营方】:北京中关村智酷双创人才服务股份有限公司
【园区服务】:首席管家服务、科技股权投资、科技金融服务、政策申报、人才服务、科技会展、数字化服务、跨境服务、企业家俱乐部、工商服务、空间服务
【园区内配套】:员工公寓15000㎡、园区商业5000㎡、停车位382个、厂房车位配比100m/0.6个
【消防标准】:丙二类消防
【货梯荷载】:3t

园区展厅

厂房人视

研发办公

独栋厂房(2层)

公寓

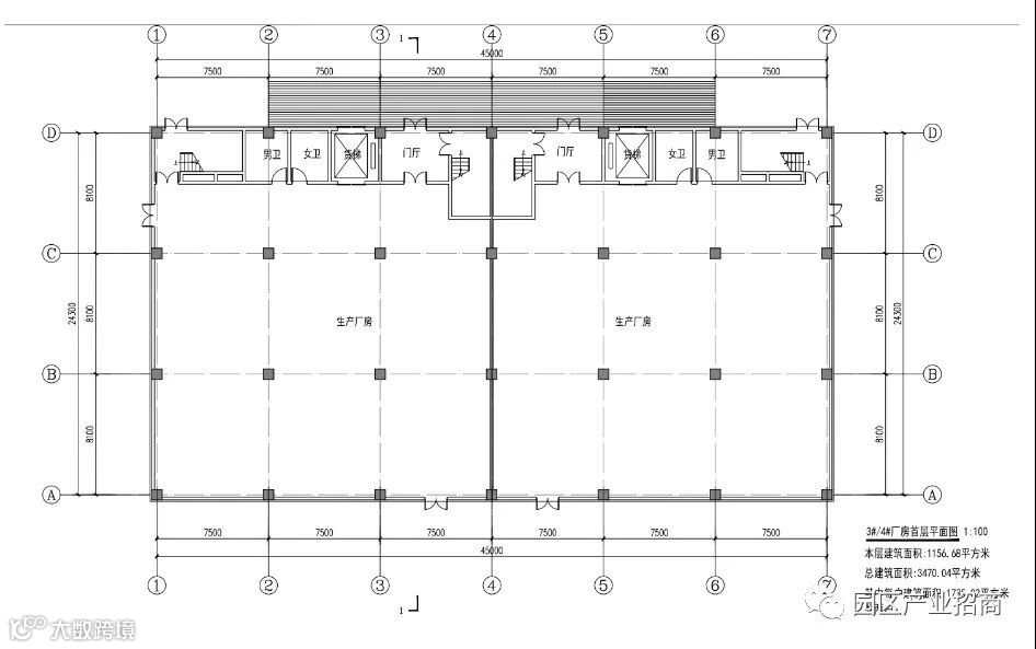
3#4#厂房平面图

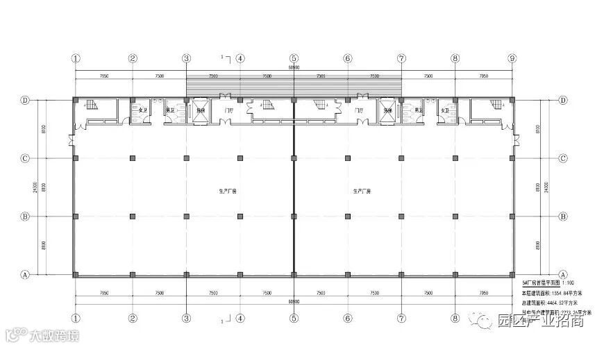
5#厂房平面图

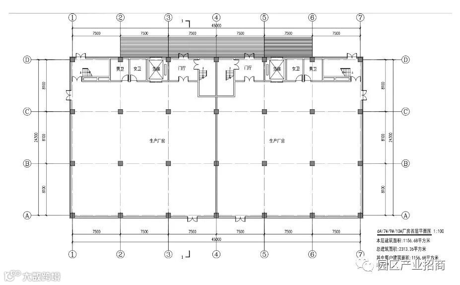
6#7#9#10#厂房平面图

8#11#厂房平面图

12#厂房平面图

14#厂房平面图


扫一扫,加入【产业地产学习交流群】

点击下图查看全国在售厂房项目


