福建漳州芗城金峰经济开发区 万福产业园 厂房出售招商 800平起
1、项目位置

2、总平图

3、项目基础信息
【项目位置】:漳州芗城金峰经济开发区的漳华路与联十四路交汇处。
【产权年限】:50年独立产权
【项目户型配比】:

【层高荷载基数】:

【首付比例】:30%起
【装修标准】:毛坯
【占地面积】:约110亩
【总建筑面积】:约13万㎡
【容积率】:1.9
【 产品面积】:800-6000㎡定制和标准厂房
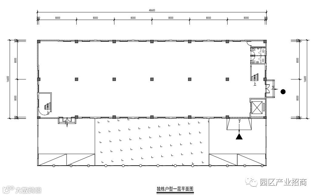
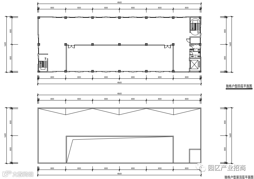
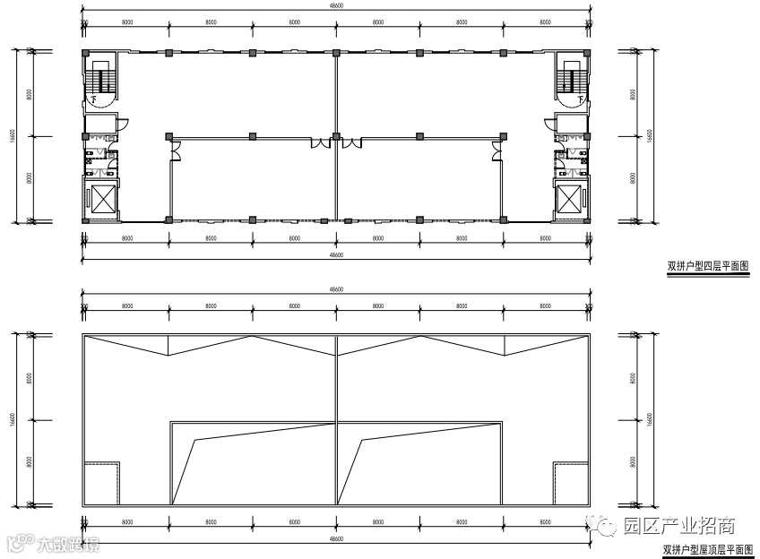
【产品户型一】独栋



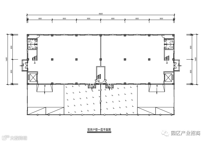
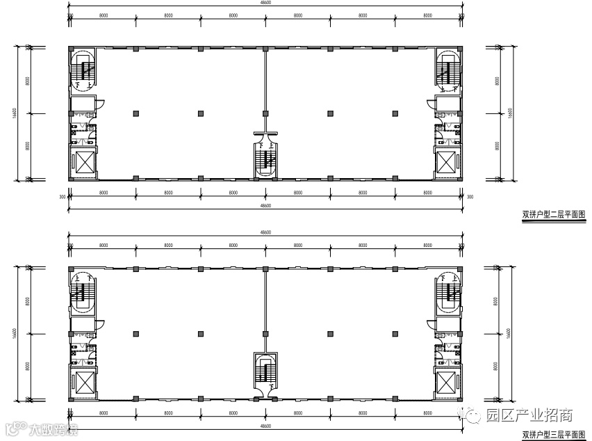
【产品户型二】双拼



【物业】:待定 元/㎡
4、区位图


5、效果图



6、配套信息(交通配套)
①、项目地处于漳华路与联十四线交汇处,邻联十四线。20分钟可达漳州市区,一小时内可到达厦门岛内。3公里范围内有漳州西(漳州北连接线)和石亭(厦蓉高速)两个高速出入口,交通非常便利。
7、产品优势卖点
①、卖点一【产品价值】
独栋或双拼可赠送240-500㎡的院子。
②、卖点二【区位价值】
汇聚价值,畅享城芯醇熟配套
项目位于金峰开发区产业核心区,近临漳州市政府,畅享主城芯醇熟配套
③、卖点三【交通价值】
本项目位于漳州芗城金峰经济开发区的漳华路与联十四线交汇处,邻联十四线。20分钟可达漳州市区,一小时内可到达厦门岛内。3公里范围内有漳州西(漳州北连接线)和石亭(厦蓉高速)两个高速出入口,交通非常便利。
周边3公里范围内坐拥2大高速出入口,到厦门、三明、龙岩、广东及漳州其他区县十分便捷,1小时畅达厦门空港、漳州港、海沧港、厦门港,2公里范围内坐拥3大物流园区:漳龙物流园、三宝物流园、东马物流园
以上最终的解释权归漳州万福投资有限公司所有。
扫一扫,加入【产业地产学习交流群】

点击下图查看全国在售厂房项目


