中南高科·惠泰·智慧创新园,广东惠州惠城区惠南科技园,标准厂房出售,1000平起售,首付3成,三层独栋和多层分层产品,一小时畅游深莞惠。
招商中心热线 400-0123-021 或 13391219793

项目位于惠州市惠城区惠南科技园内,占地85亩,总建筑面积约20万㎡。项目定位以新一代电子信息产业为主,聚合其上下游产业链,以生产制造、研发办公、商业配套为功能分区的综合园区。项目预计落成后可招商引资约70家新兴技术企业,创造约5000多个就业机会和高额税收,打造粤港澳大湾区电子信息产业链的智慧创新园区。
全国36强国家级高新区 百亿惠南科技园
三公园环绕 一路之隔12年教育醇熟配套
入园即享近百项产业服务
50年产权红本产房
建面约1000-12000㎡高标厂房
首付3成起,享千万额度入园贷
地址:惠州市仲恺高新区惠南科技园·赢合科技旁

项目基本情况
项目名称:惠泰·中南高科·智慧创新园
项目地址:惠州市仲恺高新区惠南科技园内
开发主体:中南高科
占地面积:34274㎡
建筑面积:约20万㎡
土地性质:商住用地+M1工业用地
交房时间:2023年
交房标准:毛坯交付
单层面积:约1000㎡-2100㎡
整栋面积:约5000㎡-12000㎡
高层厂房:首层7.8m,标准层4.2m
独栋产房:首层6.9m标准层4.2米顶层3.9米
厂房承重:首层2t~3/㎡,标准层800kg/㎡,顶层350kg/㎡
电梯荷载:一货一客,3吨、1吨
道路宽度:4米-6米-8米
项目定位:新一代电子信息

项目区位:临深产业转移首选地
粤港澳大湾区战略规划确立了惠州 “大湾区东部门户城市定位”。在深莞惠区域加速协同发展下,给惠州带来扩大开放、极力创新等效应。惠州正加快成为珠江东岸新增长极、粤港澳大湾区高质量发展重要地区和国内一流城市的步伐!

项目毗邻深圳市,承接深圳东扩、产业转移优势,全面推动惠州进入湾区核心城市。全新机遇起航,与时代同频,铸就湾区新城!
项目交通:一小时畅游深莞惠
随着“丰”字交通发展战略推进,区域内两城轨 一高铁 一机场 多高速,一小时畅游深莞惠,出行畅无忧!(莞惠/深惠城际、广汕高铁、平潭机场、惠大高速/潮莞高速/甬莞高速等)
高速高铁城轨机场 多维交通网
距数码园收费站约2KM 4分钟车程
距惠城南站(建设中)3KM 6分钟车程
距沙澳收费站约6KM 10分钟车程
距平潭机场约20KM 30分钟车程
一小时畅游深莞惠
距惠州市区约10KM 15分钟车程
距深圳约50KM 50分钟车程
距东莞市约90KM 70分钟车程
距广州约120KM 90分钟车程

完善配套:一刻即享 醇熟配套
产业联盟 优秀的企业聚在一起
仲恺惠南园产业聚集度高,是惠州市的高新产业核心发展区,片区入驻了8家上市公司,惠南园预计21年规上工业总产值可突破200亿
仲恺惠南园前身是惠州(数码)工业园区,2006年批准为省级开发区。园区已引进生产型工业项目400多个,初步形成以移动互联网、平板显示、智能装备三大产业为主导的新型科技园区。
园区控制性规划面积6.63平方公里,人口约6万人。预计全年规上工业总产值可突破200亿元。

3KM内 生活配套成熟
完善城市配套,项目周边“衣、食、住、行、娱、购、游、学”配套一应俱全!

产城融合 园区内衣食住行无忧
食:员工食堂、餐厅
住:人才公寓、宿舍、酒店
商:购物中心、便民商业街
园:服务中心、文娱中心等
园区内配套齐全,满足企业各种需求!

周边三公园环绕
三公园环绕 (淡水河谷湿地公园旁、惠南湖湿地公园、惠南中心公园)
项目与淡水河谷湿地公园一路之隔,俯瞰约323万平米湿地公园(规划面积)

惠南中心公园效果图
户型展示-5层独栋
独栋基底面积1000㎡,整栋5002㎡
一楼层高6.1m、标准层4.2m、顶楼3.9m
一楼承重2T-3T/㎡、标准层800Kg/㎡、顶楼350Kg/㎡

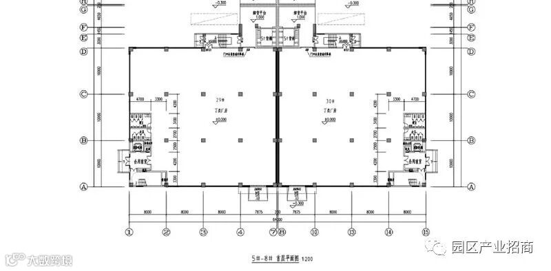
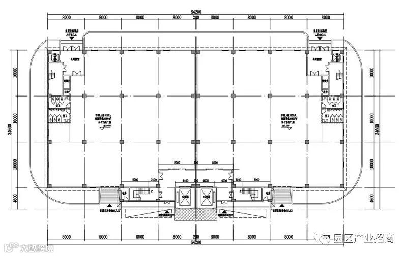
户型展示-H型12层高层厂房
单户面积1065.56㎡,双拼2131.12㎡,整层4262.24㎡
一楼层高7.8m、标准层4.2m
一楼承重2T-3T/㎡、标准层800Kg/㎡、顶楼600Kg/㎡

户型展示-9层双拼高层
单户面积1026.8㎡,双拼2053.6㎡
一楼层高7.8m、标准层4.2m
一楼承重3T/㎡、标准层800Kg/㎡、顶楼600Kg/㎡

地址:惠州市仲恺高新区惠南科技园·赢合科技北侧约100米
招商热线:4000123021


