中南高科云南昆明高新区智汇产业园 共36栋3层5层独栋厂房出售招商 1141平起 单价4000起 主导产业:生物医药、大健康、电子信息、智能制造、新材料
招商中心 4000123021 或 13391219793
昆明是“一带一路”蓝图国内前沿阵地,处于亚洲地理中心和5小时航空圈中心。呈贡是昆明市重点核心区,已定位为滇中城市经济圈“中央处理器的核心”。素有“省府东南大门”之称,是未来“八入滇、五出境”大通道的汇聚地,在桥头堡战略中具有重要地位。而中南高科昆明智汇产业园位于昆明高新区马金铺核心区域,此区域正大力建设专业园区,打造宜业宜居新城区。项目占地面积500亩,首期开发153亩,约14.9万方。项目总投资约20亿,预计投运后年产值约6亿,将打造成以电子信息、生物医药大健康、智能制造为主导的多元智造园区。
中南高科云南昆明智汇产业园
【占地面积】152.87亩
【建筑面积】14.9万平方米
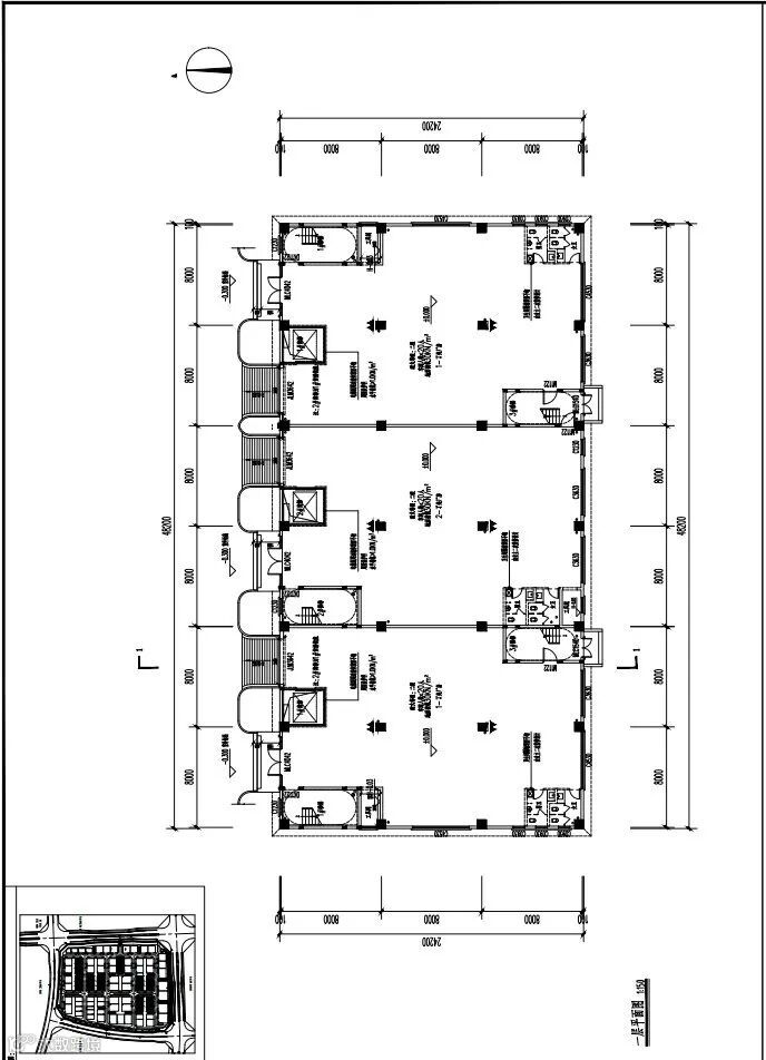
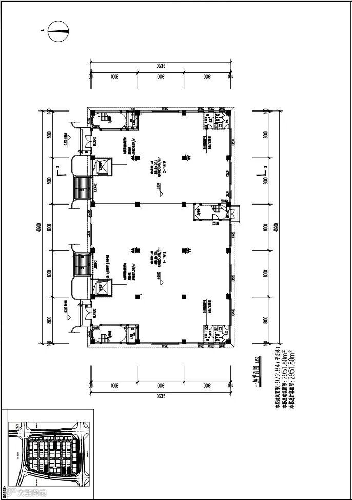
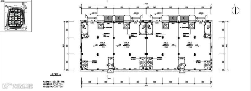
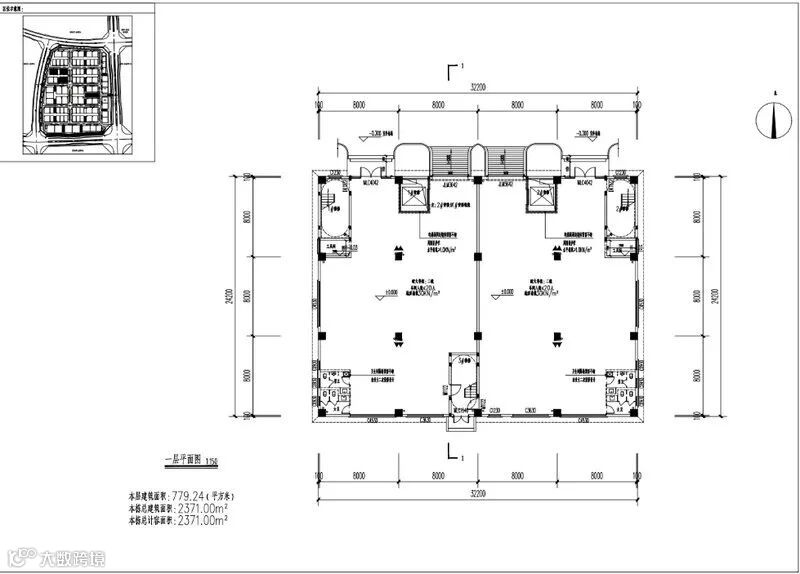
【产品】3F为主,共36栋独栋厂房,其中两栋为五层独栋
【层高】3F:首层7.8米,二层4.2米,三层3.9米
【承重】首层自然承重 无地下 ,二层450公斤,3层350公斤
【消防等级】丁类
【面积区间】1141-10300㎡
【配电】50KVA/1000平米,可增容
【产权】50年
【付款】可按揭贷款十年,最低三成首付
【交房时间】一批次2022.9.30,二批次2022.12.31
【定位】生物医药大健康,电子信息,智能制造,新材料
【税收】300元/㎡/年(考核时间2024年,仅一年)
【车位】443个机动车车位,700余个非机动车位
【周边配套】距离高新区管委会2.9公里,距滇池风景区 5 KM,项目东侧1km产业氛围成熟,集聚生物医药(云南植物药业、滇虹药业,龙津药业,云南生物制药)、新材料、电子信息(闻泰科技)、食品(百事可乐、娃哈哈)等产业,2km范围内覆盖3个小型居住社区(水岸晴沙、融创春风十里、化城社区)。项目周边有3个物流园,分别是万维物流园二期、熠跃物流园,招商物流。项目东至马金铺路、南至化成街、西至华荣路、北至云顺路,项目东、西及北侧均为 M1 类工业用地,且产业类型基本确定,入园与多宝电缆、化妆品第一股贝泰妮等云南制造业的知名企业为邻
【交通】项目临近呈贡新区,距昆明长水国际机场约 37 公里,距离市政府和昆明南站约12 公里;距离规划地铁 9 号线马金铺站口 900 米,距离昆磨高速(G8511)出入路口约1.6公里,昆磨高速是中国国家高速公路网北南方向主干线银川—昆明高速公路(国家高速G85)的联络线之一,与京昆、沪昆共同组成北上东向出滇大通道,南至西双版纳勐腊县磨憨,磨憨口岸与老挝口岸对接,是中老两国唯一的国家级一类口岸。随着“一带一路”的推进,昆明作为面向南亚和东南亚的桥头堡,马金铺片区的区位优势更加明显,昆明南以北的昆磨高速公路(国家高速G8511)路段均免费通行,大大节省了物流和通勤成本。(昆明南为主线收费站)












