嘉霖·龙兴科创湾 广东佛山南海区大沥镇标准厂房出租出售(近广州)
以9F高层厂房为主,单套面积段区间700-1300㎡,单层面积段区间1400-2600㎡
50年国有产权厂房 集产研办于一体
招商中心热线 400-0123-021 或 微信13391219793
【项目介绍】
嘉霖·龙兴地产率先重点打造大沥首个混改项目,可租可售,助力大沥产业高质量发展。
【项目概况】项目总规划约60亩,总建筑面积约12.8万㎡,容积率约3.0
【产业定位】以电气机械及器材制造、智能装备产业、通讯及其他电子设备制造为主导,聚合其上下游产业链

【项目区位交通】
立体交通 构筑大湾区1小时产业经济圈
项目位于沥桂新城大沥核心区,项目距离广佛高速口仅2公里,邻近佛山西站,20分钟直达广州南站,40分钟到达东莞虎门站,60分钟到达深圳北站,实现大湾区1小时产业经济圈。

【政策解读】
政策支持企业无忧发展

【项目配套】
周边配套成熟,教育、医疗、商业、产业配套齐全,项目规划公交站场、物业服务中心、饭堂、便利店等配套,满足企业员工生活需求。

【产品介绍】
项目产品以9F高层厂房为主,单套面积段区间700-1300㎡,单层面积段区间1400-2600㎡。设置10米双向车道,满足常用货车运输需求。整体产品完全结合生产流程布置,内部空间灵活组合,集生产、研发、办公功能于一体。

【户型鉴赏】
9层高层产品:
A户型 1300+1300 双拼

户型亮点:
双入口设计,带卸货空间,人货分流互不干扰
8*11m柱距,空间利用率高,便于布局生产动线
首层荷载3吨,标准层0.8-1.2T,承重可定制,大荷载满足企业生产需求
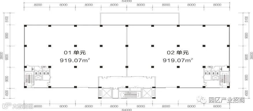
B户型 900+900 双拼

户型亮点:
双入口设计,带卸货空间,人货分流互不干扰
8*9m柱距,空间利用率高,便于布局生产动线
首层荷载3吨,标准层0.8-1.2T,承重可定制,大荷载满足企业生产需求
C户型 900+900 H型

户型亮点:
双入口设计,带卸货空间,人货分流互不干扰
8*11m柱距,空间利用率高,便于布局生产动线
首层荷载3吨,标准层0.8-1.2T,承重可定制,大荷载满足企业生产需求
D户型 1100+1100 H型

户型亮点:
双入口设计,带卸货空间,人货分流互不干扰
8*11m柱距,内部空间自由组合,便于布局生产动线
首层荷载2吨,标准层0.8-1.2T,承重可定制,大荷载满足企业生产需求
【品牌介绍】
24载嘉霖 · 龙兴 与时代同步
集团创立于1998年,总部位于深圳前海,业务领域涵盖“城市更新、科技股权投资、产业园区开发运营”三大板块。集团以前瞻性的目光抓紧时代发展契机,以“大湾区战略、区域化聚焦”为战略思维,完成扎根深圳,辐射广州、佛山、东莞、惠州等粤港澳大湾区的战略布局。截至目前,已累计开发运营项目20余个,土地储备项目逾30个。

标杆产业园代表项目



