项目名称:四川省医用卫生应急产业基地项目
项目位置:四川省医用卫生应急产业基地项目/四川宜宾市南溪区南溪罗龙工业园区。
招引行业:大健康产业,理疗器械,应急物资,穿戴设备,无污染。
政策:根据宜宾市出台支持医用卫生应急产业发展十六条政策措施,可享受免租, 免税,可一事一议。
产品:
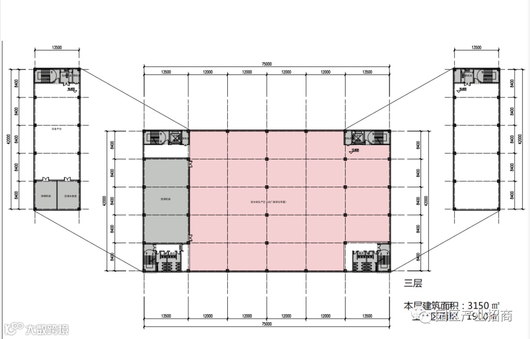
3层框架结构,单层约3150㎡(柱距8.2 m*12m)和约2500㎡(10.5m*9m),单层不可分租。一楼实心地面,楼上荷载500KG/平米。
层高:首层6.3m,第二层6.3m,第三层6.3m。
土地性质:M2,容积率1.05。
消防等级:丙类。
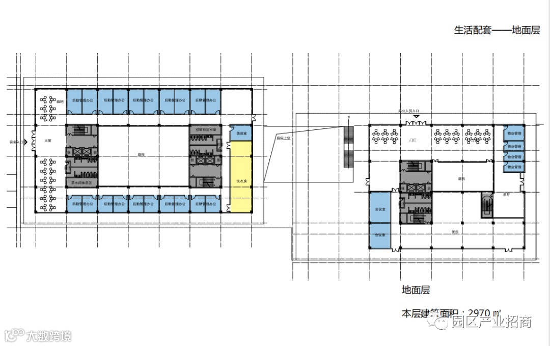
配套:食堂,公寓楼,办公大楼。
车位:260辆小型车泊位,400辆电瓶车泊位和8辆大货车固定泊位。
招商中心 4000123021




















葛毅明 133 9121 9793 ,从事产业招商17年⁺ 曾任职:上海厂房网www.021cf.cn总经理 、华夏幸福产业招商总监 、中南高科产业招商总监。
加好友,自动加入【产业地产学习交流群】



