南通(启东)万洋众创城 独门独院厂房 2469元/㎡起 按需定制
位于南通市启东高新技术开发区,北靠吕四大港,南连崇启大桥,距上海直线距离53公里,西南接京与启东之间的宁启高速公路。全面融入上海一小都时市经济圈,接轨上海。
【项目概述】项目总规划用地1000亩,总建筑面积约150万㎡,一期419亩,建筑面积约60万㎡
【行业】机械电子、高端零部件、新材料、生命健康
【面积任选 按需定制】:1800㎡、2400㎡、3600㎡、4200㎡、5200㎡
【三层厂房层高】首层8m,二层5.5m,三层4.5m
【五层厂房层高】首层7.5m,2-5层4m
【三层厂房荷载】2层600kg/㎡,3层500kg/㎡
【五层厂房荷载】2-3层500kg/㎡,4-5层400kg/㎡
【配套】企业服务中心、人才公寓、食堂、商业综合体、学校、医疗
【交通】1小时内直达浦东国际机场、南通兴东国际机场,1.5小时到达虹桥国际机场。未来20分钟到达上海北站(北沿江高铁规划2025年通车)
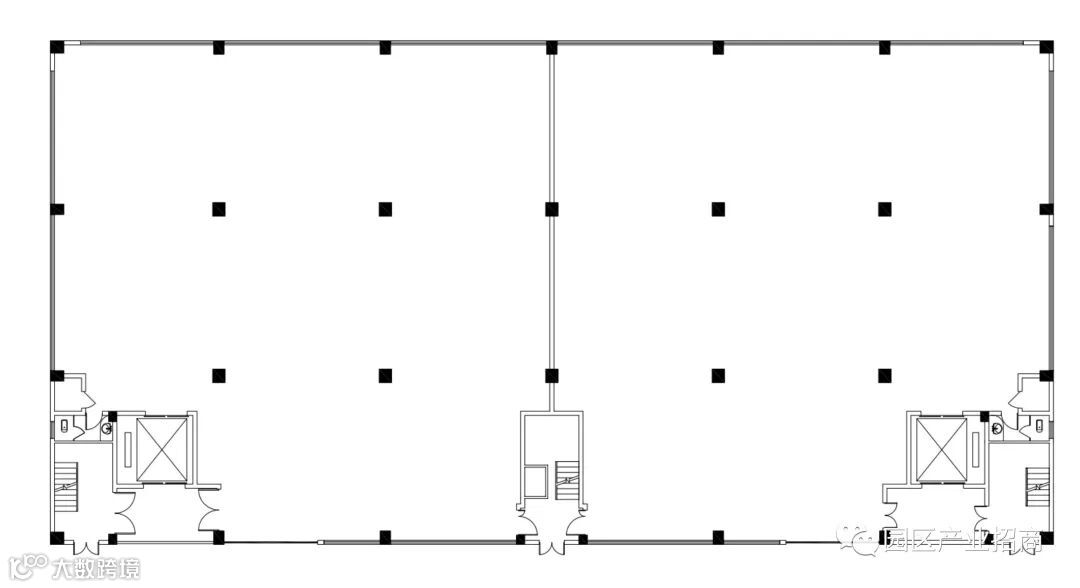
产品介绍
多层标准厂房 面积任选
三层厂房:首层层高8米,二层5.5米,三层4.5米
三层厂房:2层荷载600kg/㎡,3层荷载500kg/㎡
五层厂房:首层层高7.5米,2-5层4米
五层厂房:2-3层荷载500kg/㎡,4-5层400kg/㎡
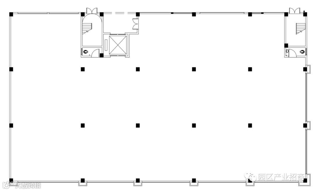
双拼厂房
●单元每层面积约600㎡
●竖向单元整幢总面积约1800㎡(共3层)
独栋厂房
●单元每层建筑面积约780-1200㎡
●整幢总面积约2400-3600㎡(共3层)
联排厂房
●单元每层建筑面积约780-1000㎡
●整幢总面积约4200㎡-5200㎡(共5层)
定制厂房 (户型按需定制)
完美匹配大部分企业的入驻需求,可按照行业特性及生产工艺,
为企业量身打造独立发展空间,按需定制层高、荷载、柱距等。












招商顾问推荐:葛毅明 133 9121 9793 ,从事产业招商17年⁺ 曾任职:上海厂房网www.021cf.cn总经理 、华夏幸福产业招商总监 、中南高科产业招商总监。


