湖州南浔双林吉成产业园 11层 5层 4层研发厂房出售招商 大平层厂房出售1200平起
项目位置:湖州市南浔区双林镇湖盐公路
项目地块距离招商展示中心约100米。

一、项目简介:
南浔双林吉成产业园位于湖州市南浔区双林镇,紧邻湖盐公路,距离申嘉湖高速双林互通约2公里,1小时车程可快捷杭州、苏州、上海等城市。
项目用地117亩,建筑总面积19万平方米,由2幢11层综合配套楼、6幢4层厂房及9幢5层厂房组成。项目于2021年12月开工建设,计划18个月时间建成,正式交付时间为2023年12月。
二、项目亮点:
1、本项目为南浔区实施新型产业园政策后第一个开工建设的园区,中小企业购置本项目标准厂房,具备产权分割和办理产证预售登记的明确通道。
2、本项目厂房配置标准(承重、消防等级、货梯、厂房内部交付标准)目前在全湖州市所有产业园中最高,入园企业可实现真正意义上拎包入驻。
3、项目产业准入方向广泛,具备一定税收标准且无污染企业均可入驻。
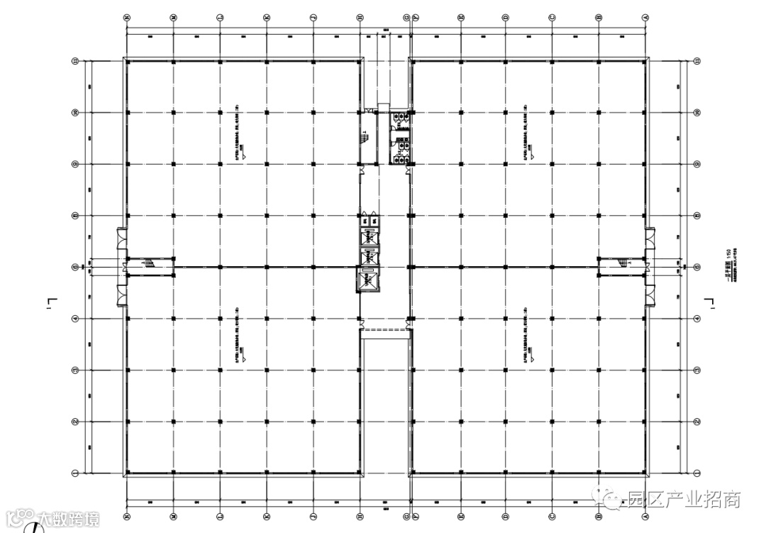
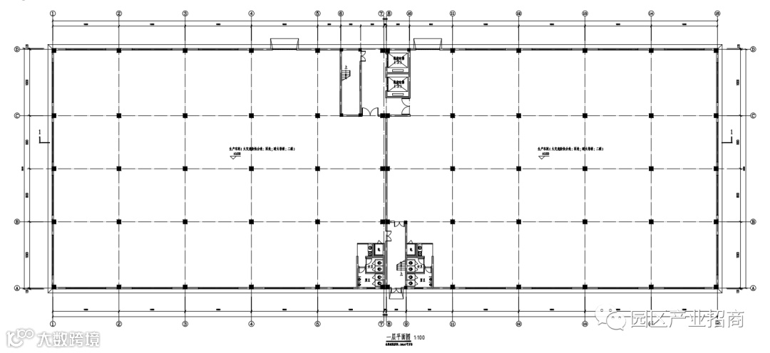
二、户型及配置简介
1、厂房分层分单元销售,户型面积1200㎡-30000㎡不等。
2、底楼层高7.8m,二楼层高5.5m,三楼及以上层高4.5m。
3、柱网尺寸大,厂房跨度10m-13.5m,柱距9-10m,便于设备布局。
4、一楼承重3T/㎡,二楼1T/㎡,三楼800kg/㎡,四楼及以上600kg/㎡。
5、厂房配置有3T及5T货梯。
6、消防耐火等级统一配置丙二类消防(含消防喷淋)。
7、厂房外墙真石漆、内墙及顶棚白色无机涂料、地面一体现浇磨平,公共卫生间精装(入驻企业可实现真正意义上的拎包入住)
8.项目容积率2.53
三、招商方向
智能制造、新型纺织、绿色家居、新材料等高产出、环境友好的成长型企业。欢迎广大企业客商前来参观考察。
四、税收要求:225元/平









欢迎来访考察。

点击下图查看全国在售厂房项目


