长三角稀缺的单层钢结构厂房&双层框架厂房,中南高科六安市金安智能制造产业园
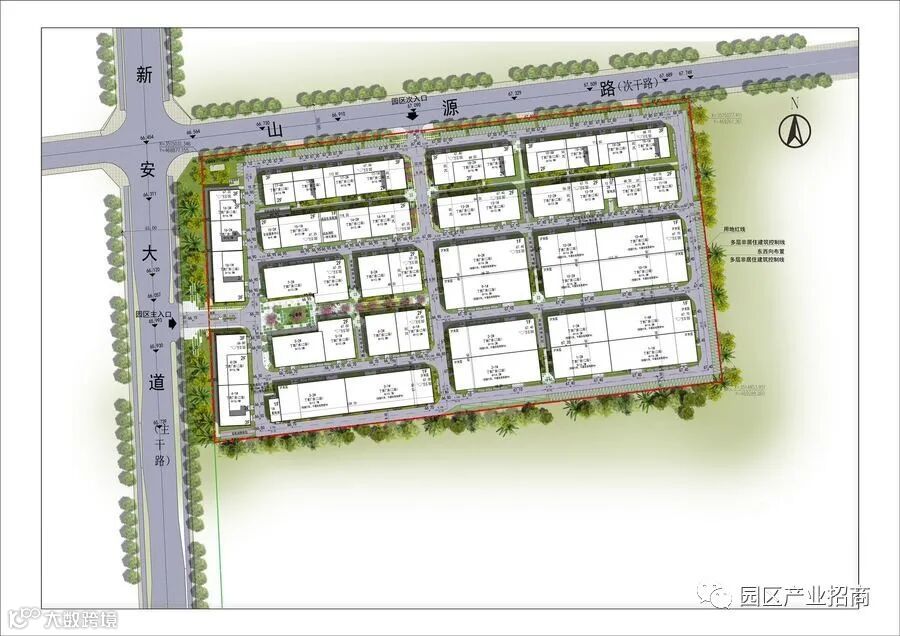
【地址】:六安市金安区新安大道与山源路交口东南角312国道旁
首期占地面积约134亩,总建筑面积约8.3万平米, 5栋轻钢,9栋2层独栋(18套)、5栋2.5层(10套)独栋框架式标准厂房组成、建筑面积集中为800-4800平米,
【面积】:两层每套面积为:1200㎡、1600㎡、2000㎡
两层半每套面积为:1200㎡、1800㎡、2400㎡
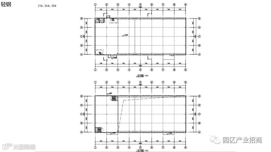
钢结构:1500㎡、2000㎡、2400㎡、4800㎡
【报价】:两层户型3400元/㎡,两层半户型3300元/㎡,钢结构3900元/㎡,以上报价供参考,一房一价,具体以现场洽谈为准。
【层高】:纯一层轻钢高度12-13米,预留牛腿/ 两层独栋层高为7.8/3.9,两层半为7.8/3.9/,首层层高均在7.8米。
【配电】:50KVA/1000㎡(可增容)
【承重】:二楼:500KG。2.5楼:350KG
【转弯半径尺寸】
项目转弯半径为12米,一般17米以下的大货车都能自由出入;
【楼宇之间距离】
10——30米不等,满足建筑规范要求。
【项目消防等级】
外网及配套泵房等设施均设计及安装到位,产品目前全部是丁类厂房,防火标准是丁类二级厂房。
【产品核心介绍】
1200-4800平米产权厂房,生产办公研发一体化
多种面积空间,企业可灵活组合,充分满足多种需求。
轻钢产品24米跨度,独栋产品为8米宽阔柱距
24米、8米宽阔柱距,为高端生产加工企业量身打造。满足不同企业需求。
首层双入口,人货分流
人行主入口端庄大气,彰显仪式感。专属货运入口,为生产物流提供zui大便捷。
【业态】:生产机械加工型企业、以智能制造、新能源、新材料、集成电路、汽车零部件、自动化设备制造为发展方向等优质技术企业
【中南高科招商中心】 接待热线 400-0123-021 或 13391219793
可按企业需求定制厂房

项目定位
项目位于六安市金安区新安大道与山源路交口长江路312国道旁,东邻合肥市区国道直通市区中心60分钟车程,距离高速路收费站约7Km,可快速通达合肥和新桥机场两地。距离六安市区高铁站12分钟。金安区管委会产业新城指挥部约2Km,六安市政府18Km,安徽省政府75Km,合肥市政府60Km,合肥南站67Km。车辆通勤距离38分钟;六安火车站离项目地22公里,车辆通勤距离42分钟。产业:距离项目1KM明天氢能区域内龙头企业,合力叉车 ,北京中航科电;教育:毛坦厂中学,华师大附中;医疗:金安区diyi人民医院;物流:百盛物流、邮政物流。













----END----
扫一扫,加入【产业地产学习交流群】

点击下图查看全国在售厂房项目


