联东U谷 松江科技企业创新港 上海松江北松公路5355弄 研发厂房出售招商 800平起


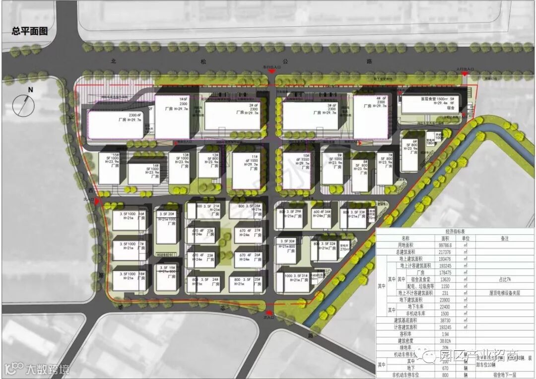
[土地权属]:104地块, 50年产权、产权分割、一户一证
[主力户型]:独栋分层,面积从800-5000平
[项目参数]:首层层高7.2m, 2-3层4.5m, 4层 3.9m (一楼承重2T, 2层承重800kg, 3层承重500kg,4楼承重350kg,配置电梯井2T货梯一部,客梯1部,卷帘门货口4mX4m)
[结构形象]:钢混结构,承载力强;外立面大理石加真石漆、北松公路一线展示面
[园内配置] :容积率1.94,绿化率20%,绿化按400元/m别墅级标准配置
[园区配套]:便利店、 食堂、员工宿舍
[政策导向]: 660科创走廊政策,大张江政策

[交通配套]: G15沈海高速车亭公路收费站3公里;G60沪昆高通新桥收费站5公里;地铁9号线醉白池站7公里,主干道北松公路公交车站
[招商方向]:智能装备、 医疗器械、集成电路、检验检测、生物医药,人工智能等
[业态]:企业总部研发、 生产、办公






扫一扫,加入【产业地产学习交流群】

点击下图查看全国在售厂房项目


