
山团睿谷·湖州南浔产业园 厂房出售 独栋

项目区位、交通:
立体交通路网,长三角经济圈。项目位于长三角腹地,东接苏州市吴江区,南连桐乡市、德清县,西接吴兴区,北濒太湖,区位优势独特,是湖州巿接轨上海的前沿阵地。318国道和湖盐公路贯通全境,京杭运河和长湖申航道穿境而过,距离上海、苏州、杭州等大城市均为100公里左右。区域内,申苏浙皖高速公路、申嘉湖高速公路等路网四通八达,距离上海虹桥机场1.5个小时车程,交通优势明显!


项目产品:项目占地100亩 、建筑面积97089.7方
其中厂房27栋。园区容积率1.74,建筑密度59.98%,绿地率10.01%。
50年,独立产证
产业定位:智能制造(电子信息、医疗器械、节能环保、现代服务业等)综合性园区
产品类型:三层厂房,四层厂房。
配套服务:物业,商业综合体;
园区服务:人才服务、金融服务、财税服务、法务服务、创新服务等
政策支持:地方税政策,人才政策


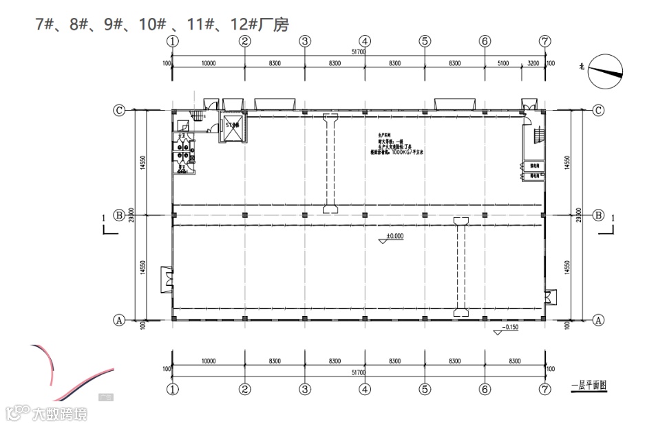
1-a、独栋三层厂房:
整栋总面积:4544.43㎡,占地面积:1514.81㎡。
层高:7.9/7.9/5.4m
承重:1000/800/500kg
货梯井5T,牛腿5T


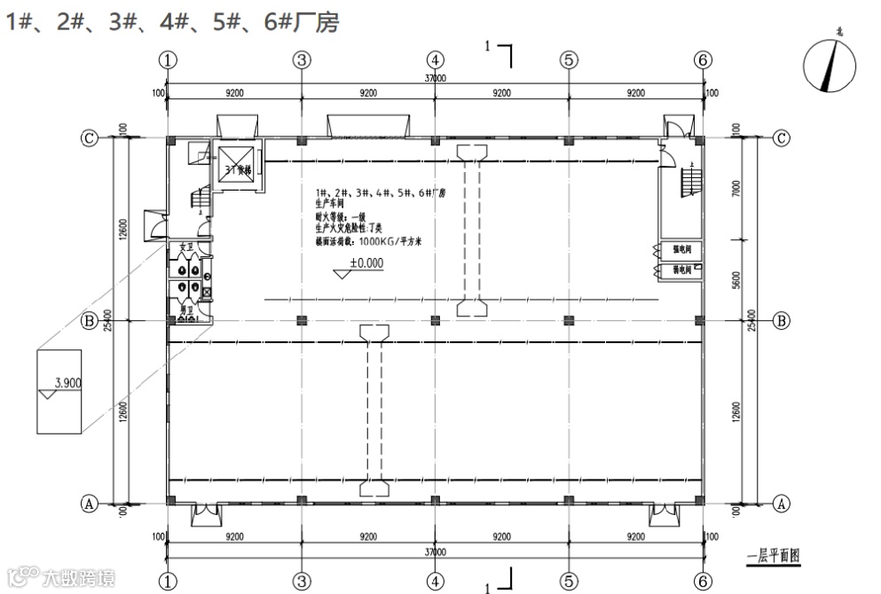
1-b、独栋三层厂房:
整栋总面积:4671.06㎡,占地面积:1557.02㎡。
层高:10.1/7.9/5.4m
承重:1000/1000/500kg
货梯井5T,牛腿10T


2、 独栋四层厂房:
整栋总面积:3759.2㎡,占地面积段为:939.8㎡。
层高:7.9/5.4/5.4/4.8m
承重:1000/800/500/500kg
货梯井3T,牛腿5T


项目位置
地址:浙江省湖州市南浔区湖盐公路24里 -- 南浔山团睿谷精准产业园
湖州南浔厂房出售招商 13391219793
企业选址咨询接洽考察对接
【产业招商学习交流群】扫一扫,自动获取入群二维码



