江门稻兴光合制造中心
湾区智造核心·高端装备制造产业聚集
江门市省级产业转移工业区(蓬江分园)
【项目名称】:江门稻兴光合制造中心
【招商地址】:广东省江门市蓬江区金桐八路与海信交汇处
【项目信息】
【土地性质】:50年产权国土红本,全新二类工业用地
【项目位置】项目位于江门市经济核芯腹地蓬江区,坐落于全省首批重点产业园蓬江区产业工业园内
【项目总占地】约102亩
【容积率】2.65
【建筑面积】约15万㎡
【建筑密度】46.4%
【个性化服务】一期产品现楼发售,无缝对接即买即投产,二期产品随心定制,层高、荷载、基底面积等均可按需打造,贴心满足客户生产所需
【定位】以电子信息、精密机械、5G互联网+、智能终端、生物科技、新材料、智能芯片与新能源、节能环保科技等核心产业,打造创新科技生态圈一体式发展
【项目总规图】

【产品信息】
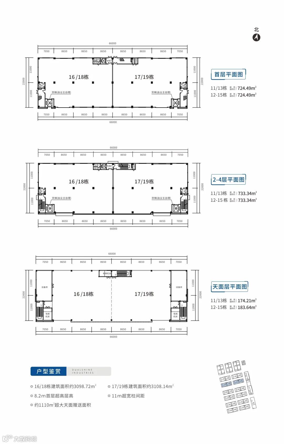
一期标准厂房现房
4.5层独门独户小独栋厂房
【面积】约3100㎡起,可双拼,单层面积约720㎡~1400㎡,柱距8.65*12米
【层高】首层8.2m、2-4层5m、顶层3.6m
【电梯】预留3T有机房货梯井
【承重】首层承重3T/㎡、二层800kg/㎡、其他楼层500kg/㎡
【顶楼】(设有总裁私人办公空间、超600㎡独享空中露台)
5.5层独门独户大独栋厂房
【面积】约6100㎡起,可双拼,单层面积1100㎡~2300㎡,柱距8.5*9.7米
【层高】首层8.2m、2-5层5m、顶层3.6m
【电梯】预留3T有机房货梯井
【承重】首层承重3T/㎡、二楼以上标准楼层600kg/㎡
【顶楼】(设有总裁私人办公空间、超800㎡独享空中露台)
【一期产品户型图及实景图】



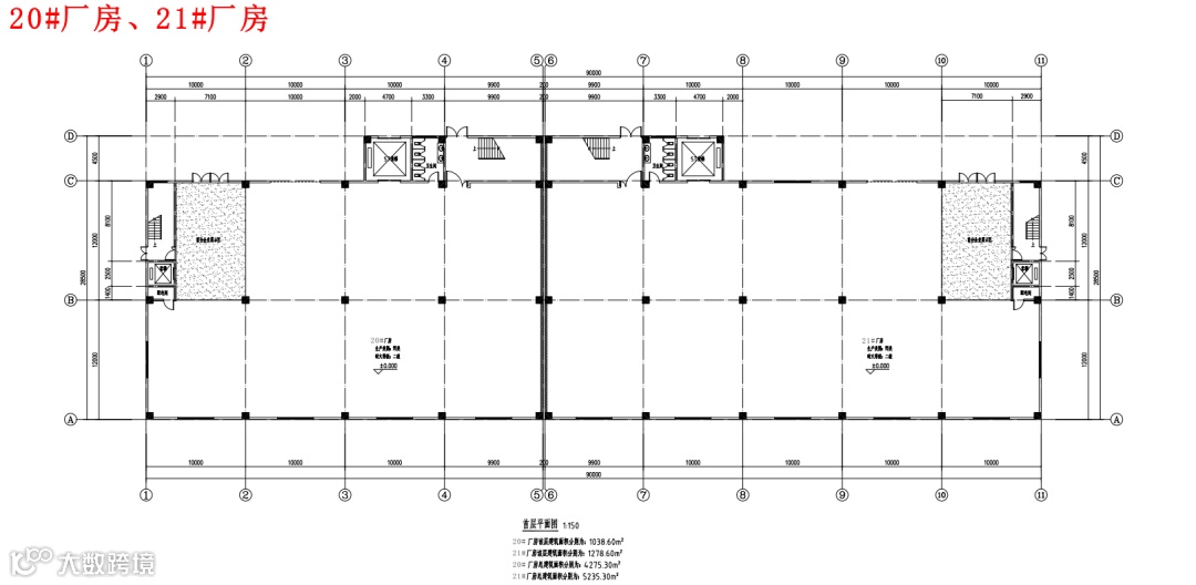
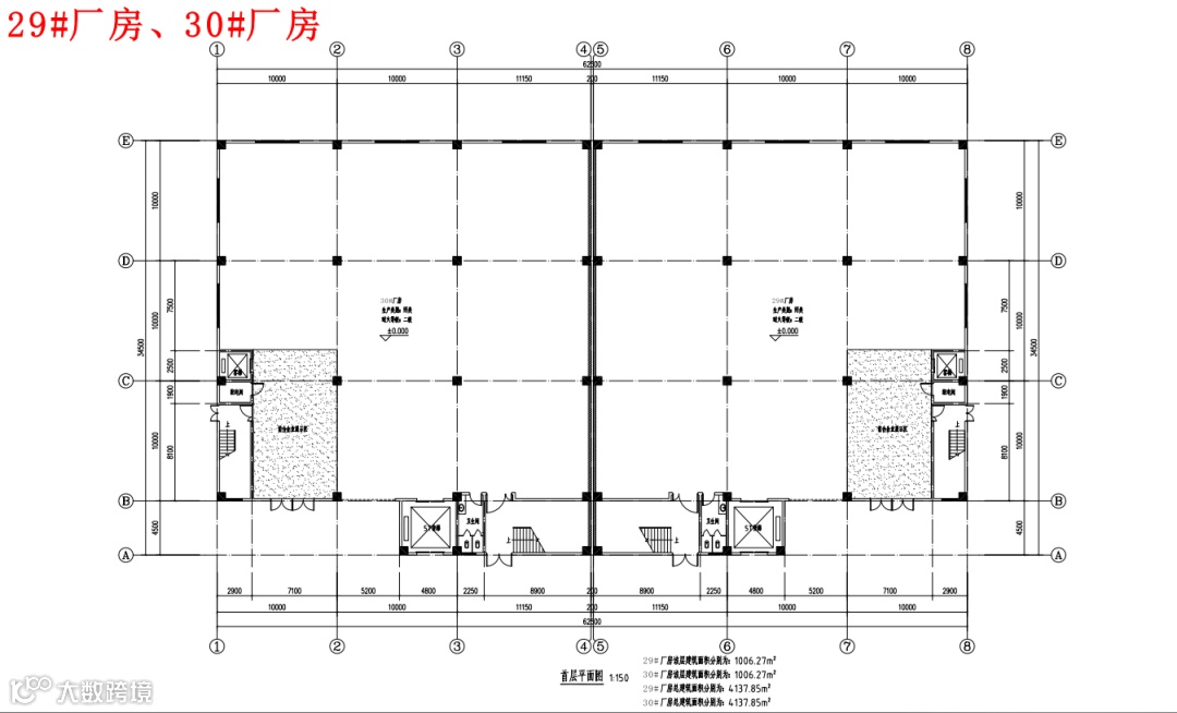
二期定制厂房
4层独门独栋厂房
【面积】约3900㎡-9500㎡,可双拼,单层面积950㎡~2300㎡,柱距12m
【层高】首层8.2m、2-4层5.2m(层高可定制)
【电梯】预留5T有机房货梯井
【承重】首层承重3T/㎡、二楼1T/㎡,三楼以上标准楼层800kg/㎡(承重可定制)
【附赠空间】1000㎡超大型天幕露台
*上述均为标准化产品参数,实际产品可根据客户所需,随心定制
【二期产品户型图】


【区位】
江门--粤港澳大湾区西部门户产业首选地
以交通带动产业 以产业支撑城市
与佛山顺德、南海隔西江相望,毗邻中山、珠海,辐射粤西,交通网完善,距离佛山沙堤机场50公里
园区实现5分钟上高速(广中江高速口、珠三角环线高速口约1.5公里),接驳沈 海高速、深岑高速等,2024年深中通道通车后,到深圳宝安区仅需85分钟;深茂高铁江门站距离约13公里,享受大湾区“1.5小时经济生活圈”

江门市省级产业转移工业区
江门蓬江产业转移工业区,享受升级产业转移园的政策,发展较早,已形成较好基础,企业集聚度高。园区企业超过200家,年总产值超300亿元。其中外资企业60多家,民资企业90多家,其中超亿元的投资企业超过30家。
主要进驻企业
海信家电、海目星激光、金莱特电器、声威电子、大长江集团、万丰摩轮、康师傅食品、华电能源、沛力电机、意玛克户外设备、三七新能源、嘉宝莉化工、中烟摩迪、滨崎食品等.

【区域配套】
幼儿园、中小学、医院、农贸市场、生活超市等分布在园区范围内及棠下镇中心城区,生活配套设施十分完善。
全区拥有4所高等院校,在校学生超过5万人。
全省职业教育最好的地级市,高级职称技术人才1.35万人,位居珠三角第4。
园区距离滨江新区仅十分钟车程。
江门市体育中心位于新城区核心地段,总建设面积39万m2,集体育运动、休闲娱乐、商贸展会、文艺演出于一体的多功能综合性活动中心。
广东珠西国际会展中心可提供30000m2的展览区域,是珠三角西部地区功能最完善、配套最齐全、设施最先进的专业场馆之一。

【园区配套】大数据中心、产研学基地、综合服务中心、商业配套、员工宿舍、国际文化食堂、国际展厅、文娱中心。

【园区特色】
围绕5G+8K+AIOT垂直领域,依托稻兴智能制造及产业营运双重优势,打造科技创投、成果转化、应用推广、人才培训、国际合作、技术攻关六大产业服务平台,助力企业孵化发展。
【园区管理】
以“5G+8K+AIOT”为产业体系搭建智慧园区管理系统,融入社交、移动、大数据和云技术的互联网D+平台,为产业园区带来智慧技术运营服务、科学管理和优质用户体验整合资源,实现生产管理与物业管理一卡通,工业数据实时采集,提高效率,助力产业园高效发展

【生活设施】
配置可容纳约1000人食堂,搭配图书阅读室、健身运动于一体。
员工宿舍:园区设有宿舍配套,以单人间、夫妻间、四人间等,为园区内的企业中高管、产业员工提供“24小时管家服务,打造园区“智慧员工公寓”。


稻兴光合产业园厂房出售招商
400-0123-021 或 13391219793

厂房出售招商对接

关注公众号:园区产业招商

自动加入产业地产交流群



