
众口味华南味谷是由深圳众口味食品集团与南海政府联手打造的国家级现代农业产业园示范园区。是南海区少有取得产权分证的食品厂房,50 年产权,一经选择即可摆脱食品厂搬迁带来的困扰。
土地性质:国有50年不动产权,M1地块,产权分割,一户一证。
项目位置:佛山市南海区九江镇临港国际产业社区。(高起点连片规划)


项目情况:总占地85亩,总建筑面积超18万㎡,整体规划12栋厂房及1栋商住公寓。
产品属性:
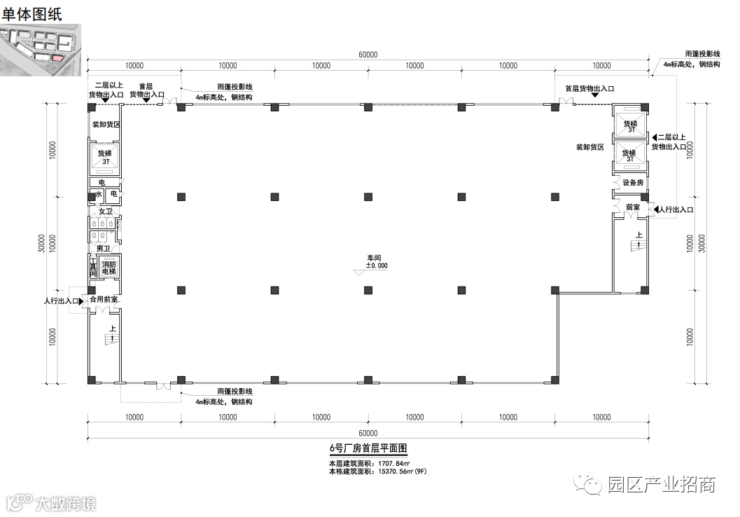
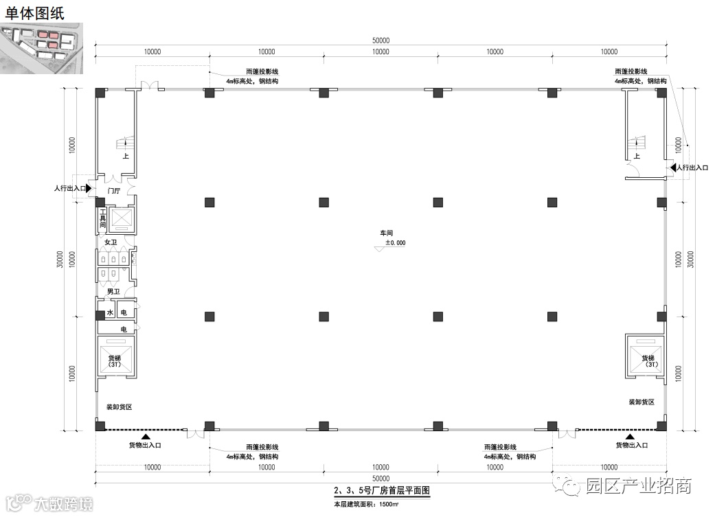
独栋产品:5-7层,首层高7.8米,标准层4.8米。
平层产品:9层高,首层高7.8米,标准层4.8米。
单层面积1000-2400㎡,长度可达100米,单栋最大可达1万㎡。可自由自组合定制
(首层不设承重,标准层每层承重1吨每平方。开发商配送客货梯,客梯承重1吨,货梯3吨)
产品亮点:蒸汽到户、污水处理厂配套,无强制税收要求,园区内高标准餐厅,人才公寓、活动室等设施。两成首付,单价三字头起。
消防环评:消防等级为丙类,园区已过大消防及大环评
园区现针对从事食品生产、供应链、园区服务、投资上下游等食品产业链企业进行招商,未来将此处打造成产业供应链生态平台,实现一站式供应集采。





佛山厂房出售招商 迎来访考察 13391219793
扫一扫,加入【产业招商学习交流群】



