
马鞍山市博望区单层12米钢结构厂房,均价3850元/㎡
马鞍山市科栖产业园
招商中心位置:国家机床产品质检中心对面
考察预约 13391219793

【项目】马鞍山市科栖产业园
【位置】马鞍山市博望区博望镇高新技术开发区松花江路与四联路交叉口
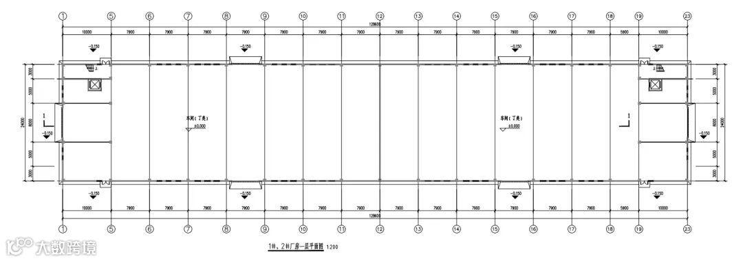
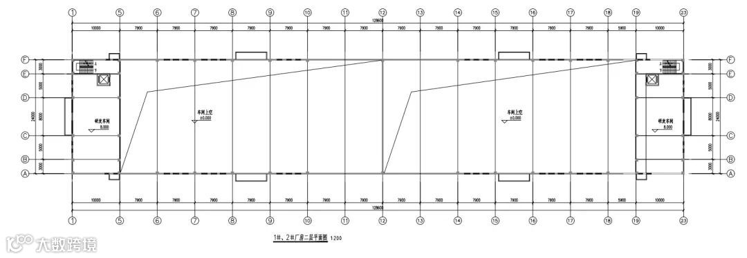
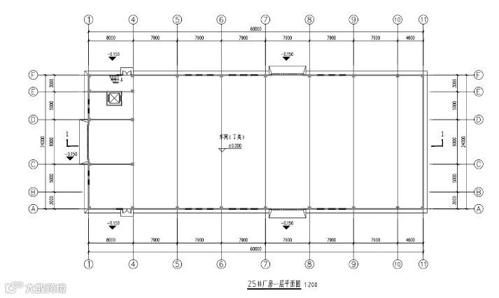
【载体】A.单层火车头厂房,面积1550平、1700平、1800、2067、3100平双拼面积可自由组合,层高12米,可架10T行车,目前小户型的单层厂房非常稀缺,均价3800元/平。
园区路宽12米,大货车都可以通行。
【付款】一次性/分期/按揭,按揭首付30%,贷款年限5-10年。
【消防】丁类
【货梯】火车头办公部分预留电梯井道。
【承重】底层承重2吨/平,2楼承重500kg/平
【交通】距离南京禄口机场20公里,距离当涂东站高铁站30公里,距离沪武高速18公里,距离南京S9号地铁明觉站6公里,距离235国道3.7公里,距离博望汽车站1.5公里。
【业态】新材料,新能源,智能装备制造及加工,仪器仪表,机械配件等。
【配套】项目周边有学校、银行、小区、医院,配套齐全。园区配有食堂、超市等,多元化服务。
【交付】预计2024年初


单层双拼户型图


单层独栋户型图


1、本资料为要约邀请,旨在提供相关信息,不作为要约或承诺。2、交通规划设置、市政配套设置不排除因政府规划、政策规定及出卖人未能控制的原因而发生变化。3、买卖双方的权利与义务以双方签订的《买卖合同》及附件等协议约定为准。本资料发布时间:2023年2月。
马鞍山研发厂房招商中心 13391219793
企业选址咨询接洽考察对接
马鞍山研发厂房招商中心 13391219793
扫一扫,加入【产业招商学习交流群】

阅读更多


