澳湾奎地科技产业园
区位:江门中欧园区·鹤山市鹤城镇中心
面积:1400-30000㎡
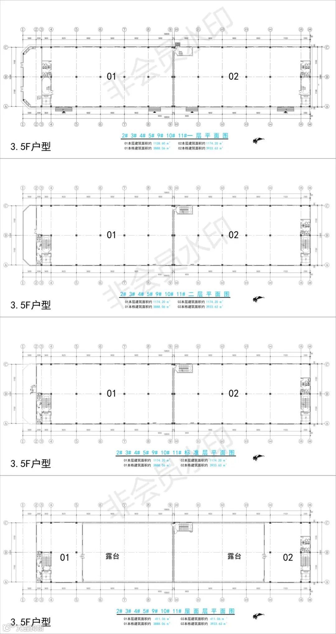
产品:3.5层独栋、4层独栋、6-8层高标厂房
【独特优势】
接受定制·满足企业不同生产经营要求
超高赠送·赠独立前院、天幕露台、专属车位
好用实用·标准层承重800KG 楼上均可生产
厂办分离·真石漆外立面、四面采光、独享冠名权
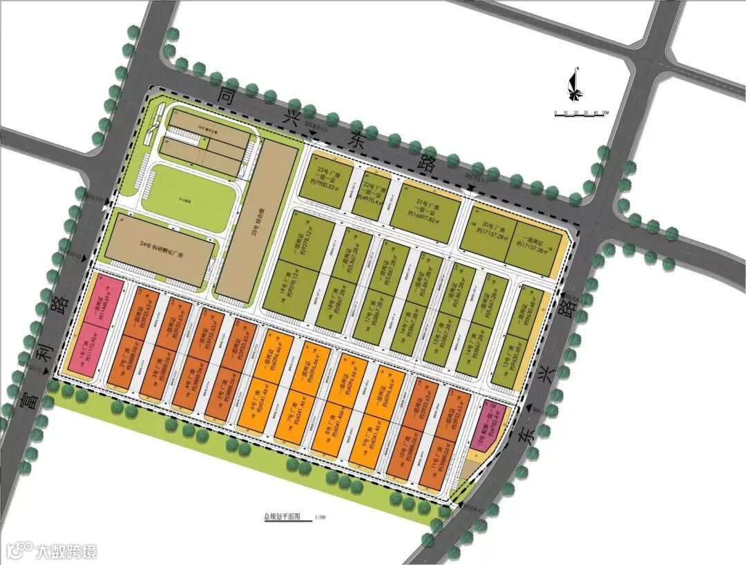
☆项目总占地面积:214亩
☆建筑面积:约40万㎡。
☆土地性质:50年独立产权,M2工业用地,产权可分割。
☆主导产业:高端汽车电子产业链、新材料、人工智能、医疗器械、通用设备、精密电子元器件、计算机、信息通和电子设备等制造业。
☆园区配套:中央食堂、居住、商业、教育、医疗齐全,提供智慧园区信息管理系统,统一物业管理。

【户型图介绍】
3.5层独栋层高:首层7.2m、标准层4.5m、顶层3.6m
荷载首层2吨/m²,2-3层800kg/㎡,顶层600kg/㎡,符合生产型企业荷载要求。

4层独栋层高:首层7.2m、标准层4.5m、顶层3.6m
荷载首层2吨/m²,2-3层800kg/㎡,顶层600kg/㎡,符合生产型企业荷载要求。

8层高标厂房层高:首层7.2m、二楼以上4.5m
荷载首层2吨/m²,2层800kg/㎡,3-8层600kg/㎡,符合生产型企业荷载要求。

厂房可双拼01/02户型售卖。
●厂房亮点
首层双入口设计,物流,人流各行期道,动线不交叉。
货梯、楼梯集中一侧布置,生产区域完整。9米柱距,进深合理,满足采光条件,方便布置桁车生产线,首层单独设计货运入口;人行入口独立设置;物流、人流各行其道,动线互不交叉;

【区位介绍】
◎公路:相邻325国道、270省道,共和高速出口9km即可到达园区;2024年深中通道开通后,1小时通往深圳。
◎铁路:距离全省第四大轨道交通枢纽——珠西综合交通枢纽江门站30公 里;江门北站(鹤山珠西国际物流中心)每天有班列直达盐田港。
o机场:1.5小时通往广州、佛山、中山、珠海、东莞、深圳等大湾区主要城市及各主要机场。
◎码头:45公里范围内有新会港、江门高新港、高沙港等3个货运码头,拥有3000吨级泊位,基本每天都有驳船往盐田港、南沙港等重要港口。
建筑立面效果图:


产品风格


1、本资料为要约邀请,旨在提供相关信息,不作为要约或承诺。2、交通规划设置、市政配套设置不排除因政府规划、政策规定及出卖人未能控制的原因而发生变化。3、买卖双方的权利与义务以双方签订的《买卖合同》及附件等协议约定为准。本资料发布时间:2023年2月。

江门厂房项目招商中心 400-0123-021, 13391219793
企业选址咨询接洽考察对接
江门厂房项目招商中心 400-0123-021, 13391219793
扫一扫,加入【产业招商学习交流群】



