项目位置:东莞市塘厦镇横塘社区满元街7号
占地面积:94亩(6.3万平米)
建筑面积:22万平米
用地性质:M1类工业用地
产权年限:50年
销售形式:红本出售
工程进度:一期1-2号厂房现楼,配套公寓现楼,二期定制中
开发主体:东莞市盺旺实业有限公司(中南高科集团入股)
停车位:400个左右

区位及配套
区位:项目位于东莞市塘厦镇,属临深新一代电子信息产业基地,紧临深圳市龙华区和龙岗区,拥有得天独厚的地理优势,素有深莞融合第一站之称。

交通
高铁:10分钟可达东莞南站,1站深圳北,2站光明城。
高速:5分钟可上从莞深/外环,20分钟到观澜,30分钟到龙岗,40分钟到光明
公路:紧挨东深公路,10分钟可通行临深3镇街。

配套
医疗:15分钟到广东医科大学附属医院(三甲)
教育:15分钟内涵盖全龄段教育配套
娱乐:3公里可享受银利高尔夫俱乐部
宿舍:项目自带1100套LOFT公寓
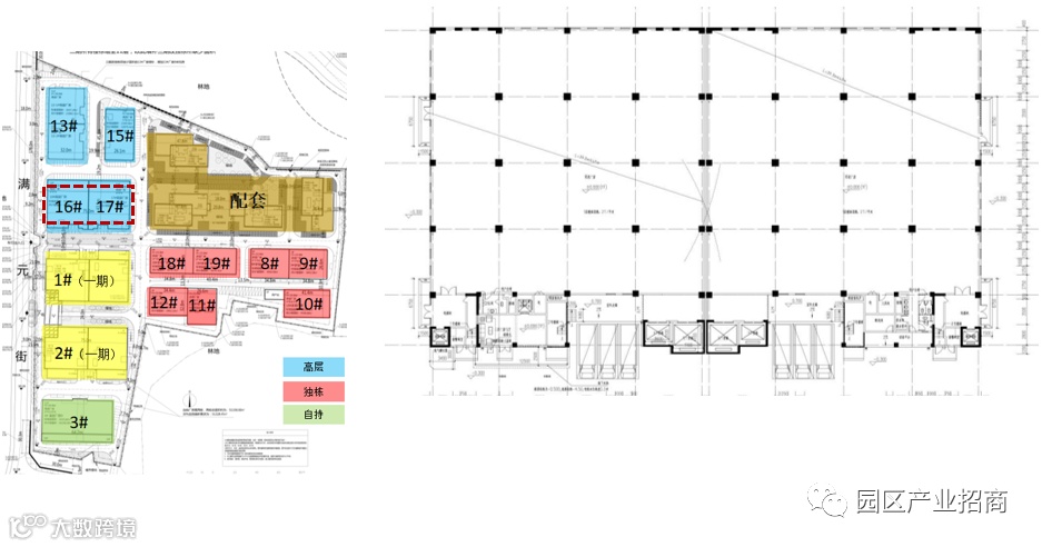
项目共规划14栋工业厂房,4栋配套公寓

独栋厂房
独栋厂房面积:3680-4107m2
楼层:整栋4层
承重:1F为3T/m2(实心地),2F-3F为800KG/m2,4F及天面为500KG/m2
层高:1F为7.2M,2F-4F为5M
柱间距:8.6m*8.6m

标准厂房产品
标准厂房面积:1170m2-2425m2
楼层:11层
承重:1F为3T/m2,2F--3F为1.2T/m2,4F-6F为1T/m2,7F-9F为0.85T/m2,10F-11F为0.5T/m2
层高:1F为7.2m,2F-3F为6m,4F-6F为5.4m,7F-11F为4.5m
柱间距:8m*8m
电梯:货用3T-5T各2台,客梯2台

产品价格及管理费
标准厂房价格:均价7700元每平。
标准厂房1楼价格:14000左右每平
双拼/独栋厂房价格:11000元左右每平
管理费:3元





东莞厂房项目招商中心 400-0123-021, 13391219793
企业选址咨询接洽考察对接
东莞厂房项目招商中心 400-0123-021, 13391219793
扫一扫,加入【产业招商学习交流群】



