
一、项目信息
【位置】安徽省合肥市肥东县漫泉路与龙池路交口东南角
【品牌】京东集团
【占地面积】占地面积150亩
【建面】总建筑面积约10.68万㎡
【产品信息】700平米起
【产品特色】按需匹配,面积灵活,适合各行各业。
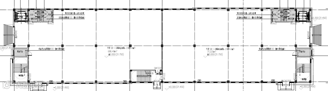
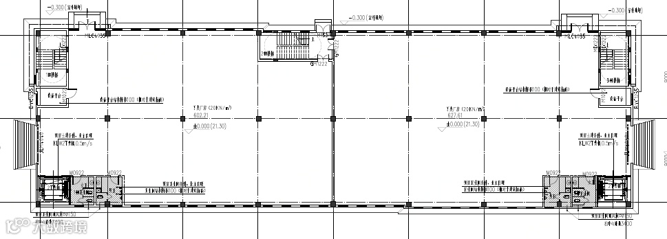
单层产品:层高12m,建筑面积1500㎡-7000㎡.

二层产品:一层层高8.1m,二层层高4.2m,二层荷载450KG/㎡,单层建筑面积约500㎡-1600㎡,楼栋建筑面积约1000㎡-3200㎡(共2层)

三层产品:一层层高7.2m,二层层高4.2m,三层层高3.9m,二层荷载450KG/㎡,三层荷载250KG/㎡,单层建筑面积约400㎡-1400㎡,楼栋建筑面积约1200㎡-4200㎡(共3层)

五层产品:一层层高6.8m,二三层层高4.2m,四五层层高4.0m,二三四层荷载450KG/㎡,五层荷载250KG/㎡,单层建筑面积约700㎡,楼栋建筑面积约3500㎡(共5层)
【项目效果图】





二、项目价值
【区位】
长三角一体化发展、“一带一路”节点城市、国家综合枢纽城市,G60科学走廊节点城市、合肥都市圈、安徽自贸区启动建设等一系列正常机遇叠加,为肥东发展带来无限机遇。

【交通】
公路干道——毗邻104省道,距离G312国道1200米,距离合肥主干道繁华大道仅100米,20分钟车程即可通达合肥;
高速公路——距离合肥绕城高速仅6公里;
高铁火车——距肥东高铁站10公里;距合肥南站23公里;
地铁/轻轨——距离地铁2号线东延线(规划)“撮镇”站5公里;
汽车客运——项目周边多路公交通达周边;
机场航空——距离合肥新桥国际机场约60公里。

京东集团
京东集团定位于“以供应链为基础的技术与服务企业
目前业务已涉及零售、科技、物流、健康、保险、产发和海外等领域
作为同时具备实体企业基因和属性、拥有数字技术和能力的新型实体企业,
京东在各项实体业务上全面推进,并以扎实、创新的新型实体企业发展经验助力实体经济高质量发展,筑就持续增长力。
京东集团奉行客户为先、诚信、协作、感恩、拼搏、担当的价值观,
以“技术为本,致力于更高效和可持续的世界”为使命,目标是成为全球最值得信赖的企业。
厂房出租出售 土地招商
考察热线 4000123021 或 13391219793

厂房出售招商对接
产业地产专业自媒体【园区产业招商】
超过21000园区招商人关注了我们!
强烈推荐您关注

关注公众号:园区产业招商

自动加入产业地产交流群


