【中南高科·秦汉智康云谷基地】

‼项目概况
项目由中国500强中南集团旗下中南高科开发建设,项目首期开发140亩,总建面约12万㎡;项目重点发展先进装备制造、健康科技、电子信息等无污染优质产业,打造产业升级产城融合示范区。

‼主推产品:
2F独栋框架|建筑面积约1200-2100㎡
3F独栋框架|建筑面积约1200-1800㎡
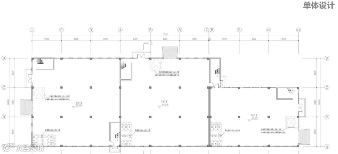
首层8.1米超高层高,可架设行车,超高使用率
8米/9米柱距,布局灵活,便于企业空间规划



‼交通优势
项目距咸阳国际机场3km;
距咸阳北站5.5km;
距北客站17km;
距西安主城区19km

品牌优势:
千亿中南,中国500强,33载钜献,大品牌有保障,50年独立产权
区位优势:
项目地处秦汉新城核心位置,坐拥便捷的公路、铁路和航空枢纽交通网
产品优势:
产品设计多样,规划2F/3F花园独栋厂房及5F分层厂房,多元户型
配套优势:
周边奥特莱斯、绿地等商业住宅等配套齐全, 区域宝能等优质企业集聚,产业氛围浓厚
平台优势:
为入园企业提供全生命周期产业服务,为企业发展保驾护航

项目地址:
西咸新区秦汉新城周成路与天工三路东北角


中南高科厂房出售 13391219793
企业选址咨询接洽考察对接
扫一扫,加入【产业招商学习交流群】



