

第一工园·无锡羊尖锡东创星港(二期)
【概况】项目总规划255亩,总建筑面积超32万方,分三期开发交付。一期55亩已进入招商尾声,23年12月交付。
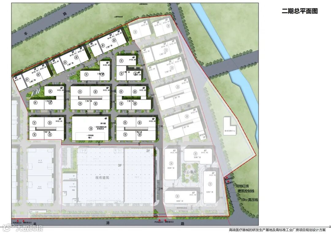
二期80余亩,四层整栋产品为主,三层半结构户型为辅。分两批次建设,一批次7-13号楼,预计24年12月底交付;二批次15-18号楼,25年6月交付。
【价格】均价5300元/㎡
【面积段】
四层整栋:单层610㎡ 合计2440㎡
单层801㎡ 合计3208㎡
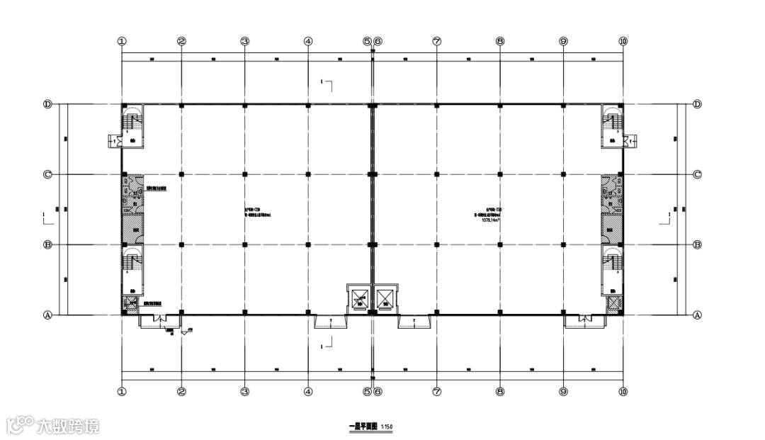
三层半整栋:单层1078㎡ 合计3781㎡
【土地性质】国有土地,年限至2056年10月
【层高】1F-8.1m,2F-5.4m,3F 4F-4.5m
【承重】1F-2吨 2F-1吨 3F-0.8吨 4F-0.5吨
【税收及办证】350元/平方,一年达标即办证
【跨度柱距】10m*9m(跨度10m)
【消防等级】丁类
园区效果图:

四层户型

三层半户型

停车餐饮配套楼
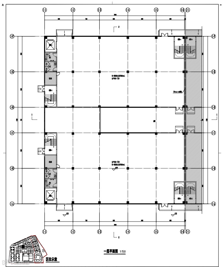
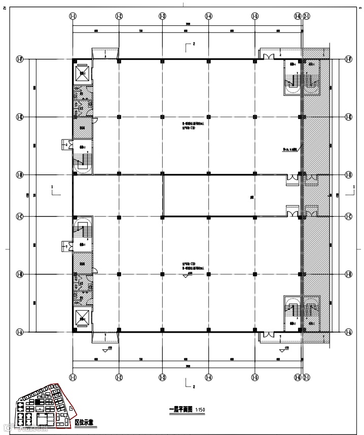
四层产品平面图:

2440㎡(两户)

3781㎡(两户)

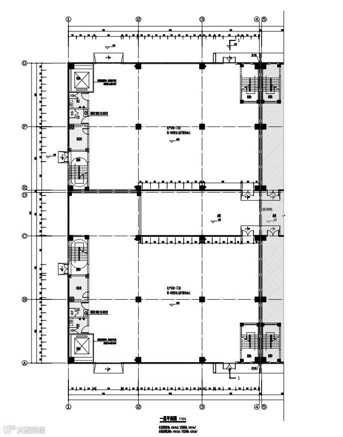
三层半产品平面图:3781㎡(两户)

【亮点设计】40%通窗比 一楼仓储办公空间



四层户型连接处,一楼有80-120㎡的凸出空间
设计初衷是满足政府要求载体感官比较大
可以做原材料的仓储,一楼车间办公等
【付款方式】按揭付款,首付30%;分批付款,按企业需求适当灵活支付
【园内配套】员工餐厅、独立停车楼
【招商对象】精密机械及成套设备、智能制造、新能源、新材料等产业
【地址】无锡市锡山区羊尖镇羊港路95号(胶阳路与羊港路交叉口)
【交通】
1、位于锡山锡东新城东部板块,对接长三角一体化战略的东大门,临近苏州相城区半小时车程
2、距离通锡高速羊尖出口5分钟,快速通达上海、苏州、南京等周边城市
3、锡沪路、锡虞路主干道横贯东西,可快速抵达无锡市区
4、距离无锡东高铁站15分钟车程,融入上海半小时经济圈,南京一小时经济圈
5、距离苏南硕放机场20分钟车程,通往北京、广州、深圳、成都、重庆等全国主要城市。
全国80城 200余个产业业园 厂房招商出售
考察热线 4000123021 或 13391219793

厂房出售招商对接
产业地产专业自媒体【园区产业招商】
超过21000园区招商人关注了我们!
强烈推荐您关注

关注公众号:园区产业招商

自动加入产业地产交流群
【承接产业园项目宣传推广】


