

【云启食品园区】马鞍山食品园区、食品园区,食品园区
总体量270亩,一期食品用地90亩,二期180亩
【 配套】环评消防,污水处理,天然气,冷链,保税区,港口。
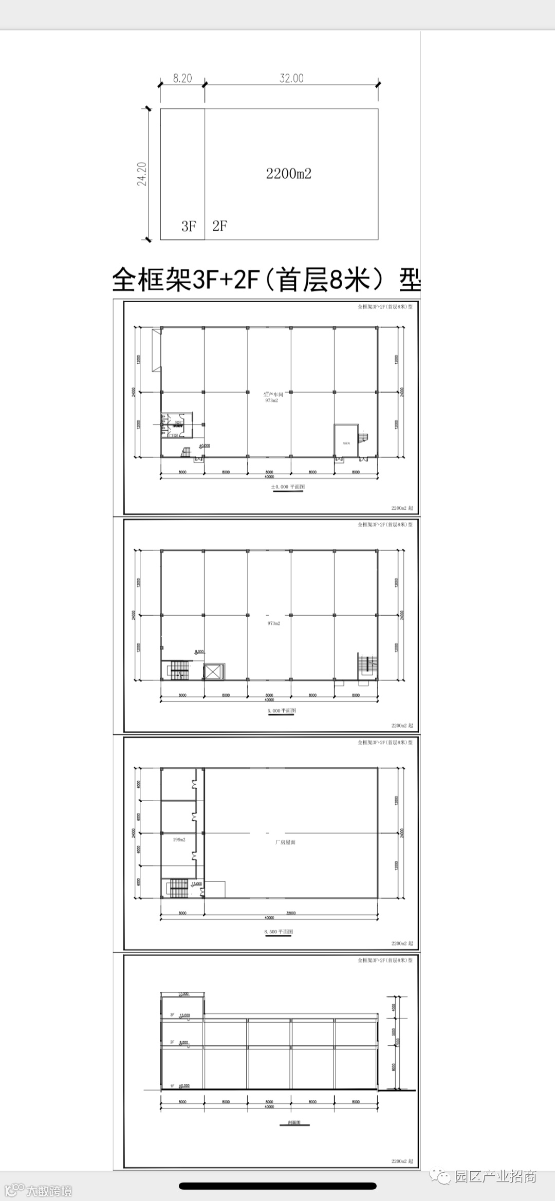
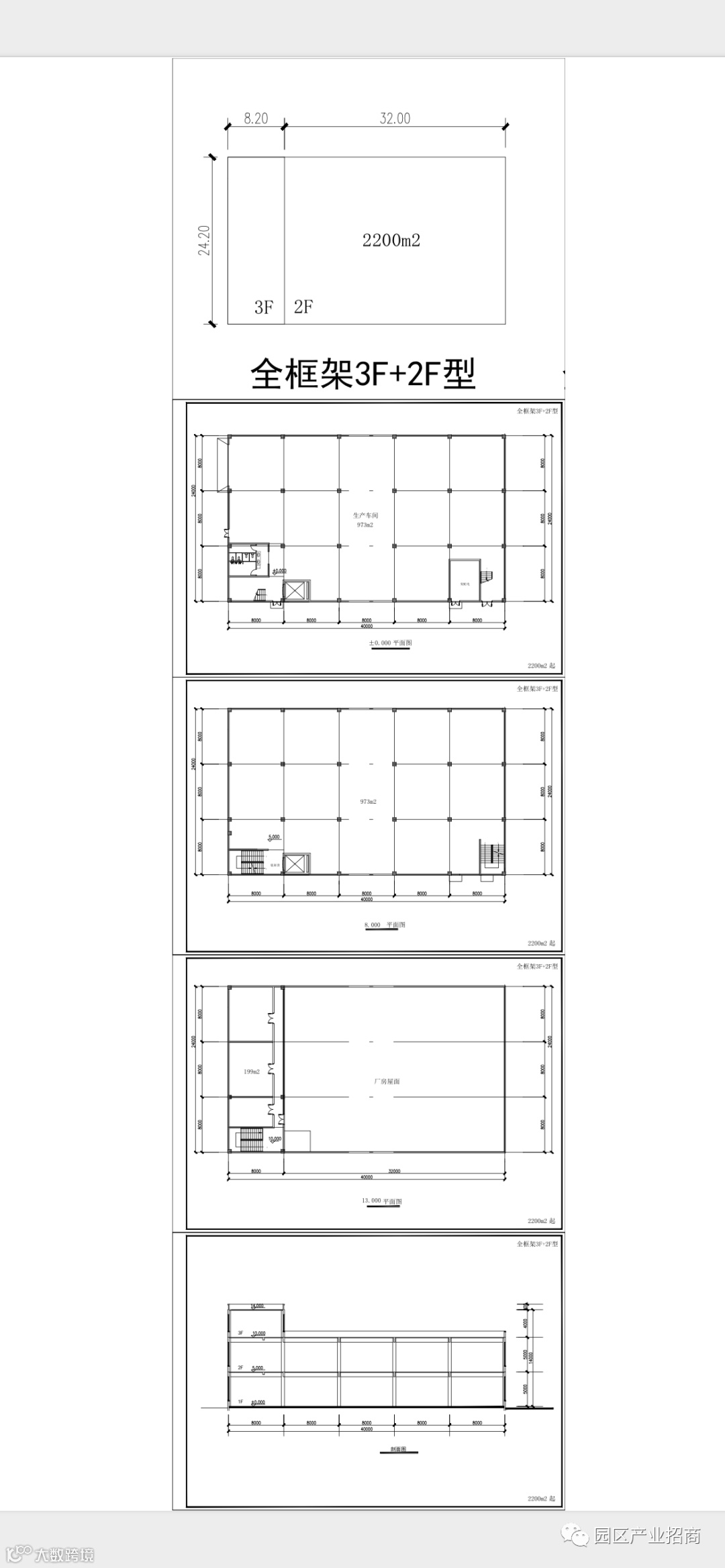
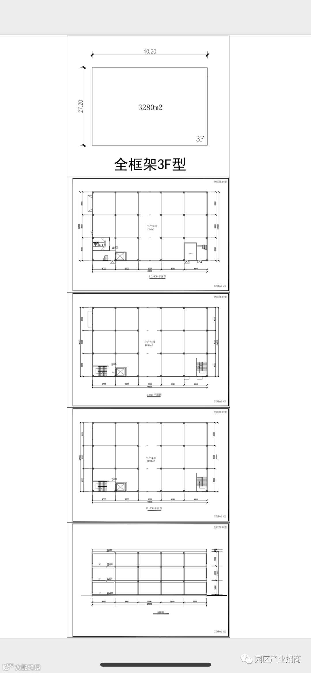
【产品】A全框架3F+2F(首层8米);B全框架3F+2F(首层5米);C全框架3F(首层5米);可定制
【面积】2170m²~7180m²
【价格】
【行业】专项食品生产加工仓储






周边配套食品企业,北冰洋,罗森,小润发配送中心
专项食品产业园出售 50年产权 可分割 ,可办食品SC
位于马鞍山郑蒲港新区现代产业园内,临近港口,沪武高速口,离马鞍山市区一桥之隔;
首付3成!政企合作,品质保障!
A全框架3F+2F(首层8m二楼5m三楼4m)
B全框架3F+2F(首层5m二楼5m三楼4m)
C全框架3F(首层5m二楼5m三楼5m)
【具体位置】安徽省郑蒲港新区郑蒲大道南侧三郑路北侧(北冰洋、罗森西侧)
【区位优越 交通便捷】地处南京、合肥、芜湖几何中心,马鞍山长江西岸,是安徽对接长三角的东部门户,承接长三角产业转移的桥头堡。境内公、铁、水、空联运一体,承东启西、纵贯南北。
【高速公路 四通八达】沪武高速、天天高速贯穿,实现半小时到南京市区、1.5 小时到合肥、3小时到杭州、3.5小时到上海。
【高速铁路 迎接四方】距南京南站 40 公里、距合肥南站 100 公里,街接中欧班列的郑蒲港铁路已通车,合巢马城际高铁、位于郑蒲港新区的马鞍山西站正在加速建设中。
【内河运输 通达江海】郑蒲港是长江第三个也是最后一个深水港。水路交通形成了以长江干线合裕线等国家高等级航道为骨架,可达沿江省市、长三角及沿海地区的水运航线。
【航空便利 沟通世界】距南京禄口国际机场 40 公里,距芜湖宣州机场 90 公里,距合肥新桥国际机场 120 公里。







欢迎来访考察

点击下图查看全国在售厂房项目
产业地产专业自媒体【园区产业招商】
超过21000园区招商人关注了我们!
强烈推荐您关注

关注公众号:园区产业招商

自动加入产业地产交流群
【承接产业园项目宣传推广】


