
【万马·禹越融杭智造产业园】杭州临平北2公里独立产权高品质厂房,灵活组织约1000~20000平方,首层层高:7.8m,首付两成按揭,地铁口公变配电精装修
万马·禹越融杭智造产业园
杭州临平北两公里稀缺厂房
配套全,可分割
长三角核心区位省级工业园区
适合企业总部、办公研发、生产制造
配套人才公寓、连锁商业模式齐全
50年独立产权,自营物业,专业到位
产业集聚 资本赋能
万马(禹越)融杭智造产业园项目以“工业自动化”为产业定位,在改造老旧园区的基础上重点引进符合国家战略发展的装备制造、电子信息产业以及高自动化率的智能制造企业。致力于打造集生产制造、研发设计、企业总部、产品展示功能于一体的城市工业新场所和产城融合新标杆。
【项目区位】

万马(禹越)融杭智造产业园坐落于湖州市德清县禹越镇振兴路9号,毗邻杭州市临平区,距杭州地铁9号线终点站(余杭高铁站)15公里、龙安站5公里,30分钟通达杭州,地理区位优越。
禹越镇地处三市三县(湖州德清、嘉兴桐乡、杭州临平)交界处,素有杭嘉湖平原的“金三角”之称,距杭州市区30公里,距上海150公里,是德清县接沪融杭的桥头堡,享陆运、航运、水运、高铁、地铁
高铁:
距德清高铁站20公里;
距离杭州东站25公里
距杭州高铁站31公里;
高速:
距练杭高速、杭州二绕高速入口约5公里;
距申嘉湖高速入口约10公里;
地铁:
距杭州地铁9号线龙安站3公里;
机场:
距杭州萧山机场约45公里;
距上海浦东机场约180公里;
距南京禄口机场约230公里;
运河:
紧邻京杭大运河、杭湖锡线航道。便捷交通。
【项目规划指标】

【项目规划】24栋多层厂房、4栋高层厂房
【占地面积】总占地约260亩,一期约90亩
【建筑面积】规划总建面积约17万平方,建筑占地32225平方
【车 位】地面46个,屋面停车499个
【层 高】5层产品:首层7.8米,标准层4米,顶楼3.9米
7层产品:首层6米,标准层4.2米,顶楼4.2米
11层产品:首层6米,标准层4.2米。顶楼4.2米
【电 梯】每栋两台3T货梯,1T无机房客体上屋面,每栋1台
【产权年限】50年
【交付时间】2023年12月(预计)
【交付标准】现代化外墙涂料,沿街高层厂房部分使用铝型材装饰材料,里面毛坯(具体按照交付标准)
【消防等级】五层产品丁类;高层产品丙类
【区域配套】
禹越:禹越镇自古以来就是浙北地区的工业强镇、商贸重镇和文化名镇,经济繁荣,配套全面
产业:300余家各类工业企业,61家规上企业,16家产值过亿企业
生活:7个休闲农庄、3个文化公园、7个大型房地产项目
教育:1所中学、2所中心小学、2所幼儿园,7000㎡文体中心
文旅:南部临平山,东部新市古镇,中部下渚湖湿地公园,西部莫干山
【智慧园区】

一平台六系统 助力园区高质量发展
智能制造平台 丨 引智交流平台丨 智慧安全平台 丨 金融助力平台丨 政务服务平台丨 生活配套平台
产业数字化
服务大脑 丨 运营大脑 丨 招商大脑
【开发商背景】

万马集团成立于1989年,是中国民营500强、中国制造业500强企业。集团总部位于浙江杭州。历经30余载悉心沉淀,万马集团形成了坚固稳定的实业版图。业务覆盖电气电缆、新材料、新能源、医疗器械、通信电子、产业投资等多个领域,旗下两家上市公司,分子公司百余家,年度营收破百亿,税金超十亿,现有员工6000余人。
万马股份(002276)为中小板上市企业,业务覆盖新智造、新材料、新能源三大板块,是近年来同行业电力通信板块中发展最快的上市公司之一;
万马科技(300698)为创业板上市公司,业务覆盖通信电子、智慧医疗等,是国内最大的通信电子、通讯物理连接设备生产厂商之一。另有行业领军企业无锡会通轻质材料股份有限公司,专业从事高性能聚合物发泡研发、生产、销售,是一家由万马孵化的国家级高新技术企业,拥有新加坡技术研发中心,全国多个研发基地。企业曾荣获上海市科学技术一等奖等多项殊荣,同时也是中国EPP国家标准的起草者。
【开发案例】
2018年,万马因电气机械制造生产线新设需要,首次于湖州尝试工业园区的开发运营。凭借自身产业与实业经验,聚焦高端装备制造,吸引上下游产业,成功打造了万马(湖州)智造园,并以突出的园区数字化建设,被评为浙江省数字化4A小微企业园、浙江省四星园区。而后万马继续深耕长三角,并布局珠三角。

目前开发运营有万马青山湖创新园、万马(湖州)智造产业园、中节能·万马(湖州)智谷产业园、万马(南太湖)智造产业园、万马(德清)智造产业园、万马(宁波)医械智造产业园、万马(佛山)智造产业园、万马(禹越)智造产业园、万马(淮海)智造产业园10余个园区,运营面积共计260余万平方米。
【户型优势】
灵动空间满足企业多层次发展需求

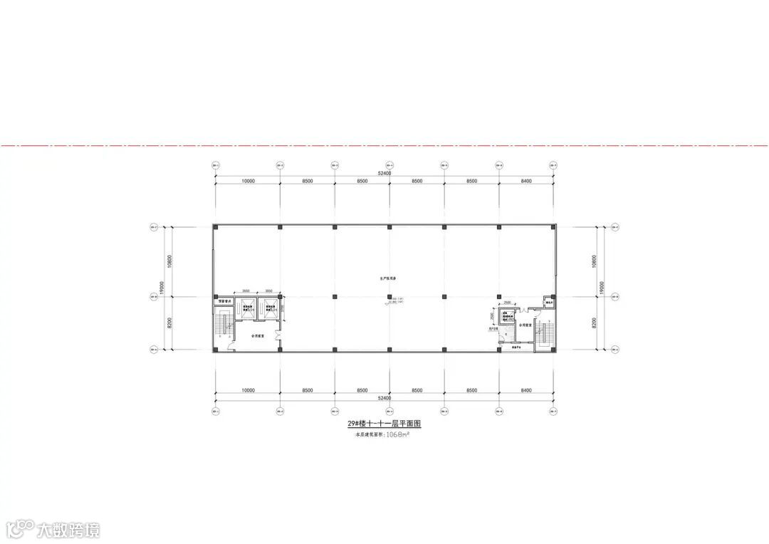
▲十一层创新型电商基地
建筑总面积:约1068㎡
柱距:8m*10m 8m*8m
预留桁车装配:5T
地面荷载:一楼不超过2T/㎡,二楼不超过800Kg/㎡,三楼以上不超过500Kg/㎡
首层层高:6m 二楼及以上层高:4.2m


▲五层高标准生产型厂房
建筑总面积:约1158㎡
柱距:8m*9m 8m*10m
预留桁车装配:5T
地面荷载:一楼不超过2T/㎡,二楼不超过800Kg/㎡,三楼以上不超过500Kg/㎡
首层层高:7.8m 二楼及以上层高:4.2m


法律申明:本方案设备布置由设计公司设计提供,图中户型结构、格局、功能区域等进行适当优化和提升,供购置者参考。
项目地址:浙江省湖州市德清县禹越镇
杭州德清厂房出售招商 13391219793
企业选址咨询接洽考察对接
产业招商专业自媒体【园区产业招商】
超过22000园区招商人关注了我们!
关注后可加入【产业地产行业群】快速搭建同行渠道


