
浙江·杭州·桐庐·望庐智慧谷园区 (可租可售)
小面积,低总价,现房出售,无税收,产业要求

【招商基础参数】
1. 占地面积:总占地133亩,一期占地56亩
2. 建筑面积:56000㎡
3. 厂房形态/数量:双拼四层厂房剩余7栋
双拼三层厂房剩余1栋
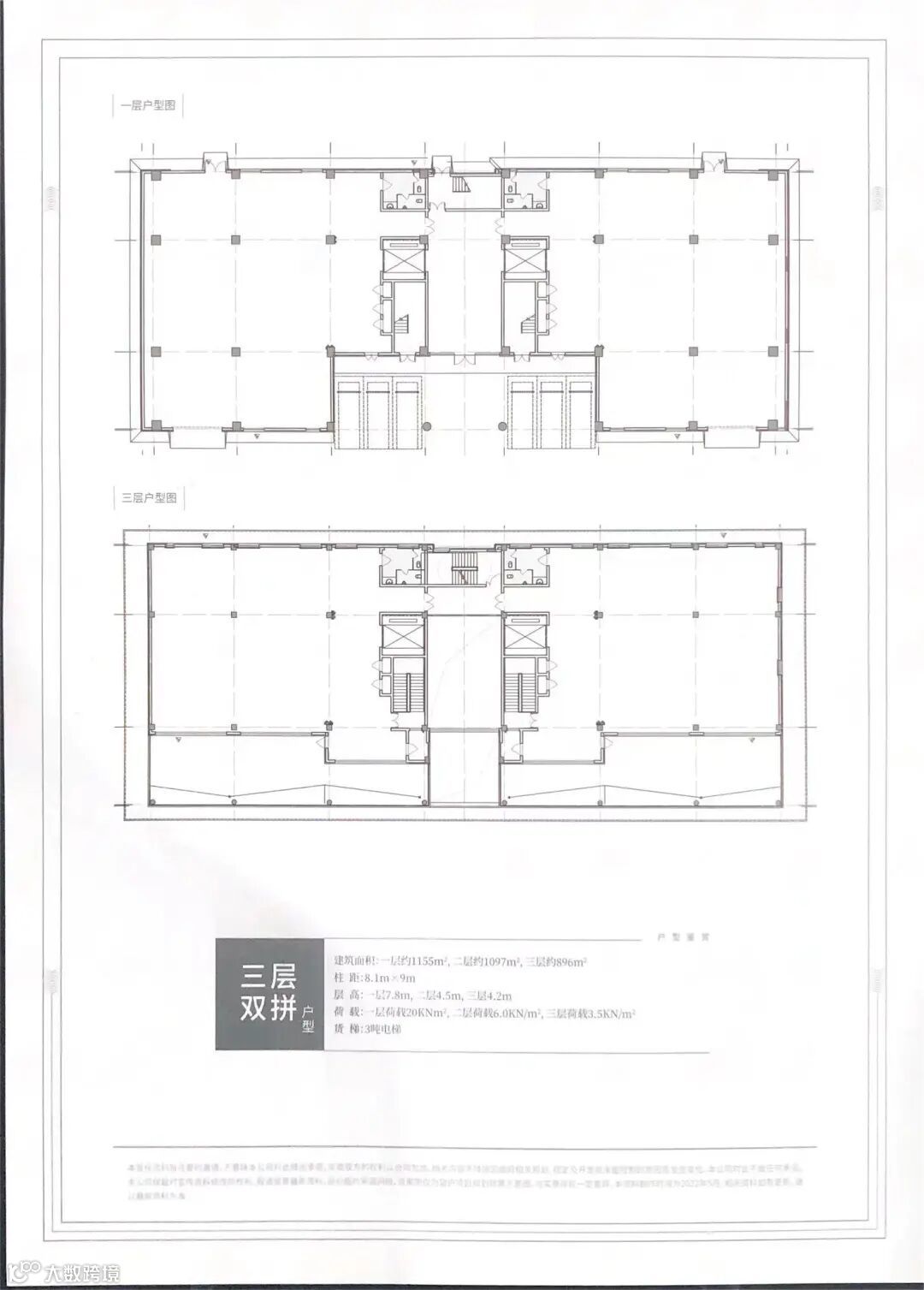
4. 可售面积段:1500㎡ - 4000㎡
5. 层高及承重:
一楼层高7.8m,承重2000kg;
二楼层高5.8m/4.5m,承重800kg/600kg;
三楼层高4.5m/4.2m,承重500kg/350kg;
四楼层高4.2m,承重350kg;
6. 项目进度:实体现房,即买即交付;
7. 税收要求:基本无要求;
8. 项目单价:4000元/㎡;
9. 物业费:2.0元/㎡/月(含能耗);
10.项目位置:杭州市桐庐县春江东路与马家路交汇处;


【产品内部实景图】


【户型图】


来访考察对接:

全国厂房土地招商
考察对接请加微信


产业招商专业自媒体【园区产业招商】
超过25149园区招商人关注了我们!

↑ 关注公众号:园区产业招商

↑ 加入行业交流群(如群满,请关注公众号后加入)
提供产业园招商代理服务
专业有效的产业园载体招商平台,以高效专业著称。现向全国产业园区提供专业招商运营代理服务。利用我们强大招商团队和数字化平台招商,确保高质量、快速完成招商。【重点承接上海、苏州、无锡、嘉兴、杭州、宁波等区域产业园区项目】


