
扬州科技创新未来园
一、项目介绍
项目名称:坤鼎扬州科技创新未来园
项目地址:扬州市邗江区秋实路环卫综合体北200米

总占地:65.39亩
总建筑面积:66140.76㎡
土地性质:工业50年国土
园区鸟瞰图:
二、户型介绍

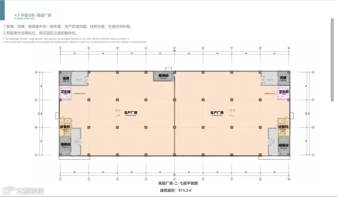
平面分析-高层厂房:

2、3层产品户型
建筑面积:1100-6000平方米
层高:8.1米 /4.5米/3.9米
承重:2T/500KG/500KG
三、区位交通
高速公路:G2京沪高速收费站3公里,G40沪陕高速收费站10公里
公共交通:公交212、213、217、288等多条线路
国际机场:扬泰机场37公里

四、产房效果图



标准厂房招商
考察热线 13391219793
说明需求后即刻安排项目现场同事接待

招商对接
产业招商专业自媒体【园区产业招商】
超过22000园区招商人关注了我们!

关注公众号:园区产业招商

自动加入产业地产交流群

