【西安裕桥智造基地】

招商地址:西安高新区锦业时代B2栋26层
【项目亮点】
2.5层专属企业独栋 赠送花园露台
首层8米层高 可进行自由分割 扩容空间大
8米超大柱距 可实现生产线灵活布局 提高空间利用率
消防通道共享,首层空间可灵活扩展
面积316—7995㎡起 火热招商中
|标准厂房|企业独栋|总部办公|
【鸟瞰图】
【项目概况】
项目位于高新区.集贤园.集财大道1号,园区规划占地约285亩,总建面约28万㎡,容积率1.45。首期开发3.1万方,规划二层半框架厂房4栋,三层框架厂房14栋,创意厂房2栋,1栋三层产业配套楼,丰富的产品类型、完善的产业配套,一站式满足企业生产、研发、办公等多元需求。
项目将助力高新集贤园产业升级转型模式,打造以信息技术、智能制造、高端装备为主导产业的技型综合示范园区。
项目地址:高新区.集贤园.集财大道1号

效果图





【区位优势】
项目位于高新区集贤园内,集贤产业园是西安高新区重点产业板块之一,规划总用地面积60.28平方公里,承接高新区先进制造和城市功能外溢,是高新区“一核两翼“西南翼智能制造的主阵地。

项目周边区域交通通达。西汉高速,鄠周眉高速(2024年通车)、西户铁路(2024年通车)连接各交通枢纽,距离铁路货运站21KM,距鄠邑货运机场25KM、距高新区管委会55km。其中项目距鄠周眉高速(2024年通车)集贤互通立交2KM,距楼观台互通立交1KM;
此外,项目直线距比亚迪新能源与汽车产业园2公里,生产运输、仓储物流商务会务、方便快捷。

【品牌优势】
裕桥实业专注于科技园区规划建设,深耕产业投20余年,业务涉及载体运营、配套服务和投资孵三大业务版块。参与建设并运营了广州天河软件园、河科技园、天河智慧城等标杆项目,致力于『全产业链闭环』服务,2O余年孵化投资37了家上市企业,如UC、拉卡拉、三七互娱等。

【项目产权】
国有工业用地,50年独立产权
【产品推荐】
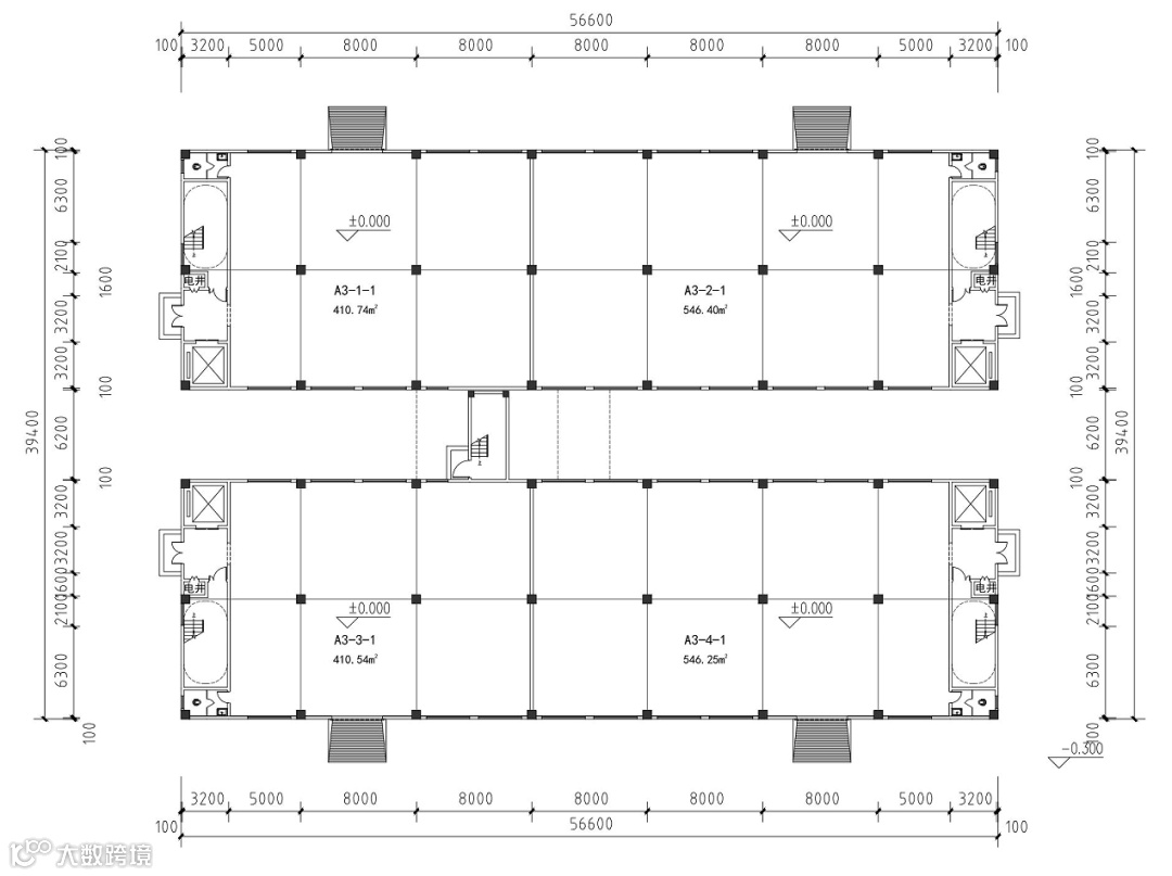
☞户型一:
2.5F框架结构标准厂房(带露台),在售面积约1617-3760㎡
首层层高8m,二层层高4.5 m,首层承重1.5T/㎡,二/三层承重500kg/㎡。

一层平面图
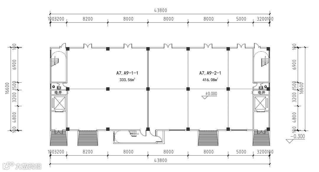
☞户型二:
3F框架结构标准厂房,面积约1500-3600㎡
首层层高8m,二层/三层层高4.5m,首层承重1.5T/㎡,二/三层承重500kg/㎡

一层平面图
☞户型三:
3F框架结构标准厂房,面积约1228-5730㎡
首层层高8m,二层/三层层高4.5m,首层承重1.5T/㎡,二/三层承重500kg/㎡

一层平面图
☞户型四:
临街厂房,面积约1004—2489㎡
首层层高8m,二层/三层层高4.5米,首层承重1.5T/㎡,二/三层承重500kg/㎡。

一层平面图
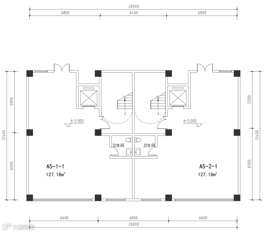
☞户型五:
创意厂房,面积约316—633㎡
首层层高3.8m,二层/三层层高3.6米,可做办公、研发、会所等。

一层平面图
来访考察对接:

全国厂房土地招商
考察对接请加微信


产业招商专业自媒体【园区产业招商】
超过25149园区招商人关注了我们!

↑ 关注公众号:园区产业招商

↑ 加入行业交流群(如群满,请关注公众号后加入)
提供产业园招商代理服务
专业有效的产业园载体招商平台,以高效专业著称。现向全国产业园区提供专业招商运营代理服务。利用我们强大招商团队和数字化平台招商,确保高质量、快速完成招商。【重点承接上海、苏州、无锡、嘉兴、杭州、宁波等区域产业园区项目】


