中南高科·智汇谷
中南高科·智汇谷位于惠城区高新科技产业园三栋中心园,项目占地约88亩,总建筑面积约16万㎡,产品涵盖5F独栋厂房、11F高层厂房以及9F宿舍配套。
项目聚焦生命健康(生物医药、医疗器械、生物材料)、智能制造、新一代信息技术产业链。项目预计落成后可招商引资约40家新兴技术企业,引进或培育不少于15家国家级高新企业及20家规模以上企业,打造粤港澳大湾区新兴产业的高标准创新园区。

【01品牌介绍】
中南集团起步于上世纪八十年代,至今已走过了三十多个春秋。初期的中南以建筑施工为主,依靠走南闯北承揽建筑工程发展壮大,时至今日,中南集团整合旗下优势资源,聚力发展,下有中南建设(SZ000961)于2019年形成了4+1布局;业务布局——中南置地、中南建筑、中南高科、中南实业投资和中南教育,员工逾10万人,足迹遍及国内外的大型集团化上市企业,2020年总资产超3200亿元。

中南高科是中国领先的以服务先进制造业为核心的产业园区开发及运营商,提供集产业研究策划、园区开发、产业资源导入及产业园综合运营服务于一体的综合服务。2021年底,已进驻全国近 70 座城市,布局近 200 座产业园区(含已签署投资协议项)。

中南高科产业服务集团(简称产服集团)成立于2018年,作为中南高科彰显软实力的战略板块,始终以“中国制造业的超级服务平台”为愿景,致力于成为“专精特新”产业服务领域的领航者。产服集团以产业大 数据为基底,以科技创新服务为中心,以园区运营、企业创新服务、产业资源整合、轻资产运营为四大核心业务板块,专注赋能新兴企业,助力区域产业升级及经济高质量发展。

【02项目基本情况】
项目名称:中南高科·智汇谷
项目地址:惠州市惠城区高新科技园三栋镇数码园南路以北
开发主体:惠州市锦时投资有限公司(中南高科控股公司)
占地面积:58412㎡
建筑面积:146030㎡
容积率:2.5
绿化覆盖率:18.5%
土地性质:M1工业用地,50年独立产权,产权分割,一户一证
交房时间:2024年11月
交房标准:毛坯交付
户型面积:约1037㎡-6088㎡
道路宽度:6米-8米-10米
产业定位:生命健康(生物医药、医疗器械、生物材料)、智能制造、新一代信息技术产业链产业园。
【03项目效果图鉴赏】



【04项目区位】临深产业转移首选地
粤港澳大湾区战略规划确立了惠州 “大湾区东部门户城市定位”。在深莞惠区域加速协同发展下,给惠州带来扩大开放、极力创新等效应。惠州正加快成为珠江东岸新增长极、粤港澳大湾区高质量发展重要地区和国内一流城市的步伐!


项目毗邻深圳市,承接深圳东扩、产业转移优势,全面推动惠州进入湾区核心城市。全新机遇起航,与时代同频,铸就湾区新城!

惠城高新科技产业园,是惠城区大力发展产业主要平台之一,园区按照“一核心四组团”发展模式布局,重点发展电子信息和装备制造两大主导产业,培育大数据和人工智能核心产业,提升生产性服务业,构建“1+2+1”产业体系。2019年被认定为“广东省大数据综合试验区及”及“广东省人工智能产业园区”。

【05项目交通】一小时畅游深莞惠
随着“丰”字交通发展战略推进,区域内两城轨 一高铁 一机场 多高速,一小时畅游深莞惠,出行畅无忧!(莞惠/深惠城际、广汕高铁、平潭机场、惠大高速/潮莞高速/甬莞高速等)

高速高铁城轨机场 多维交通网
距三栋收费站约1KM 3分钟车程
距数码园收费站约2KM 5分钟车程
距惠城南站(建设中)3KM 6分钟车程
距平潭机场约20KM 30分钟车程

一小时畅游深莞惠
距惠州市区约10KM 15分钟车程
距深圳约50KM 50分钟车程
距东莞市约90KM 70分钟车程
距广州约120KM 90分钟车程

【07周边产业环境】产业联盟 优秀的企业聚在一起
惠城高新园与仲恺惠南园产业基础雄厚,入驻了4家智能制造上市公司.
惠城区高新园三栋中心园规划面积14.9平方公里,2020年规上工业产值61亿,社会零售业规模18亿,总企业数达120家。
仲恺惠南高新科技园规划面积6.63平方公里,共引进生产型工业项目400多个,以互联网移动通信、平板显示、智能装备制造三大产业为主导,获得“国家级科技企业孵化器等荣誉称号。

【08完善配套】一刻即享 醇熟配套
园区内:食堂、宿舍、招商服务中心等
教育:日新小学,启基小学,永湖中心小学,惠州市演达中学等30所中小学校(5公里范围内)
娱乐:金山湖公园、文化体育公园、玉庐汇-墅家度假庄园(5星)等
医疗: (仲恺高新区人民医院惠南分院)、惠州区永湖医院、惠州演达医院等
购物:天虹百货、慧龙商城、天和购物广场、佳惠购物商场、华昌购物广场、龙湖商业城等
项目3公里范围内各种配套一应俱全

【09户型展示】
户型展示-5层独栋
独栋基底面积1040㎡,整栋5195㎡
一楼层高6.9m、标准层4.2m、顶楼3.9m
一楼承重3T/㎡、标准层800Kg/㎡、顶楼500Kg/㎡
电梯:3T货梯;1T客梯;2-5层设置吊装口;

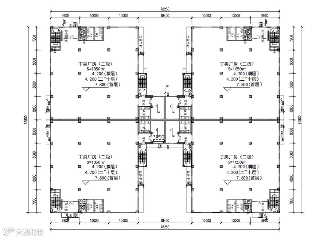
户型展示-H型11层高层厂房
1-11层1048-1051㎡
一楼层高7.8m、标准层4.2m、顶层4.2m
一楼承重2T/㎡、标准层800Kg/㎡、顶楼800Kg/㎡
电梯:5T货梯;1T客梯;2-5层设置吊装口;


中南高科·惠州产业园 研发厂房出售 13391219793

厂房出售招商对接

关注公众号:园区产业招商

自动加入产业地产交流群



