【中江科技●淮安智车城】
项目总规划200亩,建筑面积约12万平方米,一期占地100亩,总建面约5.2万平方米,产业定位方向:汽车零部件、汽车电子及汽车服务业等产业集聚地,智能制造、高端装备创新研发基地
【项目位置】淮安市淮阴区(高新区)长江东路与飞耀路交汇处

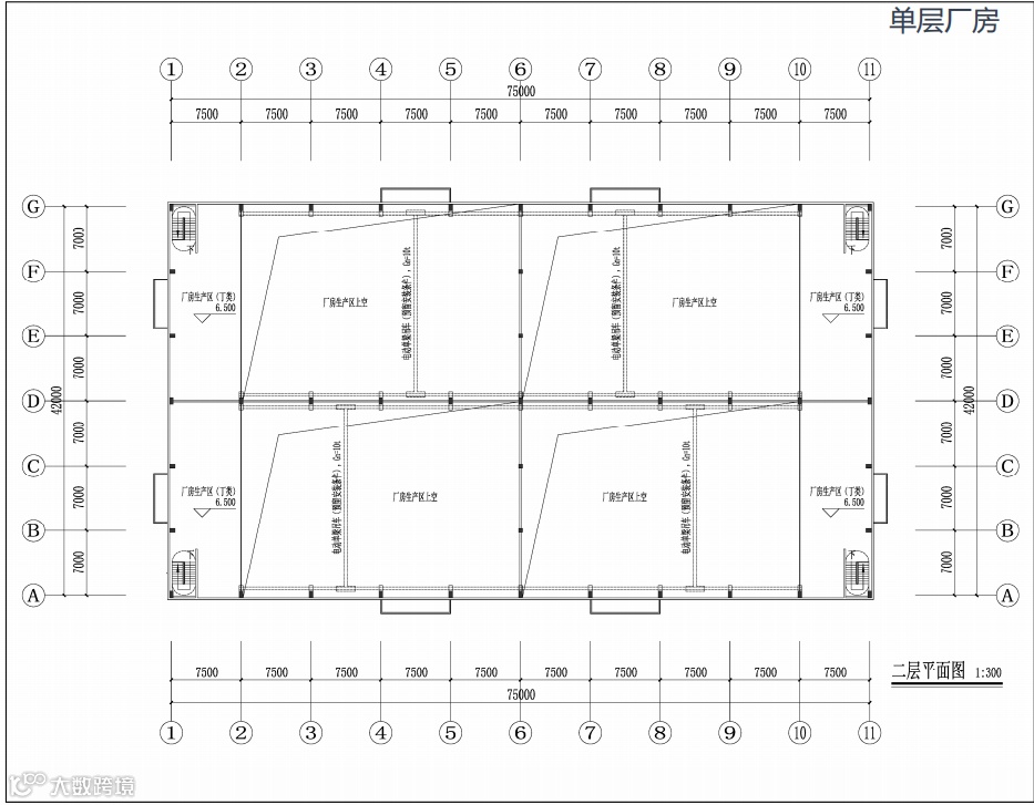
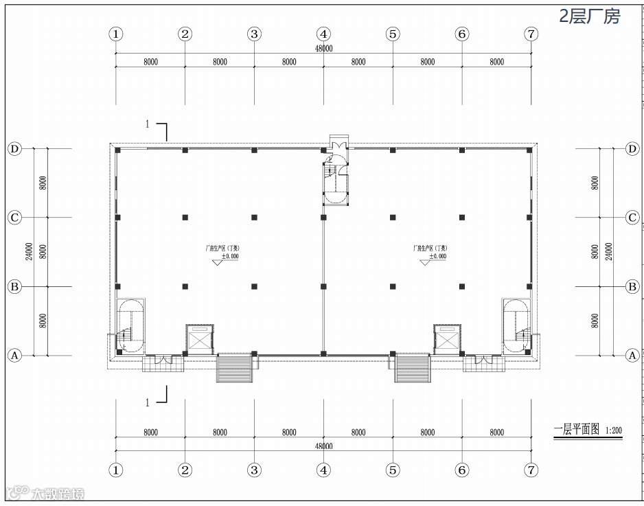
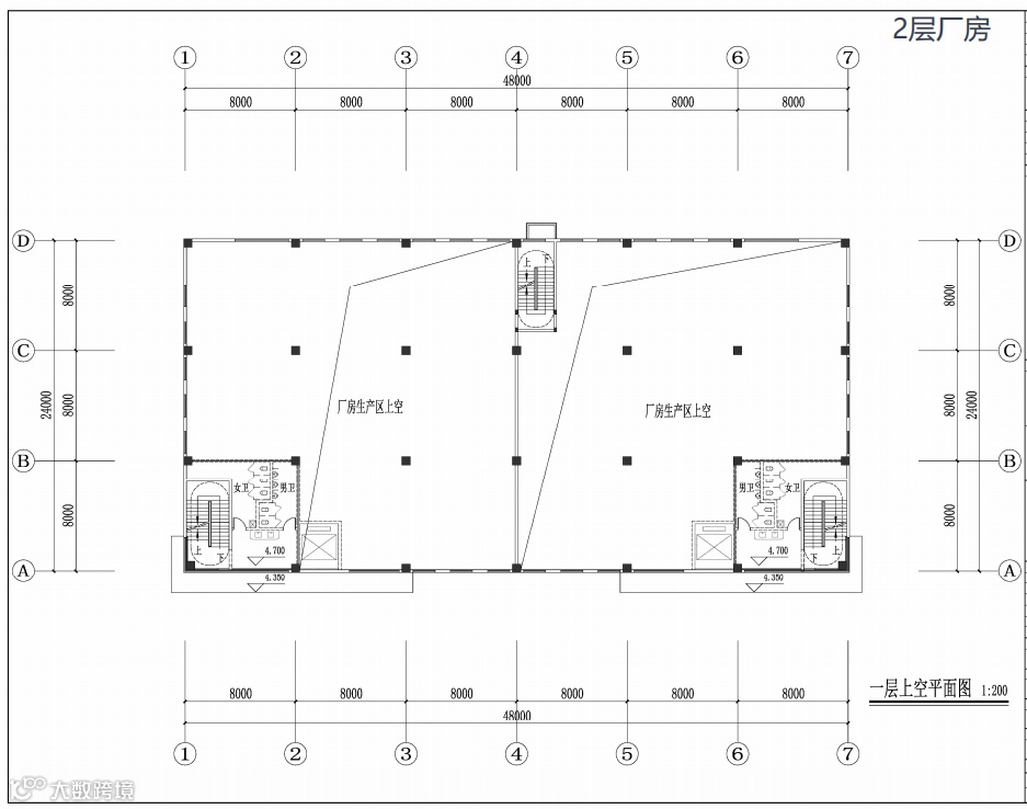
【产品类型】单层厂房、二层厂房
【面积区间】1000㎡-5000㎡(可定制)
【厂房层高】单层厂房:11.8米(檐口10米);二层厂房:首层8.1米、二层4.2米
【按揭】首付10%起,按揭比例70%-80%,10年
【价格】具体价格根据产品结构、房源位置及面积区间一房一议
【承重荷载】首层3T、预留10T行车牛腿
【消防等级】丁类预留丙类
【交通优势】距淮安互通高速口9公里,距淮安高铁站11公里,距淮安火车站7公里、距涟水国际机场24公里
【产权】国有工业用地,产权分割到户
【政策】优质企业享受政府税收返还政策,具体一企一议
【项目效果图】




【项目户型图】
单层厂房:


二层厂房:


厂房出租出售 土地招商
考察热线 4000123021 或 13391219793

厂房出售招商对接
产业地产专业自媒体【园区产业招商】
超过21000园区招商人关注了我们!
强烈推荐您关注

关注公众号:园区产业招商

自动加入产业地产交流群


