【中南高科●淮安创新智造基地】
中南高科淮安创新智造基地项目总规划200亩,建筑面积约20万平方米,产业定位方向:智能装备制造、医疗器械、新能源、新材料、人工智能、电子信息、精密机械制造、新型显示、应用电子以及云计算产业等。项目分期开发,一期占地100亩,建筑面积约9万方。
【项目位置】淮安市经济技术开发区宁连公路与枚皋路交界处)


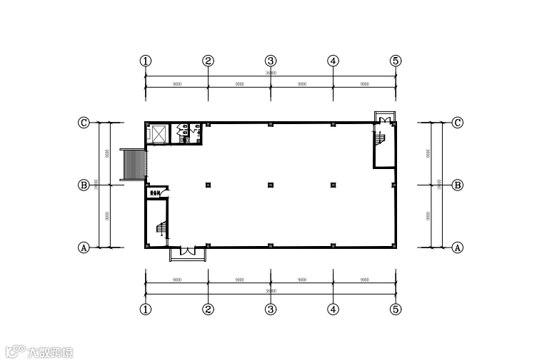
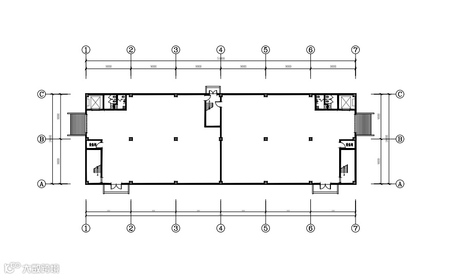
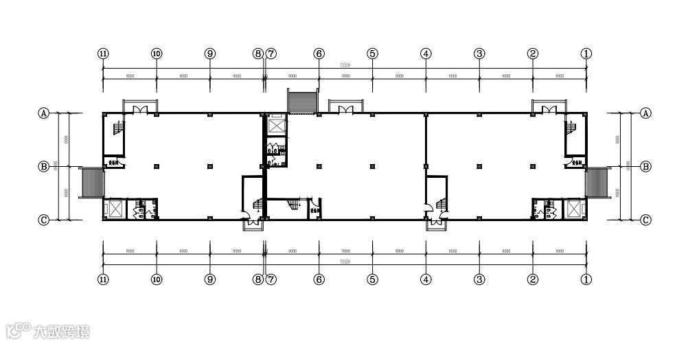
【产品类型】二层框架厂房、二层半框架厂房、三层研发办公楼、五层框架分层厂房、
【面积区间】1200㎡-5000㎡(可定制)
【厂房层高】框架首层8.1m、二层4.2m、三层3.9m(可定制)
【按揭】首付10%起,按揭比例70%-80%,10年
【厂房售价】均价3000元/㎡-3600元/㎡,具体价格根据产品结构、房源位置及面积区间一房一议
【承重荷载】首层2T、标准层0.45T(可定制)
【消防等级】丁类预留丙类
【基础配套】商务酒店、便利超市、特色餐厅、咖啡吧、茶吧、运动场、食堂、班车、多功能会议厅、产业服务中心等配套设施。
【交通优势】距淮安南高速出口7公里,距淮安高铁站12公里,距淮安南站4公里、距涟水国际机场29公里
【产权】国有工业用地,产权分割到户
【政策】优质企业享受政府税收返还政策,具体一企一议
【项目效果图】



【项目户型图】




中南高科淮安厂房出售招商 13391219793
企业选址咨询接洽考察对接
【产业招商学习交流群】扫一扫,自动获取入群二维码



