
项目名称:洪泉智能智造科创园
地址:江苏省扬州市江都区浦江东路168号
地铁距离:附近有地铁站,具体距离需进一步查询
相关参数:
- 租金:12元/㎡/月
- 配套:成熟,交通便捷,低容积率,高性价比,食堂
- 园区面积:61895㎡
- 招商产业:新一代信息技术产业、高端装备制造产业、生物产业、节能环保产业

物业费:
- 水价:4.5元/吨
- 天然气:3.45元/立方米
- 物业费:1.5元/㎡/月
- 工业用电:按峰平谷计算

基本设施:
- 供电
- 供水
- 消防

园区介绍:
- 开发商:扬州洪泉实业有限公司
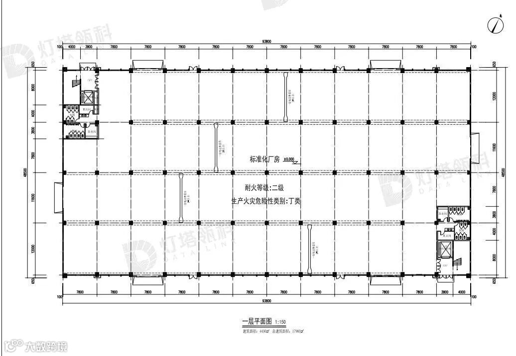
- 产品类型:标准4层厂房
- 建筑形式:分层(4层)
- 规格属性:框架结构,7级抗震等级,三级耐火等级,丁类消防等级
- 招商中心地址:扬州市江都区浦江东路168号

户型介绍:
- 2-5号楼
- 建筑面积:4450㎡
- 层高:首层7.9米,2-3层5米,4层4.9米
- 层数:4
园区简介:
- 项目位于扬州市江都区,总建面13.8万㎡,代理租赁面积10万㎡,属于4F框架现房项目。
- 项目距宁海线2公里,距区政府5公里,距江都东高速收费口1公里/3分钟。
- 重点引进新能源、汽车、高端装备制造、电子信息等优质企业,形成高端产业集群,打造都市型产业集聚地。
标准厂房招商出售
欢迎来访考察 400-0123-021
让入园企业领先同行5年

产业招商专业自媒体【园区产业招商】
超过23200园区招商人关注了我们!

↑ 关注公众号:园区产业招商

↑ 加入行业交流群
【中南高科招商品牌:灯塔瓴科】
是全国领先的招商运营平台,成功运营86城市、近200产业园区,以高效专业著称。项目去化最快1个月,正常1-2年。将成熟招商经验向全国产业园区开放,提供专业招商运营代理服务。整合项目进入我们的数字化招商管理体系,利用强大招商团队和网络获客平台,确保高质量、快速项目招商。
与我们合作,享有资源支持:项目招商团队,后台运营、策划支持,招商管理系统,线上获客系统,全国项目招商联动,助您实现招商目标。期待共同助力项目成功招商。

