【园区区位】中南高科京南科技智谷位于固安高新技术产业开发区,天安门正南50公里,距大广高速固安口4公里,距离京雄高速固安口3公里,距离北京大兴国际机场16公里,距离固安县政府6公里,距固安东站18公里;
【园区交通】周边高速交错,现有大广高速,京雄高速,首都环线高速,北京公交828、849、943、943区间等多条;
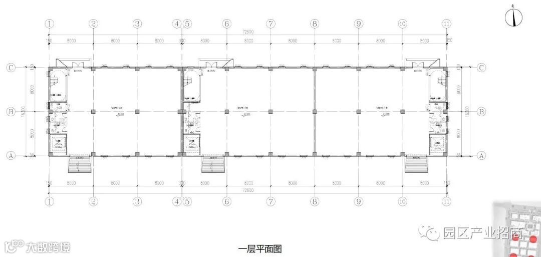
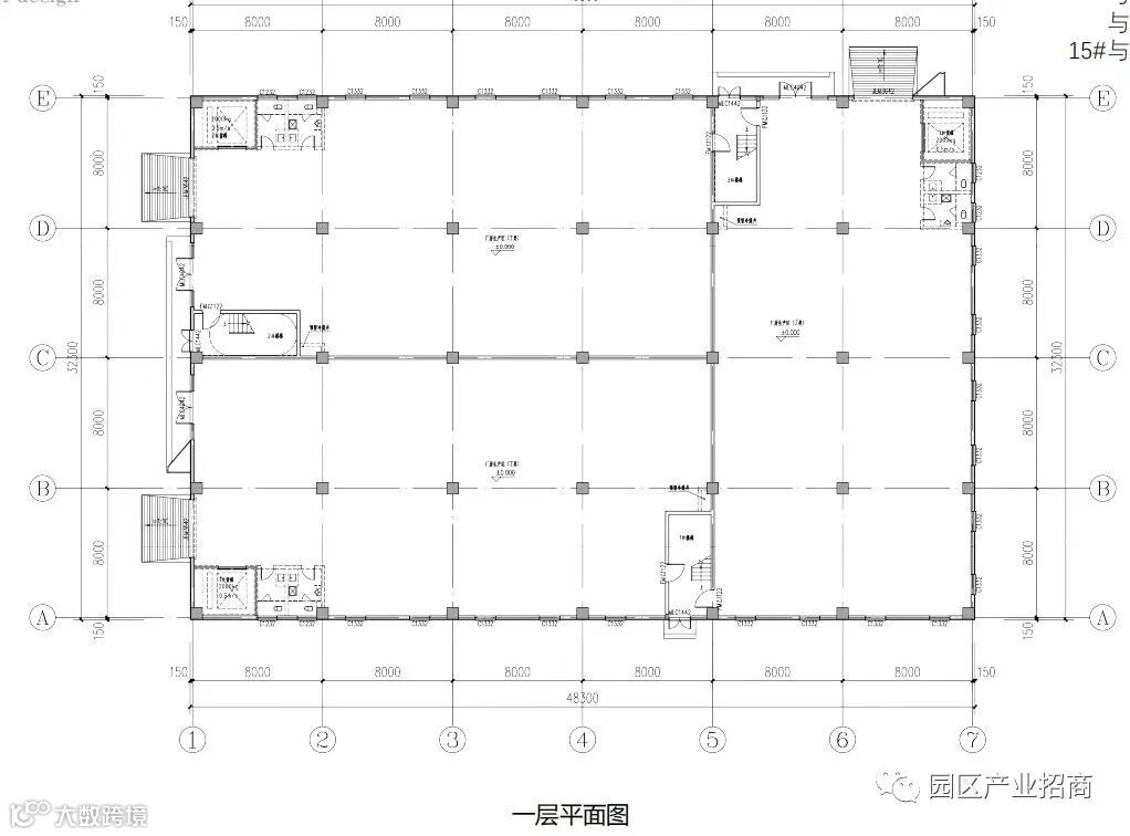
【园区产品】7.2-7.8米超高首层,8米柱距,双入口,实现人货分流,满足企业生产、研发、办公一体化需求;
【园区户型】单层、单体独栋、双拼、三拼 ;
【面积区间】600--7000平米(面积灵活组合);
【产品层高】首层挑高7.2-7.8米,标准层3.9米-4.2米(层高与户型相关);
【单层承重】首层无地下,承重3吨/㎡,标准层承重450公斤/㎡;
【配电容量】100kva/1000平米,增容费:15万/100kva;
【环评办理】园区已取得大环评备案,入园企业需符合固安产业发展方向,园区产服人员会协助企业办理环评;
【园区运营】园区运营团队成熟,以基础服务、增值服务、产业投资为核心,八大运营服务体系为企业保驾护航;
【产品均价】均价6000元/㎡(一户一价,具体以实时销控为准);
【付款方式】全款,分期,按揭
贷款首付35%,贷款最长年限为10年(贷款方式灵活,放款快);
【产权情况】可办理独立不动产证;
【土地证剩余年限】剩余50年,摘牌时间2020年12月10日;
【招商定位】新一代信息技术,智能制造,高端装备制造,精密仪器,航天航空,食品检测,人工智能,新能源汽车,汽车零部件,智能交通,医疗器械,新型显示,光电信息,农科创,大健康,电子信息产业,电子芯片(集成电路,光电子,传感器)数字媒体,新材料;
中南高科招商中心 考察预约热线 4000123021 或 13391219793



















全国80城 200余个产业园
考察热线 4000123021 或 13391219793

厂房出售招商对接
产业地产专业自媒体【园区产业招商】
超过21000园区招商人关注了我们!
强烈推荐您关注

关注公众号:园区产业招商

自动加入产业地产交流群


