
- 项目名称:洪泉智能智造科创园
- 租金:12元/㎡/月
- 地址:扬州市江都区浦江东路168号
- 建筑形式:分层(4层);
- 招商产业:包括新一代信息技术产业、高端装备制造产业、生物产业和节能环保产业。
- 物业费:1.5元/月

- 入园企业:重点引进新能源及汽车、高端装备制造及电子信息等具有良好发展前景的优质企业,形成上下游高端产业集群,从而将项目打造成聚合研发设计、中试成果转化、生产企业总部、产品展示和生产配套于一体的都市型产业集聚地。

园区介绍:
洪泉智能智造科创园位于扬州市江都区,总建面13.8万方,代理租赁面积10万㎡。用地性质为工业用地,项目属于4F框架现房项目,项目距宁海线2KM,距区政府5KM,距江都东高速收费口1KM/3min。结合区域主导产业特点,充分发挥中南高科资源优势,打造江都现代产业生态标杆集群。

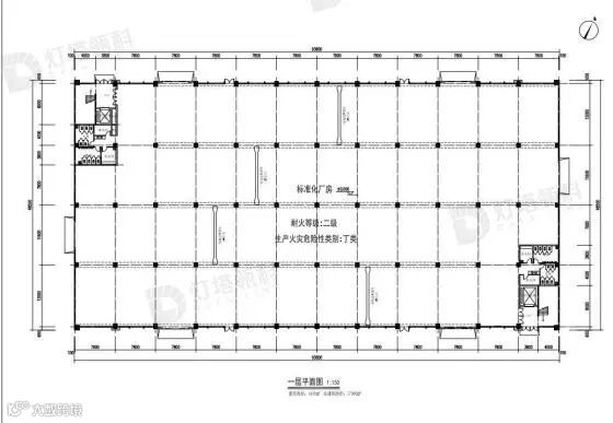
2-5号楼
建筑面积:4450㎡ 层高:首层7.9M,2-3层5M,4层4.9M,层数:4
标准厂房招商出售
欢迎来访考察 400-0123-021
让入园企业领先同行5年

产业招商专业自媒体【园区产业招商】
超过23200园区招商人关注了我们!

↑ 关注公众号:园区产业招商

↑ 加入行业交流群
【中南高科招商品牌:灯塔瓴科】
是全国领先的招商运营平台,成功运营86城市、近200产业园区,以高效专业著称。项目去化最快1个月,正常1-2年。将成熟招商经验向全国产业园区开放,提供专业招商运营代理服务。整合项目进入我们的数字化招商管理体系,利用强大招商团队和网络获客平台,确保高质量、快速项目招商。
与我们合作,享有资源支持:项目招商团队,后台运营、策划支持,招商管理系统,线上获客系统,全国项目招商联动,助您实现招商目标。期待共同助力项目成功招商。

