芜湖东方雨虹智造产业园
<< 芜湖三山区 单层钢结构园区 > >
12.2米单层厂房 · 1000-17000平任意组合 · 高层综合楼
首 付 30 %起 · 10 年 按 揭 · 50年独立产权

1、项目基础参数
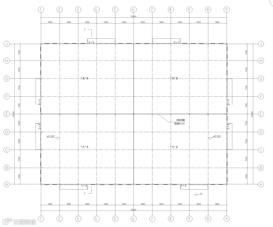
【项目名称】芜湖东方雨虹智造产业园
【占地面积】约172亩
【建筑面积】约7.8万方
【产品类型】12.2米单层厂房
【面积区间】约1000-17000㎡
【用材升级】全新轻钢结构
【车位配置】机动车位267个
非机动车位114个
【电力配置】标准配置70KV/1000㎡
【纳税要求】30万/亩
【产权性质】50年独立产权
【交付时间】预计2024年12月底
(最终以合同约定为准)
【行业准入】主招新能源汽车等上下游企业、高端装备制造、新材料等相关产业,以及符合政府环保要求规定的企业经审核后均可入园。

户型展示



12.2米单层厂房* 预留5-10T桁车牛腿
车间高度12.2m
首层承重约2T/㎡
报价:3300-3500/㎡

2、产品核心优势
★【单层厂房】高标单层厂房,芜湖罕有
★【灵活分割】根据需求,灵活分割
★【高标层高】12.2米层高,空间利用丰富
★【强力荷载】约2T/㎡承重,负重无压力


厂房招商中心
考察对接请加微信


产业招商专业自媒体【园区产业招商】
超过24000园区招商人关注了我们!

↑ 关注公众号:园区产业招商

↑ 加入行业交流群(如群满,请关注公众号后加入)
本平台提供产业园招商代理服务
【中南高科招商品牌:灯塔瓴科】
是全国领先的招商运营平台,成功运营86城市、近200产业园区,以高效专业著称。项目去化最快1个月,正常12个月。现向全国产业园区提供专业招商运营代理服务。利用我们强大招商团队和数字化平台招商,确保高质量、快速完成招商。
制造业企业选址找灯塔瓴科
点赞+在看
分享小伙伴↓↓↓



