
【均和云谷·盐城智能制造港】
招商中心:盐城市盐都区郭猛工业园龙郭路与园区中心路交会处(原郭猛镇园区服务中心一楼)
【均和集团简介】
均和集团现已形成集金融大宗商品贸易、金融服务与投资、城市运营与民生、产业园区建设与运营、实业重工与工程建设等多业并举的产业格局。在全国500强排名第200位。

【项目简介】
项目总占地面积约98亩,规划建筑面积约5万平方米。规划产品有1F钢结构厂房、1F马鞍板厂房、2F/3F标准厂房,以及定制化科研空间,打造成为以高端制造、科创研发、国际合作、展览展示、配套服务等功能为一体的高科技、绿色化、总部型园区,助力盐城智能制造产业集群集聚发展,打造长三角领先的智能制造产业新高地、新样板。

【项目区位】
本项目位于盐都区郭猛工业园区核心板块,立潮路与文景路(规划路)交会处,西侧与郭猛科技创业园相邻,东侧约800米为229省道,可与盐城主城区相连,距离盐靖高速入口匝道6公里,距离盐城市政府12公里,距离盐城站16公里,距离盐城北站20公里,距离盐城南洋国际机场22公里,地理位置优越,交通十分便利。
周边多为工业用地,已建成多个工业产业园区,如郭猛科技产业园、郭猛全民创业园、环保工业园、郭猛节能环保装备产业园等,项目南侧未来将规划商业用地,可为项目提供商业配套支撑,周边生产性配套设施完善,方便后期企业招工和员工出行。

【基础信息】
产品:2层框架厂房,一层层高8.1米,二层层高4.2米;双拼分户约2000㎡/户,整栋面积约4000㎡,共2栋;
3层框架厂房,一层层高8.1米,二层层高4.2米,三层层高3.9米;双拼分户约1500/1650㎡,共3栋;
单层马鞍板厂房,13.8米,两侧一层层高8.1米,二层层高4.2米;四拼分户约800-1000㎡,整栋面积约3300㎡-4000㎡,共3栋;
单层钢结构厂房,16米,两侧一层层高7.2米,二层层高3.9米,三层3.9米;双拼分户约2200㎡/户,整栋面积约4400㎡;四拼分户约1700㎡,整栋面积约7000㎡,共4栋;
承重:一层2吨/平,二层800公斤/平,三层350公斤/平。
柱距:8*8m/24*20/32*20(一栋一议)。
产权:50年工业用地,有不动产证。
优势:一轴:一条横向中央规划主轴,贯穿场地东西;
两环:以科创为主题打造一条环绕基地的科创景观环,内部中央结合景观、休憩、交流等景观节点形成对内运动活力环;
多组团:根据产业不同分为多个组团,每个组团内部设置入口广场、产业广场、中央花园、组团景观等,形成组团内部景观节点。
【平面图】

1#产品一层平面图

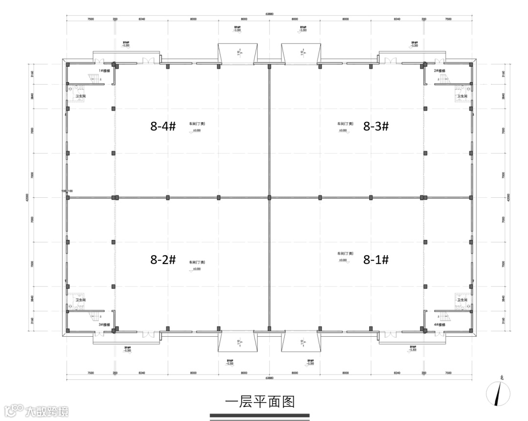
8#产品一层平面图

10#产品一层平面图

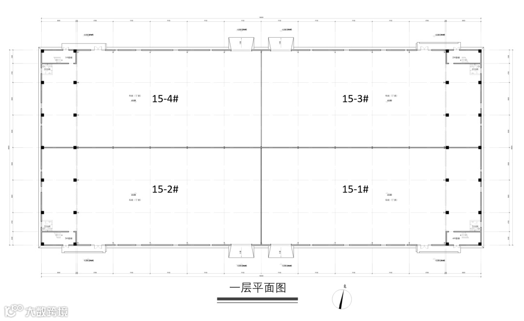
15#产品一层平面图

企业选址服务中心 400-0123-021
考察对接请加微信






产业招商专业自媒体【园区产业招商】
超过25149园区招商人关注了我们!

↑ 关注公众号:园区产业招商

↑ 加入行业交流群(如群满,请关注公众号后加入)
提供产业园招商代理服务
专业有效的产业园载体招商平台,以高效专业著称。现向全国产业园区提供专业招商运营代理服务。利用我们强大招商团队和数字化平台招商,确保高质量、快速完成招商。【重点承接上海、苏州、无锡、嘉兴、杭州、宁波等区域产业园区项目】


